Share
$475,000
British Columbia,Gabriola Island
For Sale Active
365 King Rd, Gabriola Island, British Columbia V0R1X1
  • 3
  • 1
  • 1,006 Sqft
Basic Details
Description

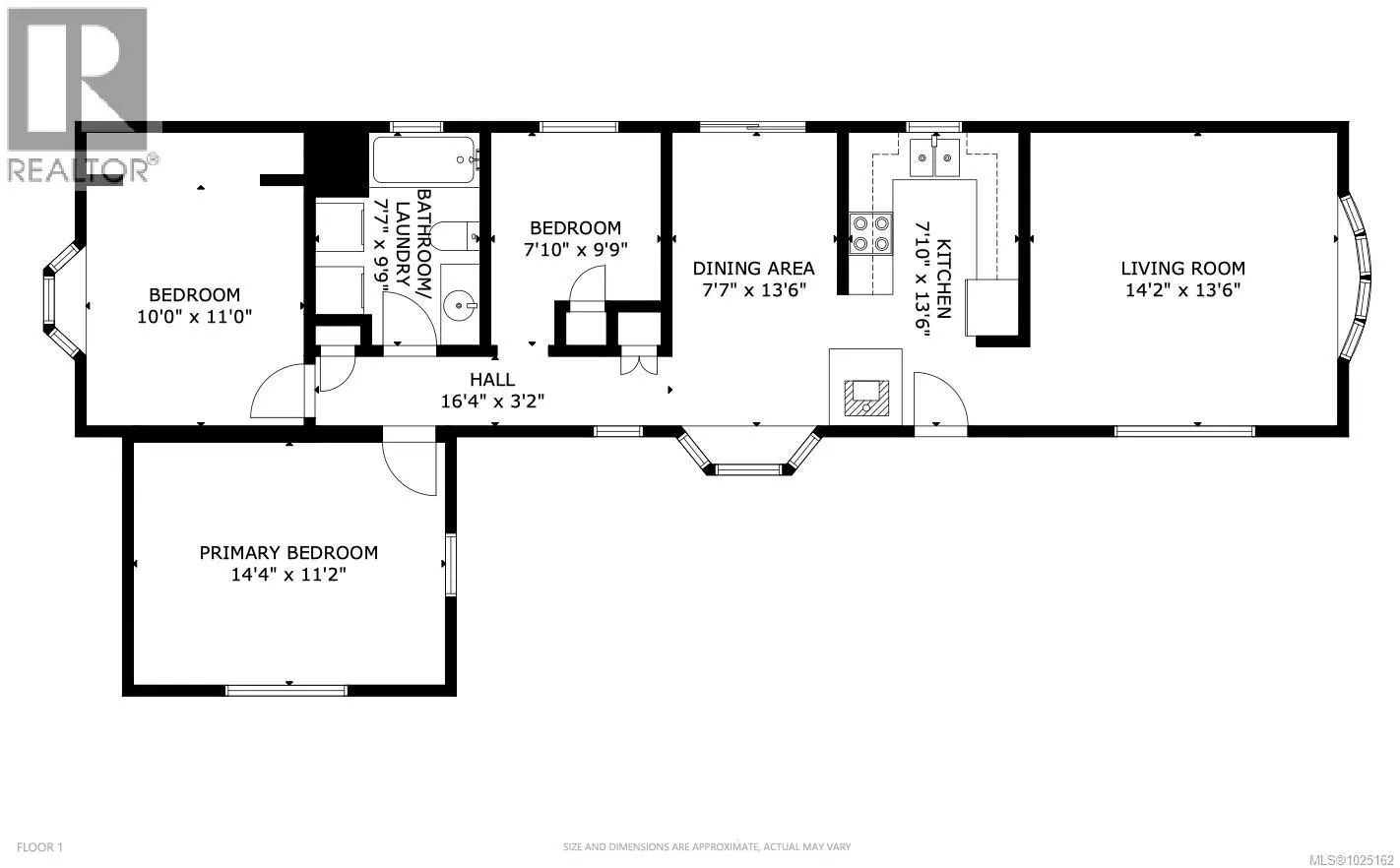
Tucked into a peaceful pocket in one of Gabriola’s most loved locations, this bright and welcoming 3-bedroom, 1-bath home offers comfortable island living just minutes from Twin Beaches, an extensive trail network, the general store, and the ferry. The 1,006 sq.ft. home features a functional layout with a spacious primary bedroom, heat pump, cozy woodstove, and an EPDM roof replaced

in 2018. A covered deck off the dining area provides a lovely place to relax and overlook the yard, while meandering pathways and natural rockwork guide you through a beautiful blend of open space, native vegetation, and mature trees. A detached studio offers flexible space for guests, hobbies, or creative pursuits, complemented by a greenhouse, carport, and mostly fenced yard. Serviced by a well and cisterns, this is a comfortable and versatile property in a quiet, convenient setting.Full information package with floor plans, virtual tour and video available. All info to be verified by buyer if deemed important. (id:62650)

Read More
Basic Details
  • Property Type: Residential
  • Listing Type: For Sale
  • Listing ID: 1025162
  • Price: $475,000
  • Bedrooms: 3
  • Bathrooms: 1
  • Square Footage: 1,006 Sqft
  • Year Built: 1978
  • Status: Active
  • Property Sub Type: Single Family
  • Office Key: 276772
Features & Appliances
Features
  • Heating System: Heat Pump, Electric, Wood
  • Cooling System: Wall unit
  • Fireplaces Total: 1
Address Map
  • Location: CA, British Columbia, Gabriola Island, V0R1X1
  • Street: King
  • Street Number: 365
  • Street Suffix: Road
  • Longitude: W124° 8' 36.6''
  • Latitude: N49° 11' 26.2''
  • Zoning: Residential
Additional Information
  • Lot Features:
  • Lot Size Dimensions: 0.55
Financial
  • Tax Annual Amount: 2234
Powered by REALTOR.ca
Listing updated: 2026-05-06 09:34:24
List Your Property
Mortgage Calculator
Get Pre-Approved
$
$
%
%
years
Monthly Payment (Est.) $
Listing Information
  • List Agent Key: 1470544
  • List Office Key: 276772
  • Modification Timestamp: 2026-03-18T12:46:12Z
  • Originating System Name: Vancouver Island Real Estate Board
  • Status Change Timestamp: 2026-03-18T12:36:57Z
Powered by REALTOR.ca
Listing updated: 2026-05-06 09:34:24
REALTOR®, REALTORS®, and the REALTOR® logo are certification marks that are owned by REALTOR® Canada Inc. and licensed exclusively to The Canadian Real Estate Association (CREA). These certification marks identify real estate professionals who are members of CREA and who must abide by CREA’s By‐Laws, Rules, and the REALTOR® Code. The MLS® trademark and the MLS® logo are owned by CREA and identify the quality of services provided by real estate professionals who are members of CREA.

The information contained on this site is based in whole or in part on information that is provided by members of The Canadian Real Estate Association, who are responsible for its accuracy. CREA reproduces and distributes this information as a service for its members and assumes no responsibility for its accuracy.

Website is operated by a brokerage or salesperson who is a member of The Canadian Real Estate Association.

The listing content on this website is protected by copyright and other laws, and is intended solely for the private, non‐commercial use by individuals. Any other reproduction, distribution or use of the content, in whole or in part, is specifically forbidden. The prohibited uses include commercial use, “screen scraping”, “database scraping”, and any other activity intended to collect, store, reorganize or manipulate data on the pages produced by or displayed on this website.

By continuing to use this website and its services, you agree to these

These forms are provided to ComFree’s Unrepresented Sellers as a part of their Mere Posting ComFree Listing Contract.

I acknowledge I can only access these forms as a ComFree customer under contract.

These forms are provided to ComFree’s Unrepresented Sellers as a part of their Mere Posting ComFree Listing Contract and in partnership with Zubic Law.

I acknowledge I can only access these forms as a ComFree customer under contract.

These forms are provided to ComFree’s Unrepresented Sellers as a part of their Mere Posting ComFree Listing Contract and in partnership with Zubic Law.

I acknowledge I can only access these forms as a ComFree customer under contract.

How It Works

1. Purchase Your Package

2. We Ship Your ‘For Sale’ Sign

3. Book Your VR Tour

4. Complete Listing Input Forms

5. We Make Your Listing Live

6. Get Support 7 Days a Week

7. iSOLD!