Share
$1,150,000
Saskatchewan,Saskatoon
For Sale Active
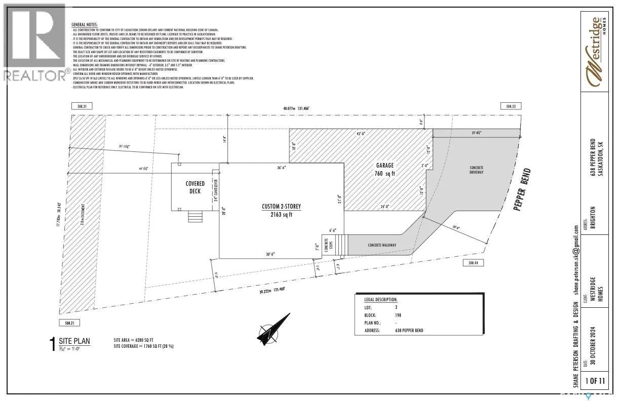
638 Pepper BEND, Saskatoon, Saskatchewan S7V1T1
  • 5
  • 4
  • 2,168 Sqft
Contact Seller
Basic Details
Description

Brand new custom-build by Westridge Homes, this carefully designed property sits on a generous southwest-facing lot in Brighton, backing onto green space for sunset views and extra privacy. The walking path beyond the backyard leads to a gathering hub with ping pong tables and space to connect. The main floor offers a cozy front den/office with pocket doors, stylish wallpaper

and built-in filing cabinets. A spacious mudroom with custom cabinetry allows for smart storage, keeping the main floor clutter-free. There is a bright walk-through pantry with a coffee bar that opens into a bright, open kitchen featuring a continuous granite backsplash. oversized island and sleek range hood. The dining area extends out to a covered deck with a privacy wall and gas bbq hook up while the living room is anchored by a stone-wrapped gas fireplace for cozy evenings. Upstairs, you’ll find a large bonus room and three spacious bedrooms, including a spacious five piece master en-suite. The fully developed basement adds a family room, fourth bedroom, three-piece bathroom, and a dedicated gym (could be a 5th bedroom) with a built-in space ready for a future sauna. The oversized (760 sq ft!) garage has epoxy flooring, roughed in plumbing and sewer, a dehumidifier, drain and includes a tandem third bay. There is also an extended concrete pad that runs along the west side of the home for a shed and extra storage. Outside, the yard is set up for outdoor living with electrical for a hot tub hook-up and a gas line for your BBQ, all within a connected, amenity-rich Brighton community known for its parks and family-style living. (id:62650)

Read More
Basic Details
  • Property Type: Residential
  • Listing Type: For Sale
  • Listing ID: SK030334
  • Price: $1,150,000
  • Bedrooms: 5
  • Bathrooms: 4
  • Square Footage: 2,168 Sqft
  • Year Built: 2025
  • Status: Active
  • Property Sub Type: Single Family
  • Office Key: 290189
Features & Appliances
Features
  • Heating System: Forced air, Natural gas
  • Cooling System: Central air conditioning, Air exchanger
  • Basement: Finished, Full
  • Fireplace: Gas, Conventional
  • Parking: Attached Garage, Heated Garage, Parking Space(s)
  • Architectural Style: 2 Level
  • Fireplaces Total: 1
Address Map
  • Location: CA, Saskatchewan, Saskatoon, S7V1T1
  • Longitude: W107° 26' 15''
  • Latitude: N52° 7' 15.1''
Additional Information
  • Lot Features:
  • Lot Size Dimensions: 58x130
  • Stories: 2.0
Powered by REALTOR.ca
Listing updated: 2026-05-18 04:50:06
List Your Property
Mortgage Calculator
Get Pre-Approved
$
$
%
%
years
Monthly Payment (Est.) $
Listing Information
  • List Agent Key: 1984262
  • List Office Key: 290189
  • Modification Timestamp: 2026-04-18T21:50:41Z
  • Originating System Name: Saskatchewan REALTORS® Association
  • Status Change Timestamp: 2026-04-18T21:42:21Z
Powered by REALTOR.ca
Listing updated: 2026-05-18 04:50:07
REALTOR®, REALTORS®, and the REALTOR® logo are certification marks that are owned by REALTOR® Canada Inc. and licensed exclusively to The Canadian Real Estate Association (CREA). These certification marks identify real estate professionals who are members of CREA and who must abide by CREA’s By‐Laws, Rules, and the REALTOR® Code. The MLS® trademark and the MLS® logo are owned by CREA and identify the quality of services provided by real estate professionals who are members of CREA.

The information contained on this site is based in whole or in part on information that is provided by members of The Canadian Real Estate Association, who are responsible for its accuracy. CREA reproduces and distributes this information as a service for its members and assumes no responsibility for its accuracy.

Website is operated by a brokerage or salesperson who is a member of The Canadian Real Estate Association.

The listing content on this website is protected by copyright and other laws, and is intended solely for the private, non‐commercial use by individuals. Any other reproduction, distribution or use of the content, in whole or in part, is specifically forbidden. The prohibited uses include commercial use, “screen scraping”, “database scraping”, and any other activity intended to collect, store, reorganize or manipulate data on the pages produced by or displayed on this website.

By continuing to use this website and its services, you agree to these

These forms are provided to ComFree’s Unrepresented Sellers as a part of their Mere Posting ComFree Listing Contract.

I acknowledge I can only access these forms as a ComFree customer under contract.

These forms are provided to ComFree’s Unrepresented Sellers as a part of their Mere Posting ComFree Listing Contract and in partnership with Zubic Law.

I acknowledge I can only access these forms as a ComFree customer under contract.

These forms are provided to ComFree’s Unrepresented Sellers as a part of their Mere Posting ComFree Listing Contract and in partnership with Zubic Law.

I acknowledge I can only access these forms as a ComFree customer under contract.

How It Works

1. Purchase Your Package

2. We Ship Your ‘For Sale’ Sign

3. Book Your VR Tour

4. Complete Listing Input Forms

5. We Make Your Listing Live

6. Get Support 7 Days a Week

7. iSOLD!