Share
$629,900
Nova Scotia,Dartmouth
For Sale Active
SD06B 163 Terrastone Ridge Ridge, Dartmouth, Nova Scotia B2X0C4
  • 3
  • 4
  • 2,200 Sqft
Contact Seller
Basic Details
Description

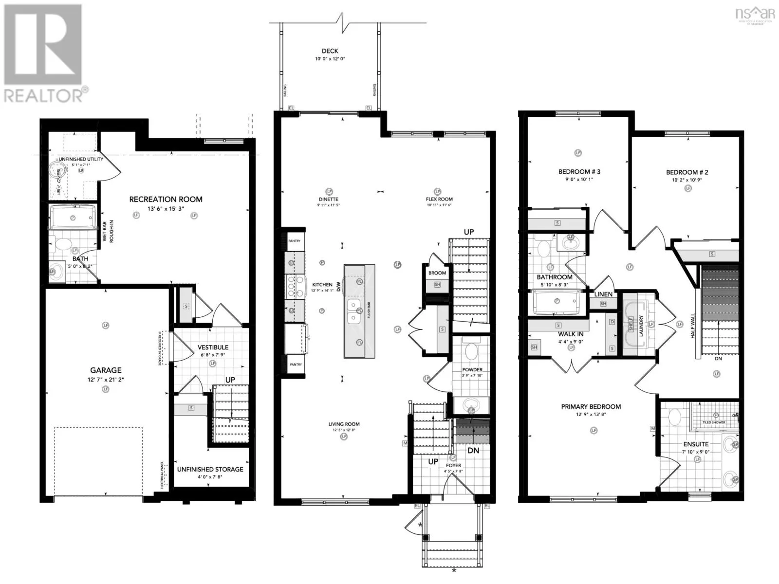
Introducing The Fairbanks by Cresco, a chic 3-bedroom middle unit townhome in one of HRM’s most sought-after new communities, The Parks of Lake Charles. This stylish 3-level design features a built-in garage and a bright lookout lower level, offering added natural light and functional living space. The main level is thoughtfully designed for everyday comfort and entertaining, with a spacious

living room, dedicated dining area, a well-appointed kitchen complete with pantry, and a convenient powder room. Upstairs, the private primary suite includes a walk-in closet and its own ensuite bath, complemented by two additional bedrooms, a full main bathroom, and a dedicated laundry room for added convenience. The fully finished lower level expands your living space with a large recreation room, full bathroom and wet bar rough-in. The lookout design enhances the lower level with natural light, creating a comfortable, versatile space ideal for relaxing, entertaining, or accommodating guests. The Fairbanks blends modern style with practical design,, delivering comfortable living in a prime Lake Charles location. Disclaimer: Photos shown are facsimiles only. Colour selections and finishes may vary by unit. (id:62650)

Read More
Basic Details
  • Property Type: Residential
  • Listing Type: For Sale
  • Listing ID: 202604815
  • Price: $629,900
  • Bedrooms: 3
  • Bathrooms: 4
  • Half Bathrooms: 1
  • Square Footage: 2,200 Sqft
  • Status: Active
  • Property Attached Yn: 1
  • Property Sub Type: Single Family
  • Office Key: 276603
Features & Appliances
Features
  • Cooling System: Heat Pump
  • Parking: Garage, Paved Yard
  • Architectural Style: 3 Level
  • Exterior Features: Stone, Vinyl
  • Flooring: Laminate, Ceramic Tile, Hardwood
  • Sewer: Municipal sewage system
Address Map
  • Location: CA, Nova Scotia, Dartmouth, B2X0C4
  • Street: Terrastone Ridge
  • Street Number: 163
  • Street Suffix: Ridge
  • Longitude: W64° 27' 40''
  • Latitude: N44° 42' 53.8''
Additional Information
  • Water Source:
  • Accessibility Features:
  • Community Features:
  • Foundation Details:
  • Lot Size Dimensions: 0.0648
  • Stories: 2.0
Powered by REALTOR.ca
Listing updated: 2026-04-21 01:33:19
List Your Property
Mortgage Calculator
Get Pre-Approved
$
$
%
%
years
Monthly Payment (Est.) $
Listing Information
  • List Agent Key: 1882027
  • List Office Key: 276603
  • Modification Timestamp: 2026-03-24T14:50:23Z
  • Originating System Name: Nova Scotia Association of REALTORS®
  • Status Change Timestamp: 2026-03-24T14:41:11Z
Powered by REALTOR.ca
Listing updated: 2026-04-21 01:33:19
REALTOR®, REALTORS®, and the REALTOR® logo are certification marks that are owned by REALTOR® Canada Inc. and licensed exclusively to The Canadian Real Estate Association (CREA). These certification marks identify real estate professionals who are members of CREA and who must abide by CREA’s By‐Laws, Rules, and the REALTOR® Code. The MLS® trademark and the MLS® logo are owned by CREA and identify the quality of services provided by real estate professionals who are members of CREA.

The information contained on this site is based in whole or in part on information that is provided by members of The Canadian Real Estate Association, who are responsible for its accuracy. CREA reproduces and distributes this information as a service for its members and assumes no responsibility for its accuracy.

Website is operated by a brokerage or salesperson who is a member of The Canadian Real Estate Association.

The listing content on this website is protected by copyright and other laws, and is intended solely for the private, non‐commercial use by individuals. Any other reproduction, distribution or use of the content, in whole or in part, is specifically forbidden. The prohibited uses include commercial use, “screen scraping”, “database scraping”, and any other activity intended to collect, store, reorganize or manipulate data on the pages produced by or displayed on this website.

By continuing to use this website and its services, you agree to these

These forms are provided to ComFree’s Unrepresented Sellers as a part of their Mere Posting ComFree Listing Contract.

I acknowledge I can only access these forms as a ComFree customer under contract.

These forms are provided to ComFree’s Unrepresented Sellers as a part of their Mere Posting ComFree Listing Contract and in partnership with Zubic Law.

I acknowledge I can only access these forms as a ComFree customer under contract.

These forms are provided to ComFree’s Unrepresented Sellers as a part of their Mere Posting ComFree Listing Contract and in partnership with Zubic Law.

I acknowledge I can only access these forms as a ComFree customer under contract.

How It Works

1. Purchase Your Package

2. We Ship Your ‘For Sale’ Sign

3. Book Your VR Tour

4. Complete Listing Input Forms

5. We Make Your Listing Live

6. Get Support 7 Days a Week

7. iSOLD!