Share
$360,000
Nova Scotia,Onslow Mountain
For Sale Active
Lot 14-08B 119 Tyler Avenue, Onslow Mountain, Nova Scotia B6L6A9
  • 2
  • 1
  • 1,044 Sqft
Contact Seller
Basic Details
Description

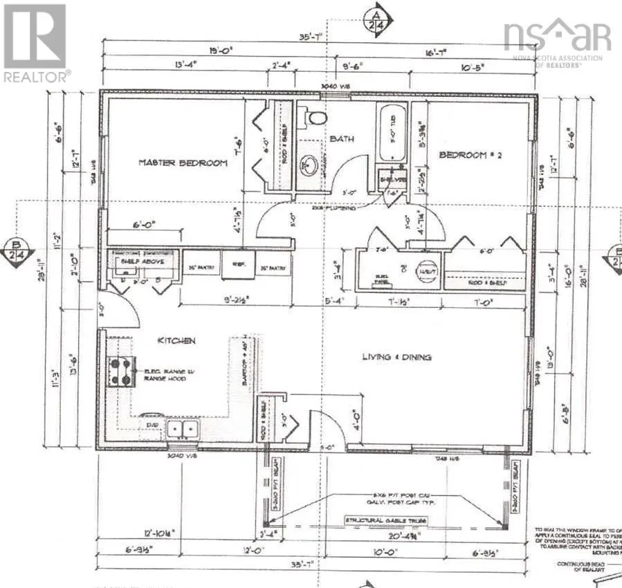
Looking for a new home that has 2 bedrooms on a heated in-floor slab in Colchester? Look no further than this new home located at 119 Tyler Avenue, Onslow Mountain. This 29,062 sqft lot is impressive. This new construction on slab will be mobility friendly with 36″ door openings and lowered controls throughout. The kitchen features stainless steel

appliances, plenty of cabinetry (soft close), two pantries and a gorgeous quartz countertop island peninsula with sink and breakfast bar. Perfect for a small family this home has 2 large bedrooms and a four piece bathroom and vanity with quartz countertops. The main floor bedrooms, living room and kitchen has vinyl plank flooring throughout. The heating systems are in-floor heat, and ductless heat pump that offers A/C in the summer and heating in the winter. Energy efficiency is key with this home so your energy bills should be minimal. There is additional room for storage in the utility room and closets. Light is LED throughout the home with pot lights in the kitchen. A 200 amp electrical breaker in the utility room with pressure tank, electric hot water heater and HRV unit for air exchange in the home. The home has vinyl siding, asphalt roof and vinyl windows. On the exterior of the home you will have a new single gravel driveway, seeded lot (weather dependent) and a covered porch area on the front of the home with pot lights. Don’t miss out on this new build with 8 year LUX home warranty in this desirable neighbourhood in Onslow Mountain for early summer 2026 possession. The purchase price includes HST. All HST rebates back to the builder. MLA/TLA includes all interior space including the utility room. (id:62650)

Read More
Basic Details
  • Property Type: Residential
  • Listing Type: For Sale
  • Listing ID: 202604967
  • Price: $360,000
  • Bedrooms: 2
  • Bathrooms: 1
  • Square Footage: 1,044 Sqft
  • Status: Active
  • Property Sub Type: Single Family
  • Office Key: 56206
Features & Appliances
Features
  • Cooling System: Heat Pump
  • Basement: None
  • Parking: Gravel
  • Exterior Features: Vinyl
  • Flooring: Vinyl
  • Sewer: Septic System
Address Map
  • Location: CA, Nova Scotia, Onslow Mountain, B6L6A9
  • Street: Tyler
  • Street Number: 119
  • Street Suffix: Avenue
  • Longitude: W64° 41' 37.9''
  • Latitude: N45° 24' 53.2''
Additional Information
  • Water Source:
  • Accessibility Features:
  • Community Features:
  • Foundation Details:
  • Lot Features:
  • Lot Size Dimensions: 0.6672
  • Stories: 1.0
Powered by REALTOR.ca
Listing updated: 2026-04-24 11:20:02
List Your Property
Mortgage Calculator
Get Pre-Approved
$
$
%
%
years
Monthly Payment (Est.) $
Similar Properties
Listing Information
  • List Agent Key: 2067796
  • List Office Key: 56206
  • Modification Timestamp: 2026-03-20T23:30:22Z
  • Originating System Name: Nova Scotia Association of REALTORS®
  • Status Change Timestamp: 2026-03-20T23:26:48Z
Powered by REALTOR.ca
Listing updated: 2026-04-24 11:20:02
REALTOR®, REALTORS®, and the REALTOR® logo are certification marks that are owned by REALTOR® Canada Inc. and licensed exclusively to The Canadian Real Estate Association (CREA). These certification marks identify real estate professionals who are members of CREA and who must abide by CREA’s By‐Laws, Rules, and the REALTOR® Code. The MLS® trademark and the MLS® logo are owned by CREA and identify the quality of services provided by real estate professionals who are members of CREA.

The information contained on this site is based in whole or in part on information that is provided by members of The Canadian Real Estate Association, who are responsible for its accuracy. CREA reproduces and distributes this information as a service for its members and assumes no responsibility for its accuracy.

Website is operated by a brokerage or salesperson who is a member of The Canadian Real Estate Association.

The listing content on this website is protected by copyright and other laws, and is intended solely for the private, non‐commercial use by individuals. Any other reproduction, distribution or use of the content, in whole or in part, is specifically forbidden. The prohibited uses include commercial use, “screen scraping”, “database scraping”, and any other activity intended to collect, store, reorganize or manipulate data on the pages produced by or displayed on this website.

By continuing to use this website and its services, you agree to these

These forms are provided to ComFree’s Unrepresented Sellers as a part of their Mere Posting ComFree Listing Contract.

I acknowledge I can only access these forms as a ComFree customer under contract.

These forms are provided to ComFree’s Unrepresented Sellers as a part of their Mere Posting ComFree Listing Contract and in partnership with Zubic Law.

I acknowledge I can only access these forms as a ComFree customer under contract.

These forms are provided to ComFree’s Unrepresented Sellers as a part of their Mere Posting ComFree Listing Contract and in partnership with Zubic Law.

I acknowledge I can only access these forms as a ComFree customer under contract.

How It Works

1. Purchase Your Package

2. We Ship Your ‘For Sale’ Sign

3. Book Your VR Tour

4. Complete Listing Input Forms

5. We Make Your Listing Live

6. Get Support 7 Days a Week

7. iSOLD!