Share
$399,900
Ontario,Welland (Welland Downtown)
For Sale Active
313 BURGAR STREET, Welland (Welland Downtown), Ontario L3B2T5
  • 3
  • 1
  • 1100 - 1500Square Feet
Contact Seller
Basic Details
Description

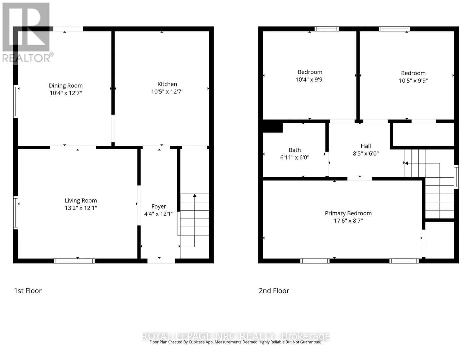
Welcome to 313 Burgar Street in Welland – a move-in ready home that’s perfect for you! This charming 3-bedroom property features a functional layout with a separate dining room, bright living space, and an inviting kitchen complete with new stainless steel appliances. Upstairs, you’ll find three generous bedrooms and a modern full bath. Centrally located close to parks, schools,

shopping, and transit. With its fresh updates, new appliances, and affordable price point, this home offers convenience and value! Basement waterproofing and sump sump done in 2025. Kitchen appliances 2024. Washer and Dryer 2021. Other recent updates in 2020-2021 include new roof, fascia, soffits, floors on main floor and second floor, completely renovated kitchen, bathroom, front door. (id:62650)

Read More
Basic Details
  • Property Type: Residential
  • Listing Type: For Sale
  • Listing ID: X12887792
  • Price: $399,900
  • Bedrooms: 3
  • Bathrooms: 1
  • Square Footage: 1100 - 1500 Sqft
  • Status: Active
  • Property Sub Type: Single Family
  • Office Key: 75381
Features & Appliances
Features
  • Heating System: Forced air, Natural gas
  • Cooling System: Central air conditioning
  • Basement: Full, Unfinished
  • Parking: No Garage
  • Exterior Features: Vinyl siding
  • Sewer: Sanitary sewer
Address Map
  • Location: CA, Ontario, Welland (Welland Downtown), L3B2T5
  • Street: Burgar
  • Street Number: 313
  • Street Suffix: Street
  • Longitude: W80° 45' 23''
  • Latitude: N42° 59' 3.2''
Additional Information
  • Water Source:
  • Foundation Details:
  • Lot Features:
  • Lot Size Dimensions: 37 x 61 FT
  • Stories: 2.0
Financial
  • Tax Annual Amount: 2011
Powered by REALTOR.ca
Listing updated: 2026-04-26 10:20:58
List Your Property
Mortgage Calculator
Get Pre-Approved
$
$
%
%
years
Monthly Payment (Est.) $
Listing Information
  • List Agent Key: 2088709
  • List Office Key: 75381
  • Modification Timestamp: 2026-03-29T12:05:38Z
  • Originating System Name: Niagara Association of REALTORS®
  • Status Change Timestamp: 2026-03-29T11:56:24Z
Powered by REALTOR.ca
Listing updated: 2026-04-26 10:20:59
REALTOR®, REALTORS®, and the REALTOR® logo are certification marks that are owned by REALTOR® Canada Inc. and licensed exclusively to The Canadian Real Estate Association (CREA). These certification marks identify real estate professionals who are members of CREA and who must abide by CREA’s By‐Laws, Rules, and the REALTOR® Code. The MLS® trademark and the MLS® logo are owned by CREA and identify the quality of services provided by real estate professionals who are members of CREA.

The information contained on this site is based in whole or in part on information that is provided by members of The Canadian Real Estate Association, who are responsible for its accuracy. CREA reproduces and distributes this information as a service for its members and assumes no responsibility for its accuracy.

Website is operated by a brokerage or salesperson who is a member of The Canadian Real Estate Association.

The listing content on this website is protected by copyright and other laws, and is intended solely for the private, non‐commercial use by individuals. Any other reproduction, distribution or use of the content, in whole or in part, is specifically forbidden. The prohibited uses include commercial use, “screen scraping”, “database scraping”, and any other activity intended to collect, store, reorganize or manipulate data on the pages produced by or displayed on this website.

By continuing to use this website and its services, you agree to these

These forms are provided to ComFree’s Unrepresented Sellers as a part of their Mere Posting ComFree Listing Contract.

I acknowledge I can only access these forms as a ComFree customer under contract.

These forms are provided to ComFree’s Unrepresented Sellers as a part of their Mere Posting ComFree Listing Contract and in partnership with Zubic Law.

I acknowledge I can only access these forms as a ComFree customer under contract.

These forms are provided to ComFree’s Unrepresented Sellers as a part of their Mere Posting ComFree Listing Contract and in partnership with Zubic Law.

I acknowledge I can only access these forms as a ComFree customer under contract.

How It Works

1. Purchase Your Package

2. We Ship Your ‘For Sale’ Sign

3. Book Your VR Tour

4. Complete Listing Input Forms

5. We Make Your Listing Live

6. Get Support 7 Days a Week

7. iSOLD!