Share
$1,199,900
Ontario,Mississauga (Erin Mills)
For Sale Active
4199 GAYLING GARDENS, Mississauga (Erin Mills), Ontario L5L1Z8
  • 4
  • 3
  • 1500 - 2000Square Feet
Contact Seller
Basic Details
Description

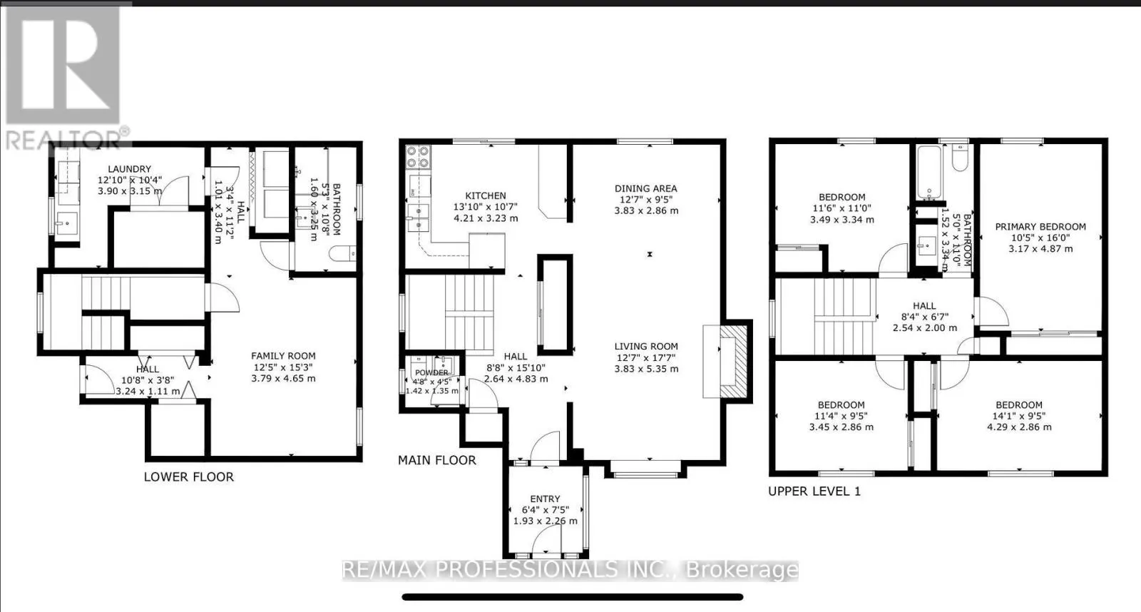
A perfect family home in one of the most desirable pockets in Erin Mills! Situated on a desirable corner lot/ one of the largest lots in the area – *58 x 120 feet with expansive 65 feet at the rear!* Beautifully updated, charming, meticulously clean and maintained 4 bedroom home! This home features a very functional layout. The main level

includes a large living/dining room, separate from the kitchen, enclosed front entry, convenient powder room and interior access to the garage. The kitchen features a walkout to the large covered deck (perfect for entertaining!) which overlooks the expansive backyard featuring additional stone patio, mature trees, custom garden shed, playhouse, and more! *An entertainer’s delight/kid paradise – A must see!* The lower level features a rec room, large laundry room, fully renovated washroom with shower, plus a ton of storage space – simply ideal! Home has been freshly painted. Move in and enjoy! Don’t miss out – take the virtual tour! Prime location, family friendly neighbourhood and excellent community! Steps to walking/cycling trails, multiple parks, top-rated schools, nearby plazas – all of the shops and amenities you need! Close to transit, quick access to highways, hospital. Walk to Life Time Athletic Club and much more! (id:62650)

Read More
Basic Details
  • Property Type: Residential
  • Listing Type: For Sale
  • Listing ID: W12909642
  • Price: $1,199,900
  • Bedrooms: 4
  • Bathrooms: 3
  • Half Bathrooms: 1
  • Square Footage: 1500 - 2000 Sqft
  • Status: Active
  • Property Sub Type: Single Family
  • Office Key: 269338
Features & Appliances
Features
  • Heating System: Forced air, Natural gas
  • Cooling System: Central air conditioning
  • Basement: Finished, N/A
  • Fence: Fenced yard
  • Parking: Garage, Attached Garage
  • Exterior Features: Brick, Vinyl siding
  • Flooring: Laminate, Hardwood
  • Sewer: Sanitary sewer
Address Map
  • Location: CA, Ontario, Mississauga (Erin Mills), L5L1Z8
  • Street: Gayling
  • Street Number: 4199
  • Street Suffix: Gardens
  • Longitude: W80° 17' 44.9''
  • Latitude: N43° 32' 30.2''
Additional Information
  • Water Source:
  • Foundation Details:
  • Lot Features:
  • Lot Size Dimensions: 58.6 x 120 FT
  • Stories: 2.0
Financial
  • Tax Annual Amount: 6948
Powered by REALTOR.ca
Listing updated: 2026-04-20 06:09:01
List Your Property
Mortgage Calculator
Get Pre-Approved
$
$
%
%
years
Monthly Payment (Est.) $
Listing Information
  • List Agent Key: 2004510
  • List Office Key: 269338
  • Modification Timestamp: 2026-03-23T16:50:55Z
  • Originating System Name: Toronto Regional Real Estate Board
  • Status Change Timestamp: 2026-03-23T16:42:56Z
Powered by REALTOR.ca
Listing updated: 2026-04-20 06:09:01
REALTOR®, REALTORS®, and the REALTOR® logo are certification marks that are owned by REALTOR® Canada Inc. and licensed exclusively to The Canadian Real Estate Association (CREA). These certification marks identify real estate professionals who are members of CREA and who must abide by CREA’s By‐Laws, Rules, and the REALTOR® Code. The MLS® trademark and the MLS® logo are owned by CREA and identify the quality of services provided by real estate professionals who are members of CREA.

The information contained on this site is based in whole or in part on information that is provided by members of The Canadian Real Estate Association, who are responsible for its accuracy. CREA reproduces and distributes this information as a service for its members and assumes no responsibility for its accuracy.

Website is operated by a brokerage or salesperson who is a member of The Canadian Real Estate Association.

The listing content on this website is protected by copyright and other laws, and is intended solely for the private, non‐commercial use by individuals. Any other reproduction, distribution or use of the content, in whole or in part, is specifically forbidden. The prohibited uses include commercial use, “screen scraping”, “database scraping”, and any other activity intended to collect, store, reorganize or manipulate data on the pages produced by or displayed on this website.

By continuing to use this website and its services, you agree to these

These forms are provided to ComFree’s Unrepresented Sellers as a part of their Mere Posting ComFree Listing Contract.

I acknowledge I can only access these forms as a ComFree customer under contract.

These forms are provided to ComFree’s Unrepresented Sellers as a part of their Mere Posting ComFree Listing Contract and in partnership with Zubic Law.

I acknowledge I can only access these forms as a ComFree customer under contract.

These forms are provided to ComFree’s Unrepresented Sellers as a part of their Mere Posting ComFree Listing Contract and in partnership with Zubic Law.

I acknowledge I can only access these forms as a ComFree customer under contract.

How It Works

1. Purchase Your Package

2. We Ship Your ‘For Sale’ Sign

3. Book Your VR Tour

4. Complete Listing Input Forms

5. We Make Your Listing Live

6. Get Support 7 Days a Week

7. iSOLD!