Share
$1,350,000
Ontario,Brockville
For Sale Active
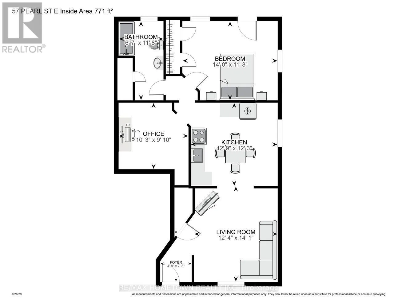
61 PEARL STREET E, Brockville, Ontario K6V1P6
  • 10
  • 7
  • 699 Sqft
Basic Details
Description

Now is the time to take that step into the investment world with this income-generating 6-plex, complete with a separate house on the property. The house offers a great opportunity to live on-site while collecting rent from the six units. If the house becomes vacant, it also has strong potential as a short-term rental, adding another stream of income. The

charming house features a fenced yard with plenty of room to create your own outdoor oasis. There’s real potential here, whether for personal use or added rental appeal. The 6-plex offers a solid mix of unit types, including two-bedroom, one-bedroom, and one-bedroom-plus-den layouts, making it attractive to a wide range of tenants. Location is a standout. With a park across the street and the hospital, schools, shopping, waterfront, and public transit all within walking distance, this is a highly desirable area for both living and renting. Each unit includes one parking space, a valuable feature for tenants. Major updates have already been completed, including the roof and gas hot water boiler in recent years. A strong investment opportunity in a location that continues to draw quality tenants, with added flexibility and future income potential. $118,889.52 – $32,972.74 = $85,917.00 divided by 12 = $7159.75 per month. Boiler-2024, forced air gas furnace-2025, roof-2023, hot water heaters-2026 for the most recent HWT. 2 hydro meters, 1 water and 1 gas meter. PLEASE ALLOW 24+ HOURS FOR ALL SHOWINGS, AND BE SURE TO CHECK OUT THE 3D UNDER MEDIA IN REALTOR.CA (id:62650)

Read More
Basic Details
  • Property Type: Residential Income
  • Listing Type: For Sale
  • Listing ID: X12910674
  • Price: $1,350,000
  • Bedrooms: 10
  • Bathrooms: 7
  • Square Footage: 699 Sqft
  • Status: Active
  • Property Sub Type: Multi-family
  • Office Key: 56033
Features & Appliances
Features
  • Heating System: Natural gas, Radiant heat
  • Cooling System: None
  • Basement: Unfinished, N/A
  • Parking: No Garage
  • Exterior Features: Stone, Concrete Block
  • Sewer: Sanitary sewer
Address Map
  • Location: CA, Ontario, Brockville, K6V1P6
  • Street: Pearl
  • Street Number: 61
  • Street Suffix: Street
  • Longitude: W76° 18' 59.5''
  • Latitude: N44° 35' 40.1''
  • Street Dir Suffix: East
Additional Information
  • Water Source:
  • Foundation Details:
  • Lot Size Dimensions: 60 x 120 FT
  • Stories: 2.0
Financial
  • Tax Annual Amount: 11850
Powered by REALTOR.ca
Listing updated: 2026-04-16 10:35:17
List Your Property
Mortgage Calculator
Get Pre-Approved
$
$
%
%
years
Monthly Payment (Est.) $
Listing Information
  • List Agent Key: 1825699
  • List Office Key: 56033
  • Modification Timestamp: 2026-03-23T18:35:14Z
  • Originating System Name: Rideau - St. Lawrence Real Estate Board
  • Status Change Timestamp: 2026-03-23T18:28:14Z
Powered by REALTOR.ca
Listing updated: 2026-04-16 10:35:18
REALTOR®, REALTORS®, and the REALTOR® logo are certification marks that are owned by REALTOR® Canada Inc. and licensed exclusively to The Canadian Real Estate Association (CREA). These certification marks identify real estate professionals who are members of CREA and who must abide by CREA’s By‐Laws, Rules, and the REALTOR® Code. The MLS® trademark and the MLS® logo are owned by CREA and identify the quality of services provided by real estate professionals who are members of CREA.

The information contained on this site is based in whole or in part on information that is provided by members of The Canadian Real Estate Association, who are responsible for its accuracy. CREA reproduces and distributes this information as a service for its members and assumes no responsibility for its accuracy.

Website is operated by a brokerage or salesperson who is a member of The Canadian Real Estate Association.

The listing content on this website is protected by copyright and other laws, and is intended solely for the private, non‐commercial use by individuals. Any other reproduction, distribution or use of the content, in whole or in part, is specifically forbidden. The prohibited uses include commercial use, “screen scraping”, “database scraping”, and any other activity intended to collect, store, reorganize or manipulate data on the pages produced by or displayed on this website.

By continuing to use this website and its services, you agree to these

These forms are provided to ComFree’s Unrepresented Sellers as a part of their Mere Posting ComFree Listing Contract.

I acknowledge I can only access these forms as a ComFree customer under contract.

These forms are provided to ComFree’s Unrepresented Sellers as a part of their Mere Posting ComFree Listing Contract and in partnership with Zubic Law.

I acknowledge I can only access these forms as a ComFree customer under contract.

These forms are provided to ComFree’s Unrepresented Sellers as a part of their Mere Posting ComFree Listing Contract and in partnership with Zubic Law.

I acknowledge I can only access these forms as a ComFree customer under contract.

How It Works

1. Purchase Your Package

2. We Ship Your ‘For Sale’ Sign

3. Book Your VR Tour

4. Complete Listing Input Forms

5. We Make Your Listing Live

6. Get Support 7 Days a Week

7. iSOLD!