Share
$1,069,000
Ontario,Stone Mills (Stone Mills)
For Sale Active
0-A GALBRAITH GROVE ROAD, Stone Mills (Stone Mills), Ontario K0K3N0
  • 3
  • 2
  • 1500 - 2000Square Feet
Contact Seller
Basic Details
Description

Discover the perfect setting for your “Turn Key Dream Home” on this beautiful and private 4-acre treed lot, just a short walk to the boat launch on scenic Varty Lake. This exceptional property offers both tranquility and convenience, with an 8 GPM drilled well already in place. Ideally located just five minutes from the charming village of Yarker, you’ll enjoy

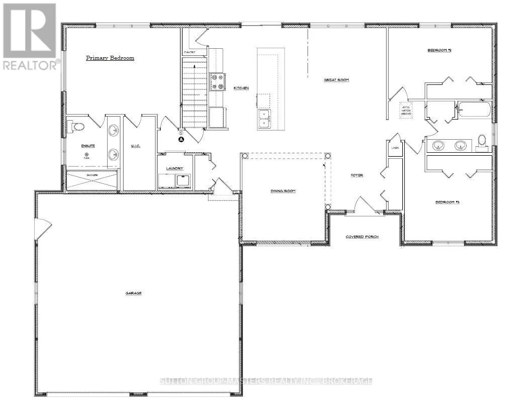
access to everyday essentials including a grocery store, LCBO, library, daycare centre, waterfront park and playground, churches, fire hall, and a variety of home-based businesses. The nearby community of Camden East-only a four-minute drive-offers gas, pizza takeout, an LCBO outlet, local produce, fresh baked goods, and more. Positioned centrally between Kingston and Napanee, both just 18 minutes away, this location provides the perfect balance of rural serenity and urban accessibility. To be built by NorthPeak Homes, a Tarion-registered builder, The Pinnacle is a thoughtfully designed 1,780 sq. ft. executive bungalow offered at the advertised price with the Signature trim level (see specifications). Buyers have the opportunity to customize finishes, explore upgrades, or value-engineer options to suit their vision and budget. Comprehensive documentation-including survey, hydrogeological report, and development agreement-is available. Additional models and fully custom home design options are also offered. NorthPeak Homes provides a complete, turnkey experience including custom home design, full construction and site management, as well as guidance with financing and project budgeting. (id:62650)

Read More
Basic Details
  • Property Type: Residential
  • Listing Type: For Sale
  • Listing ID: X12911910
  • Price: $1,069,000
  • Bedrooms: 3
  • Bathrooms: 2
  • Square Footage: 1500 - 2000 Sqft
  • Status: Active
  • Property Sub Type: Single Family
  • Office Key: 55430
Features & Appliances
Features
  • Heating System: Propane, Forced air
  • Cooling System: Central air conditioning
  • Basement: Partially finished, N/A
  • Parking: Garage, Attached Garage
  • Architectural Style: Bungalow
  • Exterior Features: Vinyl siding, Stone
  • Sewer: Septic System
  • Utilities: Electricity
Address Map
  • Location: CA, Ontario, Stone Mills (Stone Mills), K0K3N0
  • Street: Galbraith Grove
  • Street Number: 0-A
  • Street Suffix: Road
  • Longitude: W77° 11' 46.6''
  • Latitude: N44° 23' 9.6''
Additional Information
  • Water Source:
  • Community Features:
  • Foundation Details:
  • Lot Features:
  • Lot Size Dimensions: 206.7 x 859.6 FT
  • Stories: 1.0
Powered by REALTOR.ca
Listing updated: 2026-04-18 02:03:44
List Your Property
Mortgage Calculator
Get Pre-Approved
$
$
%
%
years
Monthly Payment (Est.) $
Similar Properties
Listing Information
  • List Agent Key: 1658589
  • List Office Key: 55430
  • Modification Timestamp: 2026-04-08T00:20:57Z
  • Originating System Name: Kingston & Area Real Estate Association
  • Status Change Timestamp: 2026-04-08T00:10:22Z
Powered by REALTOR.ca
Listing updated: 2026-04-18 02:03:45
REALTOR®, REALTORS®, and the REALTOR® logo are certification marks that are owned by REALTOR® Canada Inc. and licensed exclusively to The Canadian Real Estate Association (CREA). These certification marks identify real estate professionals who are members of CREA and who must abide by CREA’s By‐Laws, Rules, and the REALTOR® Code. The MLS® trademark and the MLS® logo are owned by CREA and identify the quality of services provided by real estate professionals who are members of CREA.

The information contained on this site is based in whole or in part on information that is provided by members of The Canadian Real Estate Association, who are responsible for its accuracy. CREA reproduces and distributes this information as a service for its members and assumes no responsibility for its accuracy.

Website is operated by a brokerage or salesperson who is a member of The Canadian Real Estate Association.

The listing content on this website is protected by copyright and other laws, and is intended solely for the private, non‐commercial use by individuals. Any other reproduction, distribution or use of the content, in whole or in part, is specifically forbidden. The prohibited uses include commercial use, “screen scraping”, “database scraping”, and any other activity intended to collect, store, reorganize or manipulate data on the pages produced by or displayed on this website.

By continuing to use this website and its services, you agree to these

These forms are provided to ComFree’s Unrepresented Sellers as a part of their Mere Posting ComFree Listing Contract.

I acknowledge I can only access these forms as a ComFree customer under contract.

These forms are provided to ComFree’s Unrepresented Sellers as a part of their Mere Posting ComFree Listing Contract and in partnership with Zubic Law.

I acknowledge I can only access these forms as a ComFree customer under contract.

These forms are provided to ComFree’s Unrepresented Sellers as a part of their Mere Posting ComFree Listing Contract and in partnership with Zubic Law.

I acknowledge I can only access these forms as a ComFree customer under contract.

How It Works

1. Purchase Your Package

2. We Ship Your ‘For Sale’ Sign

3. Book Your VR Tour

4. Complete Listing Input Forms

5. We Make Your Listing Live

6. Get Support 7 Days a Week

7. iSOLD!