Share
$699,900
Ontario,Hamilton (North End)
For Sale Active
443 WENTWORTH STREET N, Hamilton (North End), Ontario L8L5W6
  • 2
  • 2,942 Sqft
Basic Details
Description

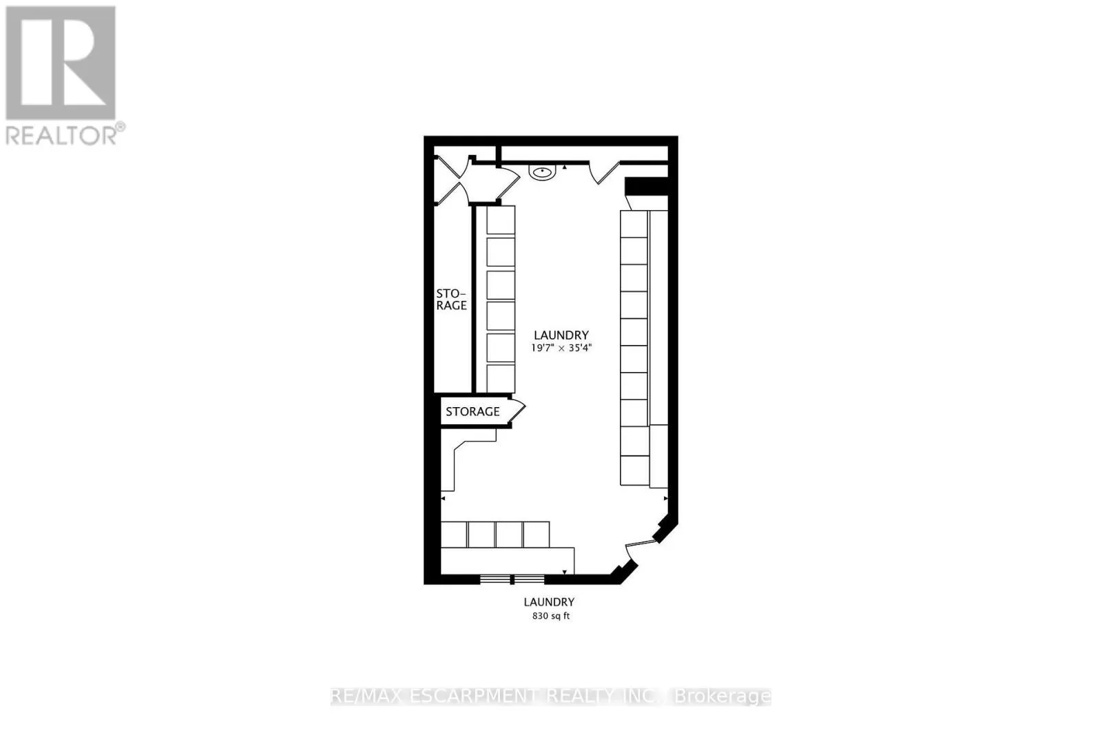
Great 3-unit investment property including an operating Laundromat business. Property located on the corner of Francis St and Wellington St N. Easy access to QEW via Nikola Tesla. Close to all amenities, West Harbour Go Station, Tim Hortons Field, Restaurants, Schools, Public Transit, Hospital, and Bennetto Community Centre. Property consists of income producing Laundromat approximately 1000 sq ft. as well

as 2 residential apartments. Above is nicely finished 2 bedroom residential unit that is approximately 890 sq ft with an outside terrace. There is a second residential unit; a 410sf bachelor apartment on the ground floor. Full basement and parking at rear of the building. The Laundromat and equipment are included in the sale but it is a cash business with no financials. Both residential units are currently vacant to facilitate an easy sale. Be part of the Long-term revitalization of Hamilton’s North End. (id:62650)

Read More
Basic Details
  • Property Type: Commercial Sale
  • Listing Type: For Sale
  • Listing ID: X12915732
  • Price: $699,900
  • Bathrooms: 2
  • Square Footage: 2,942 Sqft
  • Status: Active
  • Property Sub Type: Retail
  • Office Key: 266588
Features & Appliances
Features
  • Heating System: Forced air, Natural gas
  • Cooling System: Fully air conditioned
  • Sewer: Sanitary sewer
Address Map
  • Location: CA, Ontario, Hamilton (North End), L8L5W6
  • Street: Wentworth
  • Street Number: 443
  • Street Suffix: Street
  • Longitude: W80° 9' 22''
  • Latitude: N43° 15' 52''
  • Street Dir Suffix: North
Additional Information
  • Water Source:
  • Lot Size Dimensions: 26.32 x 70.19 FT
Financial
  • Tax Annual Amount: 6466.66
Powered by REALTOR.ca
Listing updated: 2026-04-26 01:49:59
List Your Property
Mortgage Calculator
Get Pre-Approved
$
$
%
%
years
Monthly Payment (Est.) $
Listing Information
  • List Agent Key: 1953908
  • List Office Key: 266588
  • Modification Timestamp: 2026-03-24T19:25:42Z
  • Originating System Name: Toronto Regional Real Estate Board
  • Status Change Timestamp: 2026-03-24T19:19:03Z
Powered by REALTOR.ca
Listing updated: 2026-04-26 01:49:59
REALTOR®, REALTORS®, and the REALTOR® logo are certification marks that are owned by REALTOR® Canada Inc. and licensed exclusively to The Canadian Real Estate Association (CREA). These certification marks identify real estate professionals who are members of CREA and who must abide by CREA’s By‐Laws, Rules, and the REALTOR® Code. The MLS® trademark and the MLS® logo are owned by CREA and identify the quality of services provided by real estate professionals who are members of CREA.

The information contained on this site is based in whole or in part on information that is provided by members of The Canadian Real Estate Association, who are responsible for its accuracy. CREA reproduces and distributes this information as a service for its members and assumes no responsibility for its accuracy.

Website is operated by a brokerage or salesperson who is a member of The Canadian Real Estate Association.

The listing content on this website is protected by copyright and other laws, and is intended solely for the private, non‐commercial use by individuals. Any other reproduction, distribution or use of the content, in whole or in part, is specifically forbidden. The prohibited uses include commercial use, “screen scraping”, “database scraping”, and any other activity intended to collect, store, reorganize or manipulate data on the pages produced by or displayed on this website.

By continuing to use this website and its services, you agree to these

These forms are provided to ComFree’s Unrepresented Sellers as a part of their Mere Posting ComFree Listing Contract.

I acknowledge I can only access these forms as a ComFree customer under contract.

These forms are provided to ComFree’s Unrepresented Sellers as a part of their Mere Posting ComFree Listing Contract and in partnership with Zubic Law.

I acknowledge I can only access these forms as a ComFree customer under contract.

These forms are provided to ComFree’s Unrepresented Sellers as a part of their Mere Posting ComFree Listing Contract and in partnership with Zubic Law.

I acknowledge I can only access these forms as a ComFree customer under contract.

How It Works

1. Purchase Your Package

2. We Ship Your ‘For Sale’ Sign

3. Book Your VR Tour

4. Complete Listing Input Forms

5. We Make Your Listing Live

6. Get Support 7 Days a Week

7. iSOLD!