Share
$799,900
Ontario,Ottawa
For Sale Active
348 DONALD B. MUNRO DRIVE, Ottawa, Ontario K0A1L0
  • 3
  • 3
  • 1500 - 2000Square Feet
Basic Details
Description

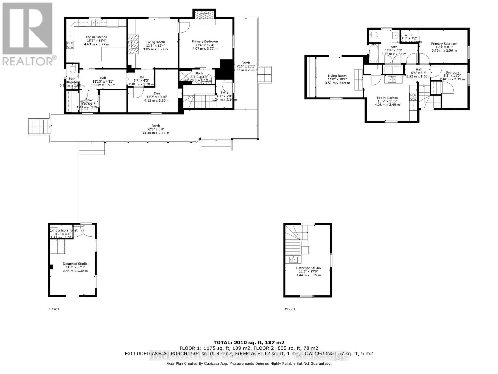
Welcome to 348 Donald B Munro Dr.! This non-conforming Duplex is a beautiful Victorian Brick home filled with character and charm located in the quaint Village of Carp with a bonus detached studio/flex space. Main level unit is currently being rented for $2,200/m and the upper unit is currently being rented for $2,000/m and the detached studio/flex space is currently

being rented at $2,260. Insurance, Utilities, Water/Sewer, Snow removal and taxes total ($12,497). This provides you with an approximate annual cash flow of ($65,022). This unique property features numerous modern updates throughout. The renovated main level unit has a welcoming layout with hardwood and ceramic flooring throughout, spacious living/dining room and modern chef-style eat-in kitchen with abundant cabinetry, granite countertops and stainless-steel appliances. The one-bedroom + den features plenty of closet space with easy access to a fully renovated bathroom. Main Floor powder room & Laundry room. The second level unit is equally beautiful and mimics the lower level with a spacious living/dining room and modern chef-style eat in kitchen. 2 sun-filled bedrooms and plenty of closet space with easy access to a fully renovated bathroom. Second Floor Laundry. This property offers numerous options: great for investment, as a single-family home, or with the potential for a home-based business or a teenage retreat. This incredible property is zoned V1M and is situated in a great community, close to schools, indoor arena, outdoor rink, Medical Centre, Farmers Market, tennis courts, restaurants, coffee shops and bakeries. Also ideal for the outdoor enthusiasts, nature lovers and golfers and within proximity to Trails, Ottawa River, Boating, Fishing, Irish Hills Golf and Country Club and so much more! (id:62650)

Read More
Basic Details
  • Property Type: Residential
  • Listing Type: For Sale
  • Listing ID: X12917792
  • Price: $799,900
  • Bedrooms: 3
  • Bathrooms: 3
  • Half Bathrooms: 1
  • Square Footage: 1500 - 2000 Sqft
  • Status: Active
  • Property Sub Type: Single Family
  • Office Key: 283725
Features & Appliances
Features
  • Heating System: Forced air, Natural gas
  • Basement: Full, Unfinished
  • Parking: No Garage
  • Exterior Features: Brick, Wood
  • Sewer: Sanitary sewer
Address Map
  • Location: CA, Ontario, Ottawa, K0A1L0
  • Street: Donald B. Munro
  • Street Number: 348
  • Street Suffix: Drive
  • Longitude: W77° 58' 17.5''
  • Latitude: N45° 20' 42.6''
Additional Information
  • Water Source:
  • Community Features:
  • Foundation Details:
  • Lot Features:
  • Lot Size Dimensions: 142.6 FT
  • Stories: 2.0
Financial
  • Tax Annual Amount: 3393.07
Powered by REALTOR.ca
Listing updated: 2026-04-25 07:02:44
List Your Property
Mortgage Calculator
Get Pre-Approved
$
$
%
%
years
Monthly Payment (Est.) $
Listing Information
  • List Agent Key: 1929388
  • List Office Key: 283725
  • Modification Timestamp: 2026-04-24T05:40:35Z
  • Originating System Name: Ottawa Real Estate Board
  • Status Change Timestamp: 2026-04-24T05:31:15Z
Powered by REALTOR.ca
Listing updated: 2026-04-25 07:02:45
REALTOR®, REALTORS®, and the REALTOR® logo are certification marks that are owned by REALTOR® Canada Inc. and licensed exclusively to The Canadian Real Estate Association (CREA). These certification marks identify real estate professionals who are members of CREA and who must abide by CREA’s By‐Laws, Rules, and the REALTOR® Code. The MLS® trademark and the MLS® logo are owned by CREA and identify the quality of services provided by real estate professionals who are members of CREA.

The information contained on this site is based in whole or in part on information that is provided by members of The Canadian Real Estate Association, who are responsible for its accuracy. CREA reproduces and distributes this information as a service for its members and assumes no responsibility for its accuracy.

Website is operated by a brokerage or salesperson who is a member of The Canadian Real Estate Association.

The listing content on this website is protected by copyright and other laws, and is intended solely for the private, non‐commercial use by individuals. Any other reproduction, distribution or use of the content, in whole or in part, is specifically forbidden. The prohibited uses include commercial use, “screen scraping”, “database scraping”, and any other activity intended to collect, store, reorganize or manipulate data on the pages produced by or displayed on this website.

By continuing to use this website and its services, you agree to these

These forms are provided to ComFree’s Unrepresented Sellers as a part of their Mere Posting ComFree Listing Contract.

I acknowledge I can only access these forms as a ComFree customer under contract.

These forms are provided to ComFree’s Unrepresented Sellers as a part of their Mere Posting ComFree Listing Contract and in partnership with Zubic Law.

I acknowledge I can only access these forms as a ComFree customer under contract.

These forms are provided to ComFree’s Unrepresented Sellers as a part of their Mere Posting ComFree Listing Contract and in partnership with Zubic Law.

I acknowledge I can only access these forms as a ComFree customer under contract.

How It Works

1. Purchase Your Package

2. We Ship Your ‘For Sale’ Sign

3. Book Your VR Tour

4. Complete Listing Input Forms

5. We Make Your Listing Live

6. Get Support 7 Days a Week

7. iSOLD!