Share
$374,900
Newfoundland & Labrador,Conception Bay South
For Sale Active
62 Hickory Place, Conception Bay South, Newfoundland & Labrador A1W4Z3
  • 4
  • 4
  • 1,989 Sqft
Contact Seller
Basic Details
Description

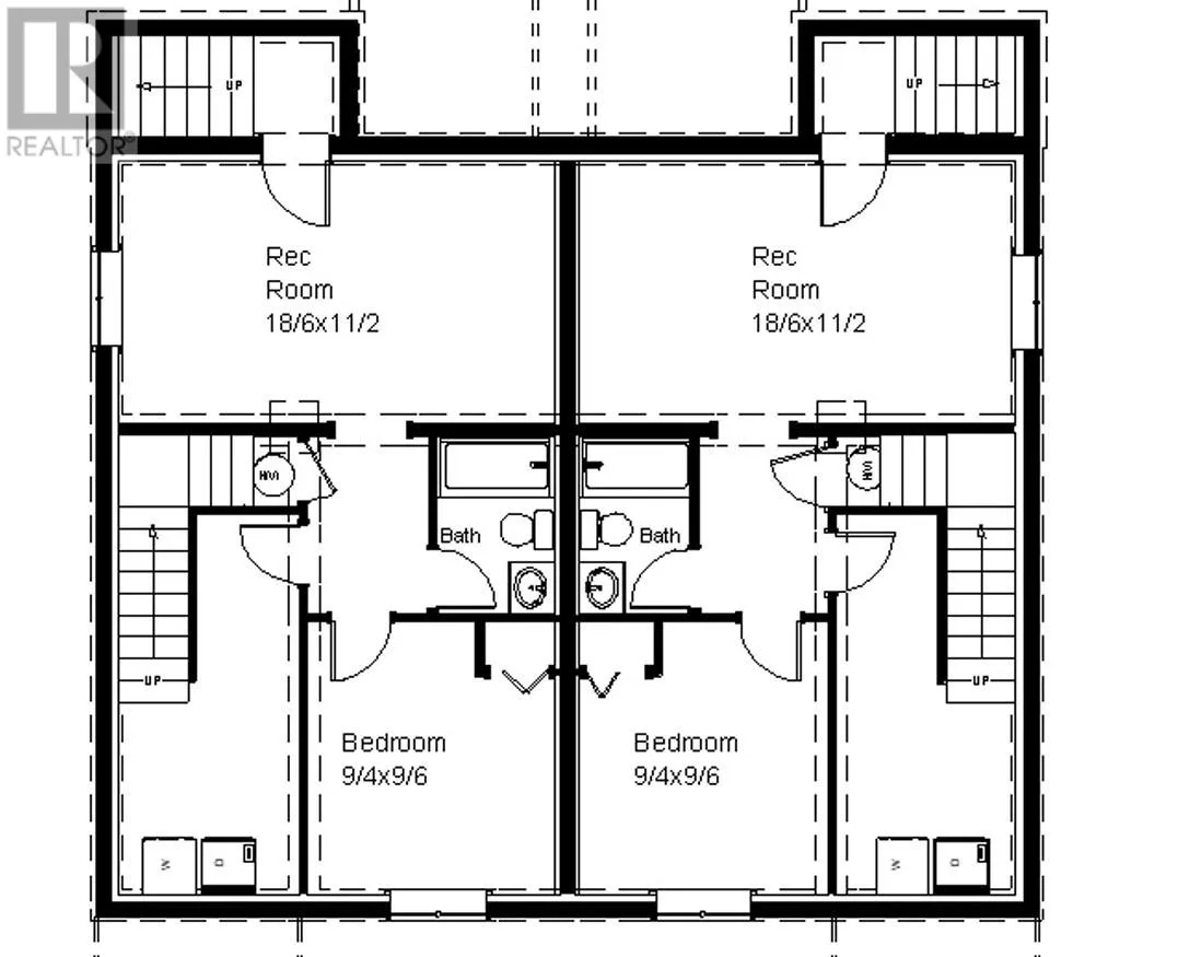
Welcome to this well-maintained 2-storey duplex situated in the picturesque community of Conception Bay South. Offering a spacious layout across three levels, this home delivers comfort, functionality, and room to grow. The main floor features a bright living room, a convenient half bath, and a modern kitchen with direct access to the rear deck—perfect for relaxing or entertaining. Upstairs you’ll

find a large primary bedroom complete with its own ensuite and walk-in closet, along with two additional well-sized bedrooms and a full bathroom. The undeveloped lower level presents a blank canvas for your future development of a rec room, bedroom, extra storage, gym etc. Outside, enjoy a paved driveway and a private rear deck overlooking the backyard. This property is a fantastic opportunity for first-time buyers or families looking for a move-in-ready home in a desirable location near schools, amenities, and beautiful coastal scenery. (id:62650)

Read More
Basic Details
  • Property Type: Residential
  • Listing Type: For Sale
  • Listing ID: 1295281
  • Price: $374,900
  • Bedrooms: 4
  • Bathrooms: 4
  • Half Bathrooms: 1
  • Square Footage: 1,989 Sqft
  • Year Built: 2025
  • Status: Active
  • Property Attached Yn: 1
  • Property Sub Type: Single Family
  • Office Key: 88555
Features & Appliances
Features
  • Heating System: Electric
  • Architectural Style: 2 Level
  • Exterior Features: Vinyl siding
  • Flooring: Mixed Flooring
  • Sewer: Municipal sewage system
Address Map
  • Location: CA, Newfoundland & Labrador, Conception Bay South, A1W4Z3
  • Street: Hickory
  • Street Number: 62
  • Street Suffix: Place
  • Longitude: W53° 2' 37''
  • Latitude: N47° 30' 47.6''
Additional Information
  • Water Source:
  • Foundation Details:
  • Lot Size Dimensions: 30 x 100
  • Stories: 2.0
Powered by REALTOR.ca
Listing updated: 2026-04-17 19:28:59
List Your Property
Mortgage Calculator
Get Pre-Approved
$
$
%
%
years
Monthly Payment (Est.) $
Listing Information
  • List Agent Key: 1788461
  • List Office Key: 88555
  • Modification Timestamp: 2026-03-25T12:10:18Z
  • Originating System Name: Newfoundland & Labrador Association of REALTORS®
  • Status Change Timestamp: 2026-03-25T12:02:38Z
Powered by REALTOR.ca
Listing updated: 2026-04-17 19:29:00
REALTOR®, REALTORS®, and the REALTOR® logo are certification marks that are owned by REALTOR® Canada Inc. and licensed exclusively to The Canadian Real Estate Association (CREA). These certification marks identify real estate professionals who are members of CREA and who must abide by CREA’s By‐Laws, Rules, and the REALTOR® Code. The MLS® trademark and the MLS® logo are owned by CREA and identify the quality of services provided by real estate professionals who are members of CREA.

The information contained on this site is based in whole or in part on information that is provided by members of The Canadian Real Estate Association, who are responsible for its accuracy. CREA reproduces and distributes this information as a service for its members and assumes no responsibility for its accuracy.

Website is operated by a brokerage or salesperson who is a member of The Canadian Real Estate Association.

The listing content on this website is protected by copyright and other laws, and is intended solely for the private, non‐commercial use by individuals. Any other reproduction, distribution or use of the content, in whole or in part, is specifically forbidden. The prohibited uses include commercial use, “screen scraping”, “database scraping”, and any other activity intended to collect, store, reorganize or manipulate data on the pages produced by or displayed on this website.

By continuing to use this website and its services, you agree to these

These forms are provided to ComFree’s Unrepresented Sellers as a part of their Mere Posting ComFree Listing Contract.

I acknowledge I can only access these forms as a ComFree customer under contract.

These forms are provided to ComFree’s Unrepresented Sellers as a part of their Mere Posting ComFree Listing Contract and in partnership with Zubic Law.

I acknowledge I can only access these forms as a ComFree customer under contract.

These forms are provided to ComFree’s Unrepresented Sellers as a part of their Mere Posting ComFree Listing Contract and in partnership with Zubic Law.

I acknowledge I can only access these forms as a ComFree customer under contract.

How It Works

1. Purchase Your Package

2. We Ship Your ‘For Sale’ Sign

3. Book Your VR Tour

4. Complete Listing Input Forms

5. We Make Your Listing Live

6. Get Support 7 Days a Week

7. iSOLD!