Share
$585,000
Ontario,Champlain
For Sale Active
120 MILL STREET, Champlain, Ontario K0B1R0
  • 1
  • 2
  • 700 - 1100Square Feet
Contact Seller
Basic Details
Description

Your forever home is coming to life! This beautiful 1-bedroom semi-detached bungalow is being built in a well-established neighbourhood in picturesque Vankleek Hill. Quality construction and custom design make this one a great investment in your future. This forever home is designed with adaptable spaces that grow with you through every stage of life, providing enduring style, long-term comfort, convenience,

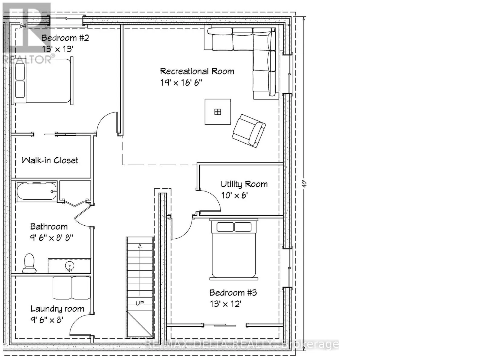
and lasting value. Enjoy the spacious feel of 9′ ceilings. Benefit from advanced, energy-efficient construction that keeps indoor temperatures comfortable year-round while dramatically reducing utility costs. High-performance foundation materials, modern insulation and low-solar windows will create a quieter, healthier living environment with long-term savings built right in. Open-concept main floor living includes: kitchen with granite counter-tops, LR, DR, main floor bedroom, a full bath and laundry. Unfinished basement: Designed to accommodate 2 additional bedrooms, large recreation room, full bath and second laundry. Quality materials, smart layout choices. The basement can be finished at an additional cost. Fully landscaped with 2-car paved driveway, natural gas central heating, central A/C, Automatic Garage Door Opener, Composite and Vinyl Siding. Tarion New Home Warranty. Note: HST is applicable to Sale Price. (id:62650)

Read More
Basic Details
  • Property Type: Residential
  • Listing Type: For Sale
  • Listing ID: X12923110
  • Price: $585,000
  • Bedrooms: 1
  • Bathrooms: 2
  • Square Footage: 700 - 1100 Sqft
  • Status: Active
  • Property Attached Yn: 1
  • Property Sub Type: Single Family
  • Office Key: 286594
Features & Appliances
Features
  • Heating System: Forced air, Natural gas
  • Cooling System: Central air conditioning
  • Basement: Unfinished, N/A
  • Parking: Garage, Attached Garage
  • Architectural Style: Raised bungalow
  • Exterior Features: Vinyl siding
  • Sewer: Sanitary sewer
  • Utilities: Electricity, Sewer
Address Map
  • Location: CA, Ontario, Champlain, K0B1R0
  • Street: Mill
  • Street Number: 120
  • Street Suffix: Street
  • Longitude: W75° 21' 3.1''
  • Latitude: N45° 31' 1.7''
Additional Information
  • Water Source:
  • Community Features:
  • Foundation Details:
  • Lot Features:
  • Lot Size Dimensions: 40 x 83 FT
  • Stories: 1.0
Powered by REALTOR.ca
Listing updated: 2026-05-16 22:10:20
List Your Property
Mortgage Calculator
Get Pre-Approved
$
$
%
%
years
Monthly Payment (Est.) $
Listing Information
  • List Agent Key: 2133960
  • List Office Key: 286594
  • Modification Timestamp: 2026-04-24T05:40:37Z
  • Originating System Name: Ottawa Real Estate Board
  • Status Change Timestamp: 2026-04-24T05:32:06Z
Powered by REALTOR.ca
Listing updated: 2026-05-16 22:10:20
REALTOR®, REALTORS®, and the REALTOR® logo are certification marks that are owned by REALTOR® Canada Inc. and licensed exclusively to The Canadian Real Estate Association (CREA). These certification marks identify real estate professionals who are members of CREA and who must abide by CREA’s By‐Laws, Rules, and the REALTOR® Code. The MLS® trademark and the MLS® logo are owned by CREA and identify the quality of services provided by real estate professionals who are members of CREA.

The information contained on this site is based in whole or in part on information that is provided by members of The Canadian Real Estate Association, who are responsible for its accuracy. CREA reproduces and distributes this information as a service for its members and assumes no responsibility for its accuracy.

Website is operated by a brokerage or salesperson who is a member of The Canadian Real Estate Association.

The listing content on this website is protected by copyright and other laws, and is intended solely for the private, non‐commercial use by individuals. Any other reproduction, distribution or use of the content, in whole or in part, is specifically forbidden. The prohibited uses include commercial use, “screen scraping”, “database scraping”, and any other activity intended to collect, store, reorganize or manipulate data on the pages produced by or displayed on this website.

By continuing to use this website and its services, you agree to these

These forms are provided to ComFree’s Unrepresented Sellers as a part of their Mere Posting ComFree Listing Contract.

I acknowledge I can only access these forms as a ComFree customer under contract.

These forms are provided to ComFree’s Unrepresented Sellers as a part of their Mere Posting ComFree Listing Contract and in partnership with Zubic Law.

I acknowledge I can only access these forms as a ComFree customer under contract.

These forms are provided to ComFree’s Unrepresented Sellers as a part of their Mere Posting ComFree Listing Contract and in partnership with Zubic Law.

I acknowledge I can only access these forms as a ComFree customer under contract.

How It Works

1. Purchase Your Package

2. We Ship Your ‘For Sale’ Sign

3. Book Your VR Tour

4. Complete Listing Input Forms

5. We Make Your Listing Live

6. Get Support 7 Days a Week

7. iSOLD!