Share
$950,000
Ontario,Port Dover
For Sale Active
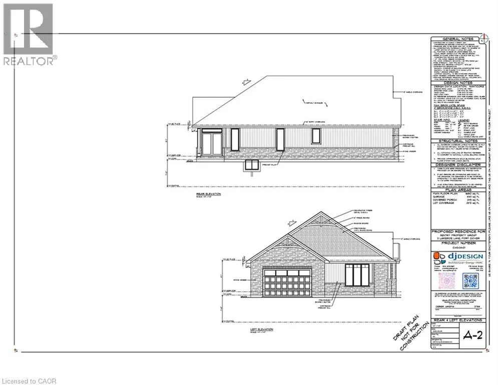
3 LAKESIDE Lane, Port Dover, Ontario N0A1N2
  • 2
  • 2
  • 1,680 Sqft
Contact Seller
Basic Details
Description

Presenting a thoughtfully crafted 1,680-square-foot bungalow “TO BE BUILT” in the picturesque lakeside town of Port Dover. Boasting attractive finishes, smart design, and premium craftsmanship, this home delivers an ideal balance of comfort and refinement. At first glance, the stone-and-Vinyl Sided Board & Batten exterior and covered front and rear porches announce the quality inside. Inside, you’ll find 9-foot ceilings

and cathedral ceiling in the great room anchored by a natural gas fireplace, along with luxury vinyl plank flooring that creates an open, spacious feel throughout the main living area. The residence offers 2 generous bedrooms and 2 baths, including a beautifully appointed primary ensuite with a custom tiled shower & heated floor. The dinette & kitchen area features a breakfast bar/island and granite countertops, providing a stylish yet practical space for cooking and entertaining. Step outside to a covered rear porch, accessible from both the great room and the primary bedroom, filling the space with natural light and outdoor enjoyment. Additional highlights include a 443 sq. ft. 1 1/2-car garage with opener, main-floor laundry with interior garage access for convenience. The basement includes all exterior basement walls studded and insulated, ready for future development. This home blends stylish finishes with modern conveniences, just moments from Lake Erie and the charming shops and dining of downtown Port Dover. Schedule your private showing today and experience lakeside living at its best. (id:62650)

Read More
Basic Details
  • Property Type: Residential
  • Listing Type: For Sale
  • Listing ID: 40810961
  • Price: $950,000
  • Bedrooms: 2
  • Bathrooms: 2
  • Square Footage: 1,680 Sqft
  • Status: Active
  • Property Sub Type: Single Family
  • Office Key: 289745
Features & Appliances
Features
  • Heating System: Forced air, Natural gas
  • Cooling System: Central air conditioning
  • Basement: Full, Unfinished
  • Parking: Attached Garage
  • Architectural Style: Bungalow
  • Exterior Features: Vinyl siding, Stone
  • Sewer: Municipal sewage system
  • Utilities: Natural Gas, Electricity
  • Fireplaces Total: 1
Address Map
  • Location: CA, Ontario, Port Dover, Port Dover, N0A1N2
  • Street: LAKESIDE
  • Street Number: 3
  • Street Suffix: Lane
  • Longitude: W81° 46' 54.4''
  • Latitude: N42° 47' 2.1''
Additional Information
  • Water Source:
  • Community Features:
  • Foundation Details:
  • Lot Features:
  • Stories: 1.0
Powered by REALTOR.ca
Listing updated: 2026-04-21 09:35:46
List Your Property
Mortgage Calculator
Get Pre-Approved
$
$
%
%
years
Monthly Payment (Est.) $
Listing Information
  • List Agent Key: 2127441
  • List Office Key: 289745
  • Modification Timestamp: 2026-03-26T14:51:01Z
  • Originating System Name: Cornerstone Association of REALTORS®
  • Status Change Timestamp: 2026-03-26T14:40:38Z
Powered by REALTOR.ca
Listing updated: 2026-04-21 09:35:47
REALTOR®, REALTORS®, and the REALTOR® logo are certification marks that are owned by REALTOR® Canada Inc. and licensed exclusively to The Canadian Real Estate Association (CREA). These certification marks identify real estate professionals who are members of CREA and who must abide by CREA’s By‐Laws, Rules, and the REALTOR® Code. The MLS® trademark and the MLS® logo are owned by CREA and identify the quality of services provided by real estate professionals who are members of CREA.

The information contained on this site is based in whole or in part on information that is provided by members of The Canadian Real Estate Association, who are responsible for its accuracy. CREA reproduces and distributes this information as a service for its members and assumes no responsibility for its accuracy.

Website is operated by a brokerage or salesperson who is a member of The Canadian Real Estate Association.

The listing content on this website is protected by copyright and other laws, and is intended solely for the private, non‐commercial use by individuals. Any other reproduction, distribution or use of the content, in whole or in part, is specifically forbidden. The prohibited uses include commercial use, “screen scraping”, “database scraping”, and any other activity intended to collect, store, reorganize or manipulate data on the pages produced by or displayed on this website.

By continuing to use this website and its services, you agree to these

These forms are provided to ComFree’s Unrepresented Sellers as a part of their Mere Posting ComFree Listing Contract.

I acknowledge I can only access these forms as a ComFree customer under contract.

These forms are provided to ComFree’s Unrepresented Sellers as a part of their Mere Posting ComFree Listing Contract and in partnership with Zubic Law.

I acknowledge I can only access these forms as a ComFree customer under contract.

These forms are provided to ComFree’s Unrepresented Sellers as a part of their Mere Posting ComFree Listing Contract and in partnership with Zubic Law.

I acknowledge I can only access these forms as a ComFree customer under contract.

How It Works

1. Purchase Your Package

2. We Ship Your ‘For Sale’ Sign

3. Book Your VR Tour

4. Complete Listing Input Forms

5. We Make Your Listing Live

6. Get Support 7 Days a Week

7. iSOLD!