Share
$1,875,000
British Columbia,Central Saanich
For Sale Active
7815 Wallace Dr, Central Saanich, British Columbia V8M2B1
Contact Seller
Basic Details
Description

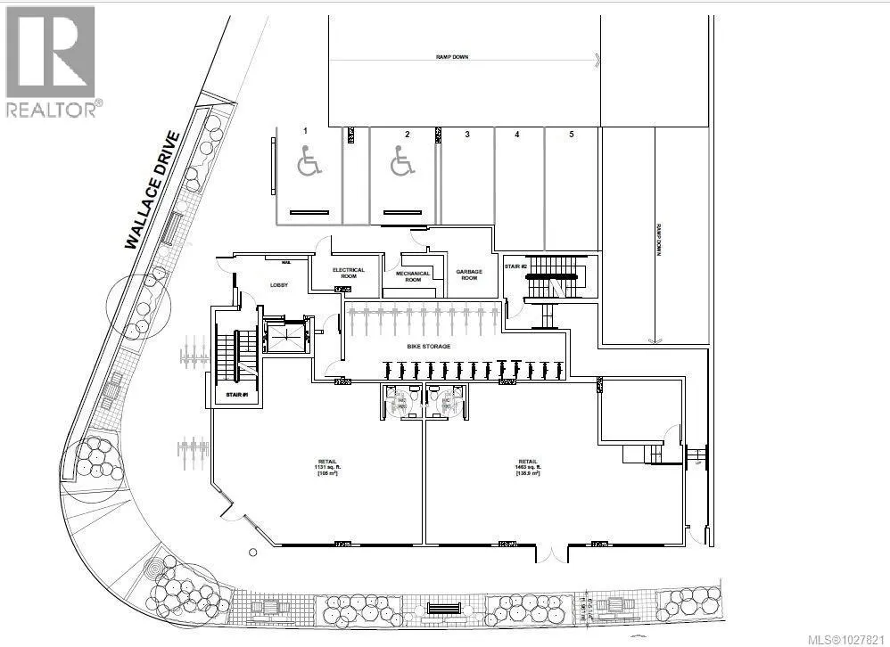
The Cento is a 28 unit luxury condominium project slated to be built in the heart of Saanichton BC, is now offering ground floor Medical office space for sale. Located at the corner of Wallace Drive and Mt. Newton Cross Rd, there is the option for two smaller square footage units of 1,250 SF, or one combined larger unit of

2,500 SF. This opportunity as shell space allows the end user ultimate autonomy in the pre-build specifications, working with the Developer to deliver the desired end-product. The location offers close proximity to Saanich Peninsula Hospital, Thrifty Foods, bank, pharmacy and a range of retail. As there is currently no Physician within the area GP would be an ideal use, but zoning also allows for Physio, Chiropractic, Dental and more. Completion of the development is set for fall of 2027. (id:62650)

Read More
Basic Details
  • Property Type: Commercial Sale
  • Listing Type: For Sale
  • Listing ID: 1027821
  • Price: $1,875,000
  • Status: Active
  • Property Sub Type: Office
  • Office Key: 53060
Address Map
  • Location: CA, British Columbia, Central Saanich, V8M2B1
  • Street: Wallace
  • Street Number: 7815
  • Street Suffix: Drive
  • Longitude: W124° 34' 52.6''
  • Latitude: N48° 35' 41.1''
  • Zoning: Unknown
Powered by REALTOR.ca
Listing updated: 2026-05-15 08:03:45
List Your Property
Mortgage Calculator
Get Pre-Approved
$
$
%
%
years
Monthly Payment (Est.) $
Similar Properties
Listing Information
  • List Agent Key: 2024948
  • List Office Key: 53060
  • Modification Timestamp: 2026-03-16T22:36:11Z
  • Originating System Name: Victoria Real Estate Board
  • Status Change Timestamp: 2026-03-16T22:29:14Z
Powered by REALTOR.ca
Listing updated: 2026-05-15 08:03:46
REALTOR®, REALTORS®, and the REALTOR® logo are certification marks that are owned by REALTOR® Canada Inc. and licensed exclusively to The Canadian Real Estate Association (CREA). These certification marks identify real estate professionals who are members of CREA and who must abide by CREA’s By‐Laws, Rules, and the REALTOR® Code. The MLS® trademark and the MLS® logo are owned by CREA and identify the quality of services provided by real estate professionals who are members of CREA.

The information contained on this site is based in whole or in part on information that is provided by members of The Canadian Real Estate Association, who are responsible for its accuracy. CREA reproduces and distributes this information as a service for its members and assumes no responsibility for its accuracy.

Website is operated by a brokerage or salesperson who is a member of The Canadian Real Estate Association.

The listing content on this website is protected by copyright and other laws, and is intended solely for the private, non‐commercial use by individuals. Any other reproduction, distribution or use of the content, in whole or in part, is specifically forbidden. The prohibited uses include commercial use, “screen scraping”, “database scraping”, and any other activity intended to collect, store, reorganize or manipulate data on the pages produced by or displayed on this website.

By continuing to use this website and its services, you agree to these

These forms are provided to ComFree’s Unrepresented Sellers as a part of their Mere Posting ComFree Listing Contract.

I acknowledge I can only access these forms as a ComFree customer under contract.

These forms are provided to ComFree’s Unrepresented Sellers as a part of their Mere Posting ComFree Listing Contract and in partnership with Zubic Law.

I acknowledge I can only access these forms as a ComFree customer under contract.

These forms are provided to ComFree’s Unrepresented Sellers as a part of their Mere Posting ComFree Listing Contract and in partnership with Zubic Law.

I acknowledge I can only access these forms as a ComFree customer under contract.

How It Works

1. Purchase Your Package

2. We Ship Your ‘For Sale’ Sign

3. Book Your VR Tour

4. Complete Listing Input Forms

5. We Make Your Listing Live

6. Get Support 7 Days a Week

7. iSOLD!