Share
$899,900
Ontario,London South (South C)
For Sale Active
532 ROSECLIFFE TERRACE, London South (South C), Ontario N6K4H6
  • 6
  • 4
  • 2500 - 3000Square Feet
Next Open House
  • Apr 26 14:00 - 16:00
Basic Details
Description

EXTREMELY WELL PRICED – Exceptional Value in Rosecliffe Estates! Welcome to this stunning executive residence in prestigious Rosecliffe Estates, where timeless elegance meets modern comfort. Immaculately maintained and thoughtfully updated, this impressive 4+2 bedroom home offers the perfect blend of sophistication, space, & functionality. Step into the grand foyer, highlighted by a dramatic curved oak staircase that immediately sets the

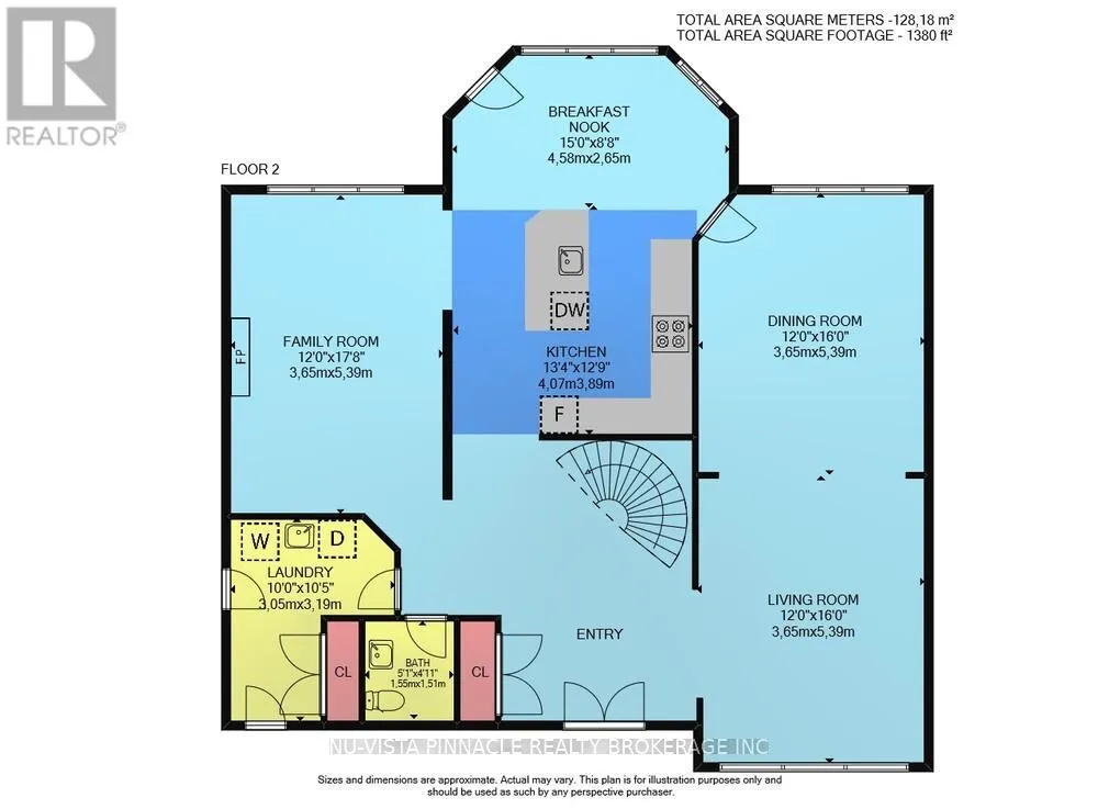
tone for the refined interior. The main floor features a classic, well-designed layout with spacious formal living and dining rooms, a warm and inviting family room, convenient main-floor laundry & a beautifully appointed kitchen with dinette.The recently updated kitchen is truly a chef’s dream, featuring a new quartz island countertop, a stylish sink and faucet, abundant cabinetry, expansive counter space & an ideal working triangle for effortless meal preparation and entertaining.Upstairs, retreat to the luxurious primary suite, a private sanctuary boasting generous proportions, a spa-inspired ensuite & an oversized walk-in closet. Three additional bedrooms are all impressively sized, offering comfort and flexibility for family or guests.The freshly updated lower level expands your living space with new paint, a renovated 3-piece bathroom, a large recreation room, two additional bedrooms & a dedicated office, perfect for extended family, guests, or working from home.Extensive upgrades provide peace of mind & efficiency, including: Energy Star-rated windows throughout the first & second floors, recently replaced front doors and foyer window hardwood flooring in the family, dining, & living rooms, updated ceramic tile in the foyer and kitchen, upgraded trim and interior doors, energy-efficient furnace and central air conditioning. This exceptional home offers all the quality finishes and thoughtful details you would expect in a property of this calibre & at an incredible price point. See documents for list of upgrades! (id:62650)

Read More
Basic Details
  • Property Type: Residential
  • Listing Type: For Sale
  • Listing ID: X12962572
  • Price: $899,900
  • Bedrooms: 6
  • Bathrooms: 4
  • Half Bathrooms: 1
  • View: City view
  • Square Footage: 2500 - 3000 Sqft
  • Status: Active
  • Property Sub Type: Single Family
  • Office Key: 300585
Features & Appliances
Features
  • Heating System: Forced air, Natural gas
  • Cooling System: Central air conditioning
  • Basement: Finished, Full
  • Fence: Fenced yard, Fully Fenced
  • Parking: Garage, Attached Garage
  • Exterior Features: Brick, Aluminum siding
  • Flooring: Hardwood, Carpeted, Ceramic
  • Sewer: Sanitary sewer
  • Utilities: Electricity, Sewer, Cable
  • Fireplaces Total: 1
Address Map
  • Location: CA, Ontario, London South (South C), N6K4H6
  • Street: Rosecliffe
  • Street Number: 532
  • Street Suffix: Terrace
  • Longitude: W98° 47' 21.3''
  • Latitude: N41° 0' 11.6''
Additional Information
  • Water Source:
  • Foundation Details:
  • Lot Features:
  • Lot Size Dimensions: 65.8 x 122.1 FT
  • Stories: 2.0
Financial
  • Tax Annual Amount: 6840
Powered by REALTOR.ca
Listing updated: 2026-04-25 08:54:11
List Your Property
Mortgage Calculator
Get Pre-Approved
$
$
%
%
years
Monthly Payment (Est.) $
Similar Properties
Listing Information
  • List Agent Key: 1387498
  • List Office Key: 300585
  • Modification Timestamp: 2026-04-21T21:00:13Z
  • Originating System Name: London and St. Thomas Association of REALTORS®
  • Status Change Timestamp: 2026-04-21T20:52:13Z
Powered by REALTOR.ca
Listing updated: 2026-04-25 08:54:11
REALTOR®, REALTORS®, and the REALTOR® logo are certification marks that are owned by REALTOR® Canada Inc. and licensed exclusively to The Canadian Real Estate Association (CREA). These certification marks identify real estate professionals who are members of CREA and who must abide by CREA’s By‐Laws, Rules, and the REALTOR® Code. The MLS® trademark and the MLS® logo are owned by CREA and identify the quality of services provided by real estate professionals who are members of CREA.

The information contained on this site is based in whole or in part on information that is provided by members of The Canadian Real Estate Association, who are responsible for its accuracy. CREA reproduces and distributes this information as a service for its members and assumes no responsibility for its accuracy.

Website is operated by a brokerage or salesperson who is a member of The Canadian Real Estate Association.

The listing content on this website is protected by copyright and other laws, and is intended solely for the private, non‐commercial use by individuals. Any other reproduction, distribution or use of the content, in whole or in part, is specifically forbidden. The prohibited uses include commercial use, “screen scraping”, “database scraping”, and any other activity intended to collect, store, reorganize or manipulate data on the pages produced by or displayed on this website.

By continuing to use this website and its services, you agree to these

These forms are provided to ComFree’s Unrepresented Sellers as a part of their Mere Posting ComFree Listing Contract.

I acknowledge I can only access these forms as a ComFree customer under contract.

These forms are provided to ComFree’s Unrepresented Sellers as a part of their Mere Posting ComFree Listing Contract and in partnership with Zubic Law.

I acknowledge I can only access these forms as a ComFree customer under contract.

These forms are provided to ComFree’s Unrepresented Sellers as a part of their Mere Posting ComFree Listing Contract and in partnership with Zubic Law.

I acknowledge I can only access these forms as a ComFree customer under contract.

How It Works

1. Purchase Your Package

2. We Ship Your ‘For Sale’ Sign

3. Book Your VR Tour

4. Complete Listing Input Forms

5. We Make Your Listing Live

6. Get Support 7 Days a Week

7. iSOLD!