Share
$520,000
Saskatchewan,Candle Lake
For Sale Active
Lot 3 Valley Ridge ROAD, Candle Lake, Saskatchewan S0J3E0
  • 3
  • 2
  • 1,274 Sqft
Contact Seller
Basic Details
Description

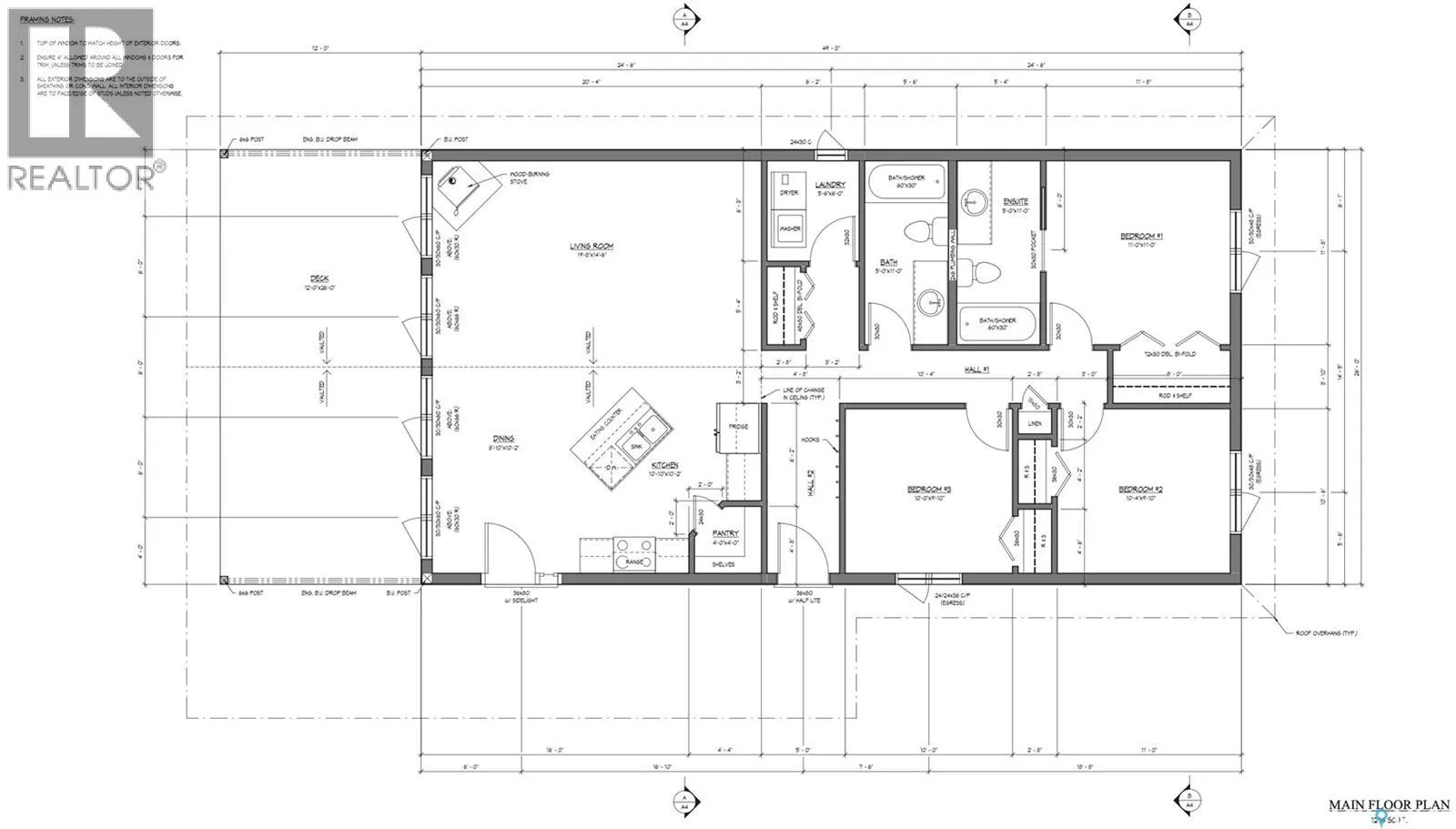
NEW BUILD. Ready to Enjoy. 1274sqft, 3-bedroom, 2-bath home. The home offers great open layout with large front windows providing abundance of natural light with a sense of balance and warmth throughout the house. A covered front deck provides a wonderful outdoor space. Thoughtful touches include: a sit-up island, Quartz counters, under-cabinet lighting, dishwasher space, pantry, vaulted pine ceiling, dedicated

laundry room, and efficient LED lighting throughout. Built on a full ICF slab, the home includes a 1000-gallon water tank, 1400-gallon septic system, and a NG high-efficiency furnace. Located in the new Phase II of Aspen Ridge on a spacious 1.17-acre lot, the property offers a high, well-drained elevation with a completed driveway and culvert. Added advantages and savings include a fully prepped area with ample room for a future garage, upgraded 200-amp service already brought in, and TAXES included in the purchase price, offering meaningful upfront savings. Quick possession, 2025 value pricing, and full home warranty coverage give you confidence from day one. Blueprint and Sitemap in supplements. This could be #yourhappyplace. *pls note: AI-enhanced images may be used in this listing for marketing purposes. (id:62650)

Read More
Basic Details
  • Property Type: Residential
  • Listing Type: For Sale
  • Listing ID: SK032218
  • Price: $520,000
  • Bedrooms: 3
  • Bathrooms: 2
  • Square Footage: 1,274 Sqft
  • Year Built: 2024
  • Status: Active
  • Property Sub Type: Single Family
  • Office Key: 285683
Features & Appliances
Features
  • Heating System: Natural gas
  • Basement: Crawl space
  • Parking: Gravel, Parking Space(s)
  • Architectural Style: Bungalow
Address Map
  • Location: CA, Saskatchewan, Candle Lake, S0J3E0
  • Longitude: W106° 45' 30.2''
  • Latitude: N53° 41' 57.1''
Additional Information
  • Water Body Name: Candle Lake
  • Lot Features:
  • Lot Size Dimensions: 1.17
Powered by REALTOR.ca
Listing updated: 2026-04-21 09:19:22
List Your Property
Mortgage Calculator
Get Pre-Approved
$
$
%
%
years
Monthly Payment (Est.) $
Similar Properties
Listing Information
  • List Agent Key: 1472395
  • List Office Key: 285683
  • Modification Timestamp: 2026-04-13T18:50:19Z
  • Originating System Name: Saskatchewan REALTORS® Association
  • Status Change Timestamp: 2026-04-13T18:42:59Z
Powered by REALTOR.ca
Listing updated: 2026-04-21 09:19:22
REALTOR®, REALTORS®, and the REALTOR® logo are certification marks that are owned by REALTOR® Canada Inc. and licensed exclusively to The Canadian Real Estate Association (CREA). These certification marks identify real estate professionals who are members of CREA and who must abide by CREA’s By‐Laws, Rules, and the REALTOR® Code. The MLS® trademark and the MLS® logo are owned by CREA and identify the quality of services provided by real estate professionals who are members of CREA.

The information contained on this site is based in whole or in part on information that is provided by members of The Canadian Real Estate Association, who are responsible for its accuracy. CREA reproduces and distributes this information as a service for its members and assumes no responsibility for its accuracy.

Website is operated by a brokerage or salesperson who is a member of The Canadian Real Estate Association.

The listing content on this website is protected by copyright and other laws, and is intended solely for the private, non‐commercial use by individuals. Any other reproduction, distribution or use of the content, in whole or in part, is specifically forbidden. The prohibited uses include commercial use, “screen scraping”, “database scraping”, and any other activity intended to collect, store, reorganize or manipulate data on the pages produced by or displayed on this website.

By continuing to use this website and its services, you agree to these

These forms are provided to ComFree’s Unrepresented Sellers as a part of their Mere Posting ComFree Listing Contract.

I acknowledge I can only access these forms as a ComFree customer under contract.

These forms are provided to ComFree’s Unrepresented Sellers as a part of their Mere Posting ComFree Listing Contract and in partnership with Zubic Law.

I acknowledge I can only access these forms as a ComFree customer under contract.

These forms are provided to ComFree’s Unrepresented Sellers as a part of their Mere Posting ComFree Listing Contract and in partnership with Zubic Law.

I acknowledge I can only access these forms as a ComFree customer under contract.

How It Works

1. Purchase Your Package

2. We Ship Your ‘For Sale’ Sign

3. Book Your VR Tour

4. Complete Listing Input Forms

5. We Make Your Listing Live

6. Get Support 7 Days a Week

7. iSOLD!