Share
$87,000
Nova Scotia,Sydney
For Sale Active
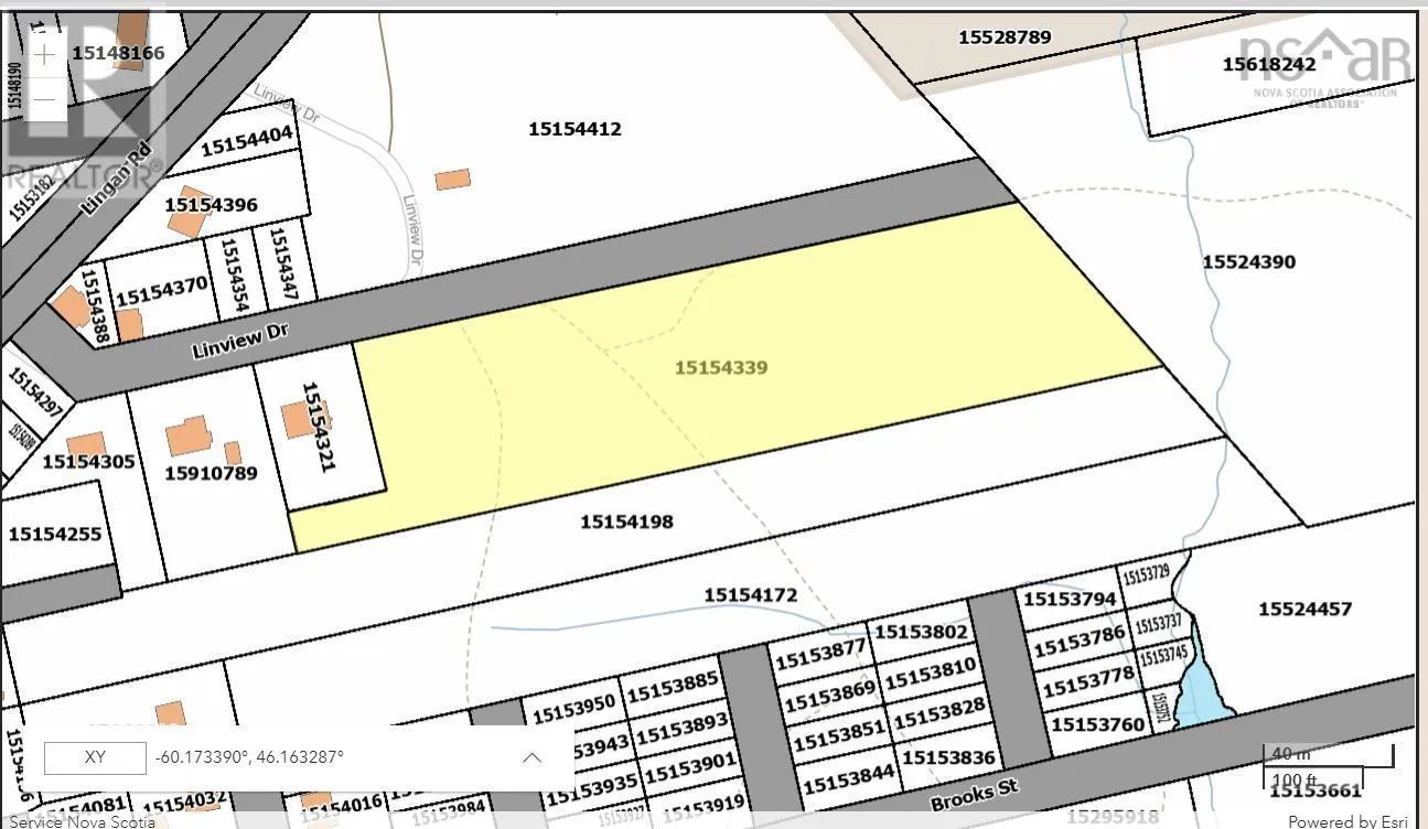
Lot 3A-25 Linview Drive, Sydney, Nova Scotia B1N2R8
Basic Details
Description

This beautiful generously sized lot provides an excellent opportunity for investors, developers, or anyone looking to build in an established and growing community. Conveniently close to major amenities, the property is just minutes from Walmart, Superstore, Canadian Tire, Mayflower Mall, other grocery stores, restaurants, and everyday essentials, making it an ideal location. Situated on a quiet street with

a mix of residential homes, the property offers both privacy and accessibility. This property is zoned UR3 (Urban Residential Medium to High Density), opening the door to a variety of development possibilities including single-family homes, duplexes, and multi-unit residential projects (subject to municipal approval). Whether youre looking to develop, invest, or build your dream home, this property presents a unique opportunity to secure a large parcel in a convenient and evolving area of Sydney. (id:62650)

Read More
Basic Details
  • Property Type: Residential
  • Listing Type: For Sale
  • Listing ID: 202606469
  • Price: $87,000
  • Status: Active
  • Property Sub Type: Vacant Land
  • Office Key: 286229
Features & Appliances
Features
  • Parking: None
  • Sewer: No sewage system
Address Map
  • Location: CA, Nova Scotia, Sydney, B1N2R8
  • Longitude: W61° 49' 21.6''
  • Latitude: N46° 9' 52.1''
Additional Information
  • Water Source:
  • Lot Features:
  • Lot Size Dimensions: 3.2124
Powered by REALTOR.ca
Listing updated: 2026-05-02 23:02:54
List Your Property
Mortgage Calculator
Get Pre-Approved
$
$
%
%
years
Monthly Payment (Est.) $
Listing Information
  • List Agent Key: 2181188
  • List Office Key: 286229
  • Modification Timestamp: 2026-04-09T19:50:52Z
  • Originating System Name: Nova Scotia Association of REALTORS®
  • Status Change Timestamp: 2026-04-09T19:41:40Z
Powered by REALTOR.ca
Listing updated: 2026-05-02 23:02:54
REALTOR®, REALTORS®, and the REALTOR® logo are certification marks that are owned by REALTOR® Canada Inc. and licensed exclusively to The Canadian Real Estate Association (CREA). These certification marks identify real estate professionals who are members of CREA and who must abide by CREA’s By‐Laws, Rules, and the REALTOR® Code. The MLS® trademark and the MLS® logo are owned by CREA and identify the quality of services provided by real estate professionals who are members of CREA.

The information contained on this site is based in whole or in part on information that is provided by members of The Canadian Real Estate Association, who are responsible for its accuracy. CREA reproduces and distributes this information as a service for its members and assumes no responsibility for its accuracy.

Website is operated by a brokerage or salesperson who is a member of The Canadian Real Estate Association.

The listing content on this website is protected by copyright and other laws, and is intended solely for the private, non‐commercial use by individuals. Any other reproduction, distribution or use of the content, in whole or in part, is specifically forbidden. The prohibited uses include commercial use, “screen scraping”, “database scraping”, and any other activity intended to collect, store, reorganize or manipulate data on the pages produced by or displayed on this website.

By continuing to use this website and its services, you agree to these

These forms are provided to ComFree’s Unrepresented Sellers as a part of their Mere Posting ComFree Listing Contract.

I acknowledge I can only access these forms as a ComFree customer under contract.

These forms are provided to ComFree’s Unrepresented Sellers as a part of their Mere Posting ComFree Listing Contract and in partnership with Zubic Law.

I acknowledge I can only access these forms as a ComFree customer under contract.

These forms are provided to ComFree’s Unrepresented Sellers as a part of their Mere Posting ComFree Listing Contract and in partnership with Zubic Law.

I acknowledge I can only access these forms as a ComFree customer under contract.

How It Works

1. Purchase Your Package

2. We Ship Your ‘For Sale’ Sign

3. Book Your VR Tour

4. Complete Listing Input Forms

5. We Make Your Listing Live

6. Get Support 7 Days a Week

7. iSOLD!