Share
$1,699,900
British Columbia,Maple Ridge
For Sale Active
25700 116 AVENUE, Maple Ridge, British Columbia V4R1Z6
  • 4
  • 3
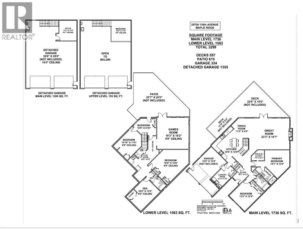
  • 3,299 Sqft
Contact Seller
Basic Details
Description

Spacious family home in the quiet community of Websters Corners. Set on a private SOUTH 1.11-acre lot backing onto Kanaka Creek Regional Park, this property offers space, privacy, and flexibility. Open-concept kitchen and living plan, accented by durable slate flooring and a striking custom stone fireplace. 4 bedrooms and 3 bathrooms with 2 bedrooms up and 2 & den down,

including a main-floor primary with walk-in closet and ensuite. The walk-out basement offers great potential for extended family or a future suite. Large games room, covered patio area. New windows, new hot water tank, and poly-B plumbing replaced add peace of mind. The large detached shop with 240V power, heated office, & mezzanine is perfect for vehicles, hobbies, or storage. A rare acreage opportunity close to town (id:62650)

Read More
Basic Details
  • Property Type: Residential
  • Listing Type: For Sale
  • Listing ID: R3107486
  • Price: $1,699,900
  • Bedrooms: 4
  • Bathrooms: 3
  • Square Footage: 3,299 Sqft
  • Year Built: 1989
  • Status: Active
  • Property Sub Type: Single Family
  • Office Key: 298477
Features & Appliances
Features
  • Heating System: Forced air, Natural gas
  • Basement: Finished, Full, Unknown
  • Parking: Garage, RV
  • Architectural Style: Bungalow
  • Fireplaces Total: 1
Address Map
  • Location: CA, British Columbia, Maple Ridge, V4R1Z6
  • Street: 116
  • Street Number: 25700
  • Street Suffix: Avenue
  • Longitude: W123° 29' 24.8''
  • Latitude: N49° 12' 46.1''
Additional Information
  • Lot Features:
  • Lot Size Dimensions: 1.11
Powered by REALTOR.ca
Listing updated: 2026-04-22 20:08:36
List Your Property
Mortgage Calculator
Get Pre-Approved
$
$
%
%
years
Monthly Payment (Est.) $
Listing Information
  • List Agent Key: 1484186
  • List Office Key: 298477
  • Modification Timestamp: 2026-04-19T20:25:59Z
  • Originating System Name: Greater Vancouver REALTORS®
  • Status Change Timestamp: 2026-04-19T20:17:25Z
Powered by REALTOR.ca
Listing updated: 2026-04-22 20:08:36
REALTOR®, REALTORS®, and the REALTOR® logo are certification marks that are owned by REALTOR® Canada Inc. and licensed exclusively to The Canadian Real Estate Association (CREA). These certification marks identify real estate professionals who are members of CREA and who must abide by CREA’s By‐Laws, Rules, and the REALTOR® Code. The MLS® trademark and the MLS® logo are owned by CREA and identify the quality of services provided by real estate professionals who are members of CREA.

The information contained on this site is based in whole or in part on information that is provided by members of The Canadian Real Estate Association, who are responsible for its accuracy. CREA reproduces and distributes this information as a service for its members and assumes no responsibility for its accuracy.

Website is operated by a brokerage or salesperson who is a member of The Canadian Real Estate Association.

The listing content on this website is protected by copyright and other laws, and is intended solely for the private, non‐commercial use by individuals. Any other reproduction, distribution or use of the content, in whole or in part, is specifically forbidden. The prohibited uses include commercial use, “screen scraping”, “database scraping”, and any other activity intended to collect, store, reorganize or manipulate data on the pages produced by or displayed on this website.

By continuing to use this website and its services, you agree to these

These forms are provided to ComFree’s Unrepresented Sellers as a part of their Mere Posting ComFree Listing Contract.

I acknowledge I can only access these forms as a ComFree customer under contract.

These forms are provided to ComFree’s Unrepresented Sellers as a part of their Mere Posting ComFree Listing Contract and in partnership with Zubic Law.

I acknowledge I can only access these forms as a ComFree customer under contract.

These forms are provided to ComFree’s Unrepresented Sellers as a part of their Mere Posting ComFree Listing Contract and in partnership with Zubic Law.

I acknowledge I can only access these forms as a ComFree customer under contract.

How It Works

1. Purchase Your Package

2. We Ship Your ‘For Sale’ Sign

3. Book Your VR Tour

4. Complete Listing Input Forms

5. We Make Your Listing Live

6. Get Support 7 Days a Week

7. iSOLD!