Share
$999,900
British Columbia,Bowser
For Sale Active
LT 1 Henson Rd, Bowser, British Columbia V0R1G0
Contact Seller
Basic Details
Description

Welcome to your waterfront dream! Discover a rare and hidden gem near Qualicum Beach—an exceptional waterfront 0.37 acre property offering over 125 feet of pristine walk-on shoreline. Cleared and ready for construction, this expansive lot provides the perfect canvas for your dream home. Tucked away on a quiet, no-through street, the location ensures unparalleled privacy and serenity, making it an

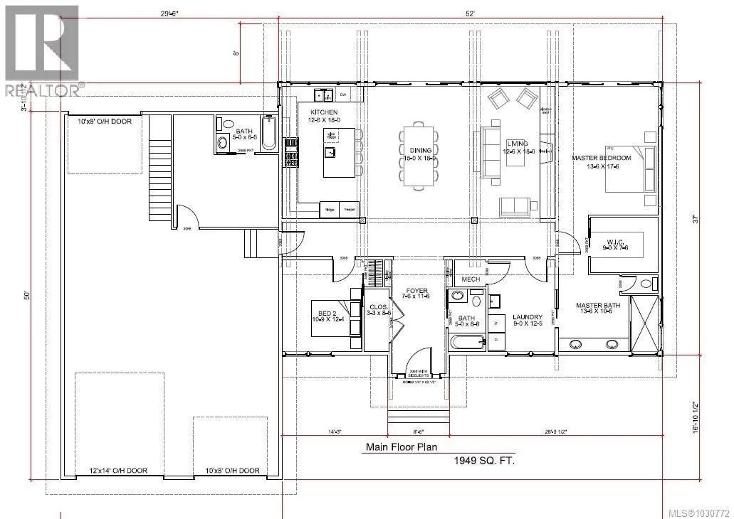
ideal retreat from the hustle and bustle of daily life. With sweeping, unobstructed views of the breathtaking Strait of Georgia and distant mainland skyline, you’ll wake up to stunning sunrises and end your days with mesmerizing ocean vistas. The gently sloping land offers easy access to the beach where you can enjoy peaceful walks, watching wildlife or launch a kayak. Conveniently located near trails, marinas and fine dining. Central island features key attractions such as the white sands of Tribune Bay Beach. A perfect blend of tranquility and natural beauty, it’s an exceptional opportunity to build in an idyllic coastal setting. Featuring 180 + degree views of Texada, Lasqueti, Hornby and Denman Islands as well as the Mainland Mountain Range. True walk on waterfront properties like this are very hard to come by a must see. Don’t miss the chance to own a slice of paradise in one of Vancouver Island’s prime walk on waterfront locations. The zoning will allow for a secondary suite for extended family or a mortgage helper. Architectural plans available upon request. All sizes are approximate. (id:62650)

Read More
Basic Details
  • Property Type: Residential
  • Listing Type: For Sale
  • Listing ID: 1030772
  • Price: $999,900
  • View: Mountain view,Ocean view
  • Status: Active
  • Property Sub Type: Vacant Land
  • Office Key: 152932
Features & Appliances
Features
  • Waterfront Features: Waterfront on ocean
Address Map
  • Location: CA, British Columbia, Bowser, V0R1G0
  • Street: Henson
  • Street Number: LT 1
  • Street Suffix: Road
  • Longitude: W125° 21' 11.5''
  • Latitude: N49° 25' 25.9''
  • Zoning: Residential
Additional Information
  • Lot Features:
  • Lot Size Dimensions: 16117
Financial
  • Tax Annual Amount: 3608
Powered by REALTOR.ca
Listing updated: 2026-05-07 08:43:01
List Your Property
Mortgage Calculator
Get Pre-Approved
$
$
%
%
years
Monthly Payment (Est.) $
Listing Information
  • List Agent Key: 2015241
  • List Office Key: 152932
  • Modification Timestamp: 2026-04-07T19:40:46Z
  • Originating System Name: Vancouver Island Real Estate Board
  • Status Change Timestamp: 2026-04-07T19:33:01Z
Powered by REALTOR.ca
Listing updated: 2026-05-07 08:43:01
REALTOR®, REALTORS®, and the REALTOR® logo are certification marks that are owned by REALTOR® Canada Inc. and licensed exclusively to The Canadian Real Estate Association (CREA). These certification marks identify real estate professionals who are members of CREA and who must abide by CREA’s By‐Laws, Rules, and the REALTOR® Code. The MLS® trademark and the MLS® logo are owned by CREA and identify the quality of services provided by real estate professionals who are members of CREA.

The information contained on this site is based in whole or in part on information that is provided by members of The Canadian Real Estate Association, who are responsible for its accuracy. CREA reproduces and distributes this information as a service for its members and assumes no responsibility for its accuracy.

Website is operated by a brokerage or salesperson who is a member of The Canadian Real Estate Association.

The listing content on this website is protected by copyright and other laws, and is intended solely for the private, non‐commercial use by individuals. Any other reproduction, distribution or use of the content, in whole or in part, is specifically forbidden. The prohibited uses include commercial use, “screen scraping”, “database scraping”, and any other activity intended to collect, store, reorganize or manipulate data on the pages produced by or displayed on this website.

By continuing to use this website and its services, you agree to these

These forms are provided to ComFree’s Unrepresented Sellers as a part of their Mere Posting ComFree Listing Contract.

I acknowledge I can only access these forms as a ComFree customer under contract.

These forms are provided to ComFree’s Unrepresented Sellers as a part of their Mere Posting ComFree Listing Contract and in partnership with Zubic Law.

I acknowledge I can only access these forms as a ComFree customer under contract.

These forms are provided to ComFree’s Unrepresented Sellers as a part of their Mere Posting ComFree Listing Contract and in partnership with Zubic Law.

I acknowledge I can only access these forms as a ComFree customer under contract.

How It Works

1. Purchase Your Package

2. We Ship Your ‘For Sale’ Sign

3. Book Your VR Tour

4. Complete Listing Input Forms

5. We Make Your Listing Live

6. Get Support 7 Days a Week

7. iSOLD!