Share
$549,000
British Columbia,Grand Forks
For Sale Active
257 MARKET Avenue, Grand Forks, British Columbia V0H1H0
  • 3,750 Sqft
Contact Seller
Basic Details
Description

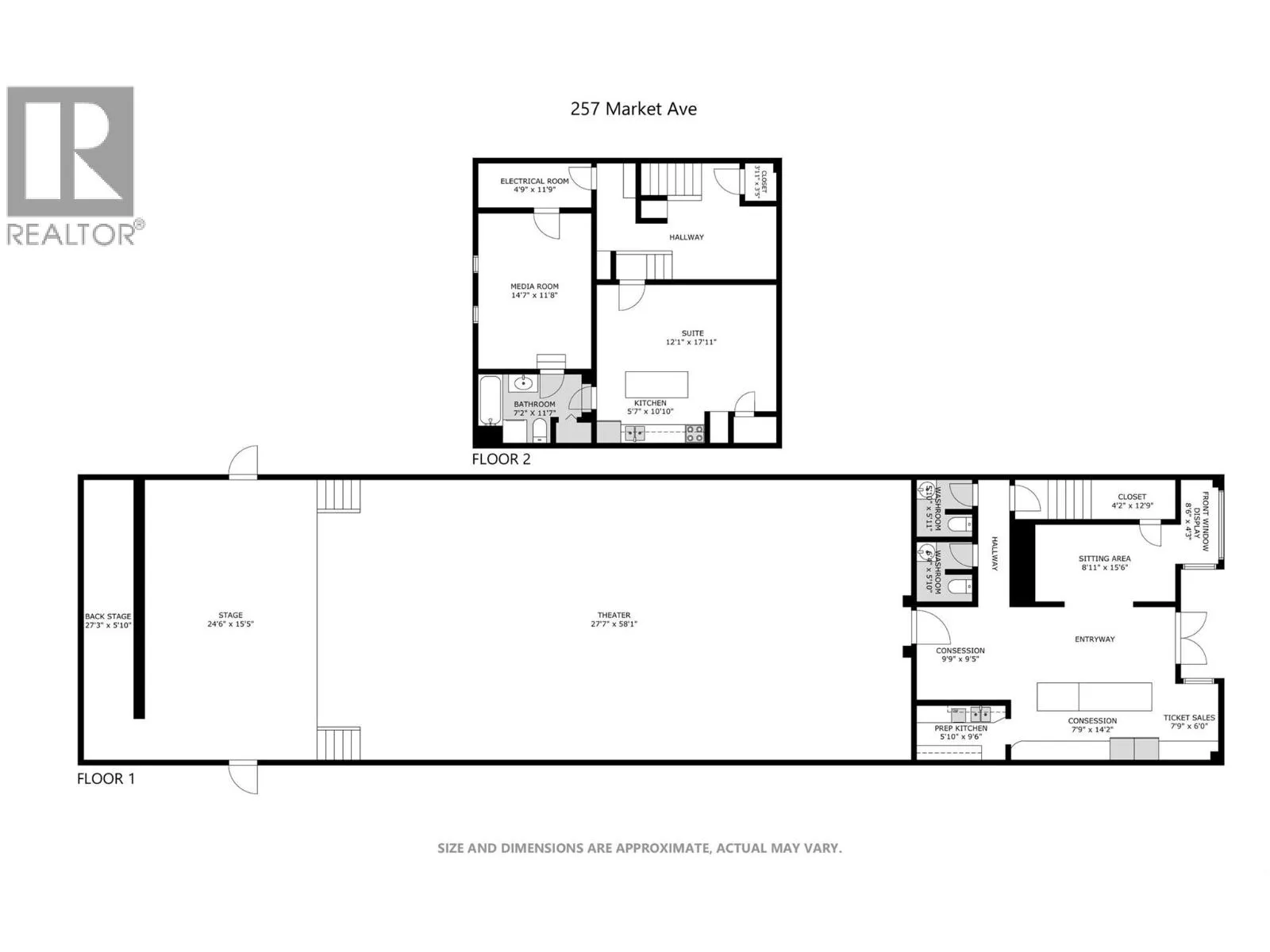
Centrally located in downtown Grand Forks along Market Avenue, this property offers a prime value-add opportunity with strong visibility, walkability, and proximity to established local businesses. The 3,750 sq. ft. building features ~20’ ceilings and an open interior layout, providing excellent flexibility for a range of commercial or mixed-use concepts. Zoned Core Commercial (CC), the property permits retail, office, hospitality,

entertainment, and residential uses, including up to 100% residential on the second floor and up to 50% on the main level. This allows for a variety of configurations including live-work, mixed-use, or full repositioning. Retain the character of the existing movie theatre or reimagine the space into a new concept such as a cafe;, restaurant, wellness studio, or boutique commercial venue! The property includes an upper-level suite with kitchen, bathroom, and laundry, offering immediate usability or holding income. Recent upgrades include a newer HVAC system (2019). An ideal opportunity for investors or owner-users seeking to reposition a well-located asset with significant upside through redevelopment or adaptive reuse. (id:62650)

Read More
Basic Details
  • Property Type: Other
  • Listing Type: For Sale
  • Listing ID: 10382143
  • Price: $549,000
  • Square Footage: 3,750 Sqft
  • Status: Active
  • Property Sub Type: Other
  • Roof:
  • Office Key: 94560
Features & Appliances
Features
  • Heating System: Forced air
  • Exterior Features: Brick
  • Sewer: Municipal sewage system
Address Map
  • Location: CA, British Columbia, Grand Forks, V0H1H0
  • Street: MARKET
  • Street Number: 257
  • Street Suffix: Avenue
  • Longitude: W119° 33' 44.5''
  • Latitude: N49° 1' 57.3''
Additional Information
  • Water Source:
Powered by REALTOR.ca
Listing updated: 2026-04-22 00:50:52
List Your Property
Mortgage Calculator
Get Pre-Approved
$
$
%
%
years
Monthly Payment (Est.) $
Listing Information
  • List Agent Key: 2099458
  • List Office Key: 94560
  • Modification Timestamp: 2026-04-07T22:56:15Z
  • Originating System Name: Association of Interior REALTORS®
  • Status Change Timestamp: 2026-04-07T22:48:46Z
Powered by REALTOR.ca
Listing updated: 2026-04-22 00:50:52
REALTOR®, REALTORS®, and the REALTOR® logo are certification marks that are owned by REALTOR® Canada Inc. and licensed exclusively to The Canadian Real Estate Association (CREA). These certification marks identify real estate professionals who are members of CREA and who must abide by CREA’s By‐Laws, Rules, and the REALTOR® Code. The MLS® trademark and the MLS® logo are owned by CREA and identify the quality of services provided by real estate professionals who are members of CREA.

The information contained on this site is based in whole or in part on information that is provided by members of The Canadian Real Estate Association, who are responsible for its accuracy. CREA reproduces and distributes this information as a service for its members and assumes no responsibility for its accuracy.

Website is operated by a brokerage or salesperson who is a member of The Canadian Real Estate Association.

The listing content on this website is protected by copyright and other laws, and is intended solely for the private, non‐commercial use by individuals. Any other reproduction, distribution or use of the content, in whole or in part, is specifically forbidden. The prohibited uses include commercial use, “screen scraping”, “database scraping”, and any other activity intended to collect, store, reorganize or manipulate data on the pages produced by or displayed on this website.

By continuing to use this website and its services, you agree to these

These forms are provided to ComFree’s Unrepresented Sellers as a part of their Mere Posting ComFree Listing Contract.

I acknowledge I can only access these forms as a ComFree customer under contract.

These forms are provided to ComFree’s Unrepresented Sellers as a part of their Mere Posting ComFree Listing Contract and in partnership with Zubic Law.

I acknowledge I can only access these forms as a ComFree customer under contract.

These forms are provided to ComFree’s Unrepresented Sellers as a part of their Mere Posting ComFree Listing Contract and in partnership with Zubic Law.

I acknowledge I can only access these forms as a ComFree customer under contract.

How It Works

1. Purchase Your Package

2. We Ship Your ‘For Sale’ Sign

3. Book Your VR Tour

4. Complete Listing Input Forms

5. We Make Your Listing Live

6. Get Support 7 Days a Week

7. iSOLD!