Share
$1,217,150
Ontario,London South (South V)
For Sale Active
LOT 38 FALLINGBROOK ROAD, London South (South V), Ontario N6P1H5
  • 4
  • 4
  • 2500 - 3000Square Feet
Next Open House
  • May 9 13:00 - 15:00
  • May 23 13:00 - 15:00
Basic Details
Description

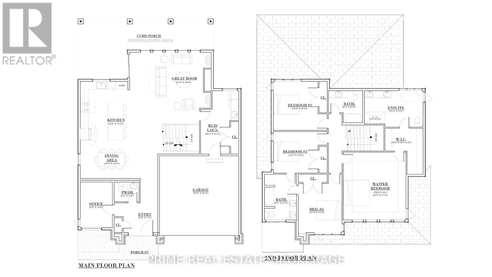
What if you could walk through your home before it’s built, and change anything you want? That’s how Halcyon Homes works.At 4232 Fallingbrook Road in The Heathwoods, Lambeth, this to-be-built 4-bedroom, 3.5-bathroom custom home sits on one of the community’s most coveted lots: a premium 50′ x 152′ parcel backing onto mature trees. Privacy like this doesn’t come along often.Every

Halcyon home starts with a model concept, in this case the Arvada at approximately 2,800 sq ft, but nothing is locked in. You choose the layout, the finishes, and the flow of every room. Their design-build process is unlike anything you’ve experienced: transparent pricing, real-time plan modifications in their design studio, and a dedicated team that walks you through every decision without pressure or hidden costs.Pricing shown reflects the Arvada model. These are starting concepts to give you a real sense of what’s possible. Reach out for a no-pressure discovery call and you’ll learn more about new home construction than you thought possible.The Heathwoods puts you minutes from Lambeth Village’s cafés and local shops, with quick access to Hwy 401/402 when you need it. Walk through The Myra Model Home at 4100 Fallingbrook Road to experience Halcyon’s quality firsthand. Pricing includes HST rebate. A lot premium of $60,000 plus HST , not included in the price. Ask us about the $100,000 builder incentive. Only a few lots remain. (id:62650)

Read More
Basic Details
  • Property Type: Residential
  • Listing Type: For Sale
  • Listing ID: X12972278
  • Price: $1,217,150
  • Bedrooms: 4
  • Bathrooms: 4
  • Half Bathrooms: 1
  • Square Footage: 2500 - 3000 Sqft
  • Status: Active
  • Property Sub Type: Single Family
  • Office Key: 276302
Features & Appliances
Features
  • Heating System: Electric, Forced air
  • Cooling System: Central air conditioning, Air exchanger
  • Basement: Unfinished, N/A
  • Parking: Garage, Attached Garage
  • Exterior Features: Brick, Aluminum siding
  • Sewer: Sanitary sewer
  • Utilities: Electricity, Sewer, Cable
  • Fireplaces Total: 1
Address Map
  • Location: CA, Ontario, London South (South V), N6P1H5
  • Street: FALLINGBROOK
  • Street Number: LOT 38
  • Street Suffix: Road
  • Longitude: W82° 41' 56.1''
  • Latitude: N42° 54' 58.7''
Additional Information
  • Water Source:
  • Foundation Details:
  • Lot Features:
  • Lot Size Dimensions: 50 x 152 FT
  • Stories: 2.0
Powered by REALTOR.ca
Listing updated: 2026-05-07 06:45:22
List Your Property
Mortgage Calculator
Get Pre-Approved
$
$
%
%
years
Monthly Payment (Est.) $
Listing Information
  • List Agent Key: 1943784
  • List Office Key: 276302
  • Modification Timestamp: 2026-05-04T22:00:34Z
  • Originating System Name: London and St. Thomas Association of REALTORS®
  • Status Change Timestamp: 2026-05-04T21:52:02Z
Powered by REALTOR.ca
Listing updated: 2026-05-07 06:45:22
REALTOR®, REALTORS®, and the REALTOR® logo are certification marks that are owned by REALTOR® Canada Inc. and licensed exclusively to The Canadian Real Estate Association (CREA). These certification marks identify real estate professionals who are members of CREA and who must abide by CREA’s By‐Laws, Rules, and the REALTOR® Code. The MLS® trademark and the MLS® logo are owned by CREA and identify the quality of services provided by real estate professionals who are members of CREA.

The information contained on this site is based in whole or in part on information that is provided by members of The Canadian Real Estate Association, who are responsible for its accuracy. CREA reproduces and distributes this information as a service for its members and assumes no responsibility for its accuracy.

Website is operated by a brokerage or salesperson who is a member of The Canadian Real Estate Association.

The listing content on this website is protected by copyright and other laws, and is intended solely for the private, non‐commercial use by individuals. Any other reproduction, distribution or use of the content, in whole or in part, is specifically forbidden. The prohibited uses include commercial use, “screen scraping”, “database scraping”, and any other activity intended to collect, store, reorganize or manipulate data on the pages produced by or displayed on this website.

By continuing to use this website and its services, you agree to these

These forms are provided to ComFree’s Unrepresented Sellers as a part of their Mere Posting ComFree Listing Contract.

I acknowledge I can only access these forms as a ComFree customer under contract.

These forms are provided to ComFree’s Unrepresented Sellers as a part of their Mere Posting ComFree Listing Contract and in partnership with Zubic Law.

I acknowledge I can only access these forms as a ComFree customer under contract.

These forms are provided to ComFree’s Unrepresented Sellers as a part of their Mere Posting ComFree Listing Contract and in partnership with Zubic Law.

I acknowledge I can only access these forms as a ComFree customer under contract.

How It Works

1. Purchase Your Package

2. We Ship Your ‘For Sale’ Sign

3. Book Your VR Tour

4. Complete Listing Input Forms

5. We Make Your Listing Live

6. Get Support 7 Days a Week

7. iSOLD!