Share
$2,280,000
Ontario,Ottawa
For Sale Active
234, 236 WOODROFFE AVENUE, Ottawa, Ontario K2A3V4
  • 10
  • 8
  • 3500 - 5000Square Feet
Contact Seller
Basic Details
Description

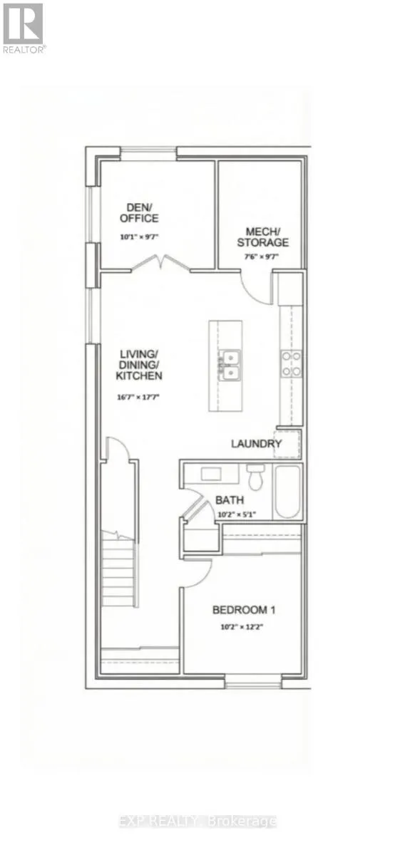
Rare 2024 Purpose-Built Real Estate Portfolio – 5.3% Cap Rate. Maximize your investment with this turnkey, low-maintenance asset in the heart of Carlingwood. Built in 2024, this modern complex consists of two titled semi-detached duplexes (4 units total) specifically designed for high-density cash flow and long-term appreciation. Two expansive 2,000 sq. ft. 4-bed/3-bath homes + two bright 1-bed + den

lower-level suites. All units separately metered-tenants pay all utilities. Premium Amenities: Modern designer finishes, 6 appliances including in-suite laundry in every unit, and ample on-site parking. Prime transit-oriented location, site steps from Carlingwood Mall, top-rated schools, and future LRT. This 2024-built portfolio offers a “set and forget” opportunity with zero immediate capital expenditure required. Whether you are expanding a professional real estate portfolio or seeking a sophisticated multi-generational setup, this property delivers unmatched versatility and scale. Contact today for the full financial package and to schedule your private tour. 24 hour notice required for showings to notify tenants, floor plans attached are for one side, the other side is a mirror layout. Some photos are virtually staged. (id:62650)

Read More
Basic Details
  • Property Type: Residential Income
  • Listing Type: For Sale
  • Listing ID: X12978610
  • Price: $2,280,000
  • Bedrooms: 10
  • Bathrooms: 8
  • Half Bathrooms: 2
  • Square Footage: 3500 - 5000 Sqft
  • Status: Active
  • Property Attached Yn: 1
  • Property Sub Type: Multi-family
  • Office Key: 280312
Features & Appliances
Features
  • Heating System: Heat Pump, Electric, Forced air, Natural gas, Not known
  • Cooling System: Central air conditioning, Air exchanger
  • Basement: N/A, Apartment in basement
  • Parking: No Garage
  • Exterior Features: Brick, Aluminum siding
  • Sewer: Sanitary sewer
Address Map
  • Location: CA, Ontario, Ottawa, K2A3V4
  • Street: Woodroffe
  • Street Number: 234, 236
  • Street Suffix: Avenue
  • Longitude: W76° 13' 36.2''
  • Latitude: N45° 22' 27''
Additional Information
  • Water Source:
  • Community Features:
  • Foundation Details:
  • Lot Features:
  • Lot Size Dimensions: 70 x 86.8 FT
Financial
  • Tax Annual Amount: 6200
Powered by REALTOR.ca
Listing updated: 2026-05-13 23:00:19
List Your Property
Mortgage Calculator
Get Pre-Approved
$
$
%
%
years
Monthly Payment (Est.) $
Listing Information
  • List Agent Key: 1595483
  • List Office Key: 280312
  • Modification Timestamp: 2026-04-24T05:45:22Z
  • Originating System Name: Ottawa Real Estate Board
  • Status Change Timestamp: 2026-04-24T05:37:46Z
Powered by REALTOR.ca
Listing updated: 2026-05-13 23:00:19
REALTOR®, REALTORS®, and the REALTOR® logo are certification marks that are owned by REALTOR® Canada Inc. and licensed exclusively to The Canadian Real Estate Association (CREA). These certification marks identify real estate professionals who are members of CREA and who must abide by CREA’s By‐Laws, Rules, and the REALTOR® Code. The MLS® trademark and the MLS® logo are owned by CREA and identify the quality of services provided by real estate professionals who are members of CREA.

The information contained on this site is based in whole or in part on information that is provided by members of The Canadian Real Estate Association, who are responsible for its accuracy. CREA reproduces and distributes this information as a service for its members and assumes no responsibility for its accuracy.

Website is operated by a brokerage or salesperson who is a member of The Canadian Real Estate Association.

The listing content on this website is protected by copyright and other laws, and is intended solely for the private, non‐commercial use by individuals. Any other reproduction, distribution or use of the content, in whole or in part, is specifically forbidden. The prohibited uses include commercial use, “screen scraping”, “database scraping”, and any other activity intended to collect, store, reorganize or manipulate data on the pages produced by or displayed on this website.

By continuing to use this website and its services, you agree to these

These forms are provided to ComFree’s Unrepresented Sellers as a part of their Mere Posting ComFree Listing Contract.

I acknowledge I can only access these forms as a ComFree customer under contract.

These forms are provided to ComFree’s Unrepresented Sellers as a part of their Mere Posting ComFree Listing Contract and in partnership with Zubic Law.

I acknowledge I can only access these forms as a ComFree customer under contract.

These forms are provided to ComFree’s Unrepresented Sellers as a part of their Mere Posting ComFree Listing Contract and in partnership with Zubic Law.

I acknowledge I can only access these forms as a ComFree customer under contract.

How It Works

1. Purchase Your Package

2. We Ship Your ‘For Sale’ Sign

3. Book Your VR Tour

4. Complete Listing Input Forms

5. We Make Your Listing Live

6. Get Support 7 Days a Week

7. iSOLD!