Share
$679,000
Ontario,Zorra (Thamesford)
For Sale Active
196 WASHINGTON STREET, Zorra (Thamesford), Ontario N0M2M0
  • 2
  • 2
  • 1100 - 1500Square Feet
Basic Details
Description

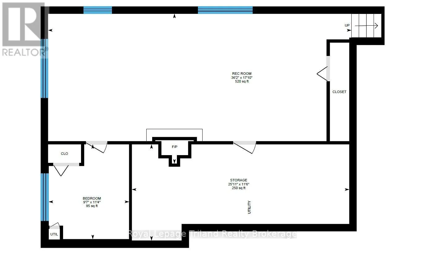
Big Lot, Beautiful Home, Big Opportunity! Set on a standout 99×165 ft treed lot (approx .37 acres) in a quiet, established north Thamesford pocket, this brick ranch blends timeless character with everyday comfort – and offers a lot & location that are becoming increasingly hard to find – a home that balances character & comfort – well-kept and ready for

what’s ahead. A double garage with inside entry & a double drive for 6 vehicles adds everyday ease, while a short walk connects you to the school, ballpark, public pool, Thames River trails & dog park. Easy access to London, Woodstock, Ingersoll & 401 adds to the appeal. Inside, a welcoming entry opens to a bright living room with pristine hardwood through most of the main floor. Pocket-style French doors add charm & flexibility, an ideal balance of traditional design & modern function! The kitchen is a highlight-warm, well-crafted & thoughtfully updated with rich cherry cabinetry, granite counters & a gas range that will impress any home cook. Open to the dining area, it’s a natural gathering place for both daily living & entertaining. A spacious laundry/mudroom offers garage & backyard access, perfect for busy households and/or pets. The nearby 3-pce bath is conveniently positioned. At the west end, a separate bedroom wing sits behind a French door for added quiet. Two bedrooms sit on either side of a central 4-pce bath for a comfortable layout. The finished lower adds a fabulous second living area with a huge 36 ft family room, gas fireplace, oversized windows & new carpet (2025). A separate office offers potential for a 3rd bedroom plus there’s lots of storage. Outside, the lot truly sets this property apart – mature trees, room to roam – it opens up endless potential for a future shop, pool, or additional residential unit (buyer to verify). Clean, efficient hot water radiant heat, c/air, water softener & fibre internet! Space to settle, stretch, and see what’s next – this is Thamesford living with room to grow! (id:62650)

Read More
Basic Details
  • Property Type: Residential
  • Listing Type: For Sale
  • Listing ID: X12980088
  • Price: $679,000
  • Bedrooms: 2
  • Bathrooms: 2
  • Square Footage: 1100 - 1500 Sqft
  • Status: Active
  • Property Sub Type: Single Family
  • Office Key: 104559
Features & Appliances
Features
  • Cooling System: Central air conditioning
  • Basement: Full, Partially finished
  • Fence: Partially fenced
  • Fireplace: Insert
  • Parking: Garage, Attached Garage, Inside Entry
  • Architectural Style: Bungalow
  • Exterior Features: Brick
  • Flooring: Hardwood
  • Sewer: Sanitary sewer
  • Utilities: Electricity, Sewer, Cable
  • Fireplaces Total: 1
Address Map
  • Location: CA, Ontario, Zorra (Thamesford), N0M2M0
  • Street: Washington
  • Street Number: 196
  • Street Suffix: Street
  • Longitude: W82° 59' 51.5''
  • Latitude: N43° 3' 34.1''
Additional Information
  • Water Source:
  • Community Features:
  • Foundation Details:
  • Lot Features:
  • Lot Size Dimensions: 99 x 165 FT
  • Stories: 1.0
Financial
  • Tax Annual Amount: 3551
Powered by REALTOR.ca
Listing updated: 2026-05-04 04:47:37
List Your Property
Mortgage Calculator
Get Pre-Approved
$
$
%
%
years
Monthly Payment (Est.) $
Listing Information
  • List Agent Key: 1397107
  • List Office Key: 104559
  • Modification Timestamp: 2026-04-19T11:40:07Z
  • Originating System Name: Woodstock Ingersoll Tillsonburg and Area Association of REALTORS® (WITAAR)
  • Status Change Timestamp: 2026-04-19T11:35:14Z
Powered by REALTOR.ca
Listing updated: 2026-05-04 04:47:38
REALTOR®, REALTORS®, and the REALTOR® logo are certification marks that are owned by REALTOR® Canada Inc. and licensed exclusively to The Canadian Real Estate Association (CREA). These certification marks identify real estate professionals who are members of CREA and who must abide by CREA’s By‐Laws, Rules, and the REALTOR® Code. The MLS® trademark and the MLS® logo are owned by CREA and identify the quality of services provided by real estate professionals who are members of CREA.

The information contained on this site is based in whole or in part on information that is provided by members of The Canadian Real Estate Association, who are responsible for its accuracy. CREA reproduces and distributes this information as a service for its members and assumes no responsibility for its accuracy.

Website is operated by a brokerage or salesperson who is a member of The Canadian Real Estate Association.

The listing content on this website is protected by copyright and other laws, and is intended solely for the private, non‐commercial use by individuals. Any other reproduction, distribution or use of the content, in whole or in part, is specifically forbidden. The prohibited uses include commercial use, “screen scraping”, “database scraping”, and any other activity intended to collect, store, reorganize or manipulate data on the pages produced by or displayed on this website.

By continuing to use this website and its services, you agree to these

These forms are provided to ComFree’s Unrepresented Sellers as a part of their Mere Posting ComFree Listing Contract.

I acknowledge I can only access these forms as a ComFree customer under contract.

These forms are provided to ComFree’s Unrepresented Sellers as a part of their Mere Posting ComFree Listing Contract and in partnership with Zubic Law.

I acknowledge I can only access these forms as a ComFree customer under contract.

These forms are provided to ComFree’s Unrepresented Sellers as a part of their Mere Posting ComFree Listing Contract and in partnership with Zubic Law.

I acknowledge I can only access these forms as a ComFree customer under contract.

How It Works

1. Purchase Your Package

2. We Ship Your ‘For Sale’ Sign

3. Book Your VR Tour

4. Complete Listing Input Forms

5. We Make Your Listing Live

6. Get Support 7 Days a Week

7. iSOLD!