Share
$1,150,000
Ontario,LaSalle
For Sale Active
LOT 2 TENTH STREET, LaSalle, Ontario N8N1M2
  • 6
  • 4
  • 3,446 Sqft
Basic Details
Description

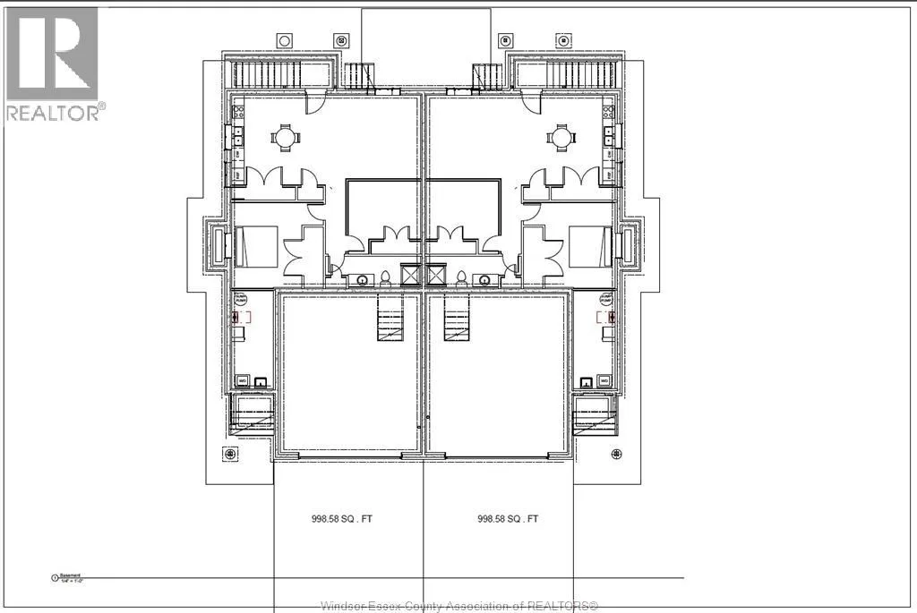
Multi-Generational Living | Net Zero Ready Solar Optional | Income Potential. SAVE UP TO $130,000 ON YOUR NEW HOME! TO BE BUILT HOME Experience modern luxury in the heart of LaSalle with approx. 3,500 sq.ft. Living space this home is designed for today’s evolving families. Built with premium ICF construction, this property delivers superior soundproofing, durability, exceptional energy efficiency—offering

lower utility costs for long-term value. Featuring 6 bedrooms, 4 full baths, 3 kitchens,3 laundry, 2 car garage. This home is perfectly configured for multi-family living with privacy. The innovative 3-in-1 layout includes a main floor 1-bed suite, spacious 3-bed upper level, and a fully self-contained legal 2-bedroom ADU w/separate entrance—ideal for rental income or extended family. Bright open spaces, high ceilings, double car insulated garage. PLEASE NOTE :** CURRENT PRICING NOW REFLECTS THE ONTARIO GOVERNMENTS FULL ** HST REBATE **Contact Listing Agent directly for more information and promotions today!! (id:62650)

Read More
Basic Details
  • Property Type: Residential
  • Listing Type: For Sale
  • Listing ID: 26007729
  • Price: $1,150,000
  • Bedrooms: 6
  • Bathrooms: 4
  • Square Footage: 3,446 Sqft
  • Status: Active
  • Property Attached Yn: 1
  • Property Sub Type: Single Family
  • Office Key: 295736
Features & Appliances
Features
  • Heating System: Heat Pump, Electric, Heat Recovery Ventilation (HRV), Solar
  • Cooling System: Heat Pump, Central air conditioning
  • Parking: Garage, Attached Garage, Heated Garage
  • Exterior Features: Brick, Aluminum/Vinyl
  • Flooring: Cushion/Lino/Vinyl
Address Map
  • Location: CA, Ontario, LaSalle, N8N1M2
  • Street: TENTH
  • Street Number: LOT 2
  • Street Suffix: Street
  • Longitude: W74° 22' 14.6''
  • Latitude: N45° 25' 57.1''
Additional Information
  • Foundation Details:
  • Lot Features:
  • Lot Size Dimensions: 37.25 X 109.28 FT
  • Stories: 2.0
Powered by REALTOR.ca
Listing updated: 2026-05-09 12:45:17
List Your Property
Mortgage Calculator
Get Pre-Approved
$
$
%
%
years
Monthly Payment (Est.) $
Listing Information
  • List Agent Key: 2015854
  • List Office Key: 295736
  • Modification Timestamp: 2026-05-01T19:15:18Z
  • Originating System Name: Windsor-Essex County Association of REALTORS®
  • Status Change Timestamp: 2026-05-01T19:08:32Z
Powered by REALTOR.ca
Listing updated: 2026-05-09 12:45:18
REALTOR®, REALTORS®, and the REALTOR® logo are certification marks that are owned by REALTOR® Canada Inc. and licensed exclusively to The Canadian Real Estate Association (CREA). These certification marks identify real estate professionals who are members of CREA and who must abide by CREA’s By‐Laws, Rules, and the REALTOR® Code. The MLS® trademark and the MLS® logo are owned by CREA and identify the quality of services provided by real estate professionals who are members of CREA.

The information contained on this site is based in whole or in part on information that is provided by members of The Canadian Real Estate Association, who are responsible for its accuracy. CREA reproduces and distributes this information as a service for its members and assumes no responsibility for its accuracy.

Website is operated by a brokerage or salesperson who is a member of The Canadian Real Estate Association.

The listing content on this website is protected by copyright and other laws, and is intended solely for the private, non‐commercial use by individuals. Any other reproduction, distribution or use of the content, in whole or in part, is specifically forbidden. The prohibited uses include commercial use, “screen scraping”, “database scraping”, and any other activity intended to collect, store, reorganize or manipulate data on the pages produced by or displayed on this website.

By continuing to use this website and its services, you agree to these

These forms are provided to ComFree’s Unrepresented Sellers as a part of their Mere Posting ComFree Listing Contract.

I acknowledge I can only access these forms as a ComFree customer under contract.

These forms are provided to ComFree’s Unrepresented Sellers as a part of their Mere Posting ComFree Listing Contract and in partnership with Zubic Law.

I acknowledge I can only access these forms as a ComFree customer under contract.

These forms are provided to ComFree’s Unrepresented Sellers as a part of their Mere Posting ComFree Listing Contract and in partnership with Zubic Law.

I acknowledge I can only access these forms as a ComFree customer under contract.

How It Works

1. Purchase Your Package

2. We Ship Your ‘For Sale’ Sign

3. Book Your VR Tour

4. Complete Listing Input Forms

5. We Make Your Listing Live

6. Get Support 7 Days a Week

7. iSOLD!