Share
$800,000
Ontario,Rideau Lakes
For Sale Active
16 R3 ROAD, Rideau Lakes, Ontario K0G1L0
  • 3
  • 1
  • 700 - 1100Square Feet
Basic Details
Description

Start making unforgettable memories in 2026 at this charming, fully furnished cottage on the Rideau River. Picture long summer days spent swimming in the clear water front, boating, and fishing, followed by evenings around the fire watching the spectacular sunsets. Enjoy a plethora of activities and create countless memories. Conveniently located just a short drive to Smiths Falls and Perth,

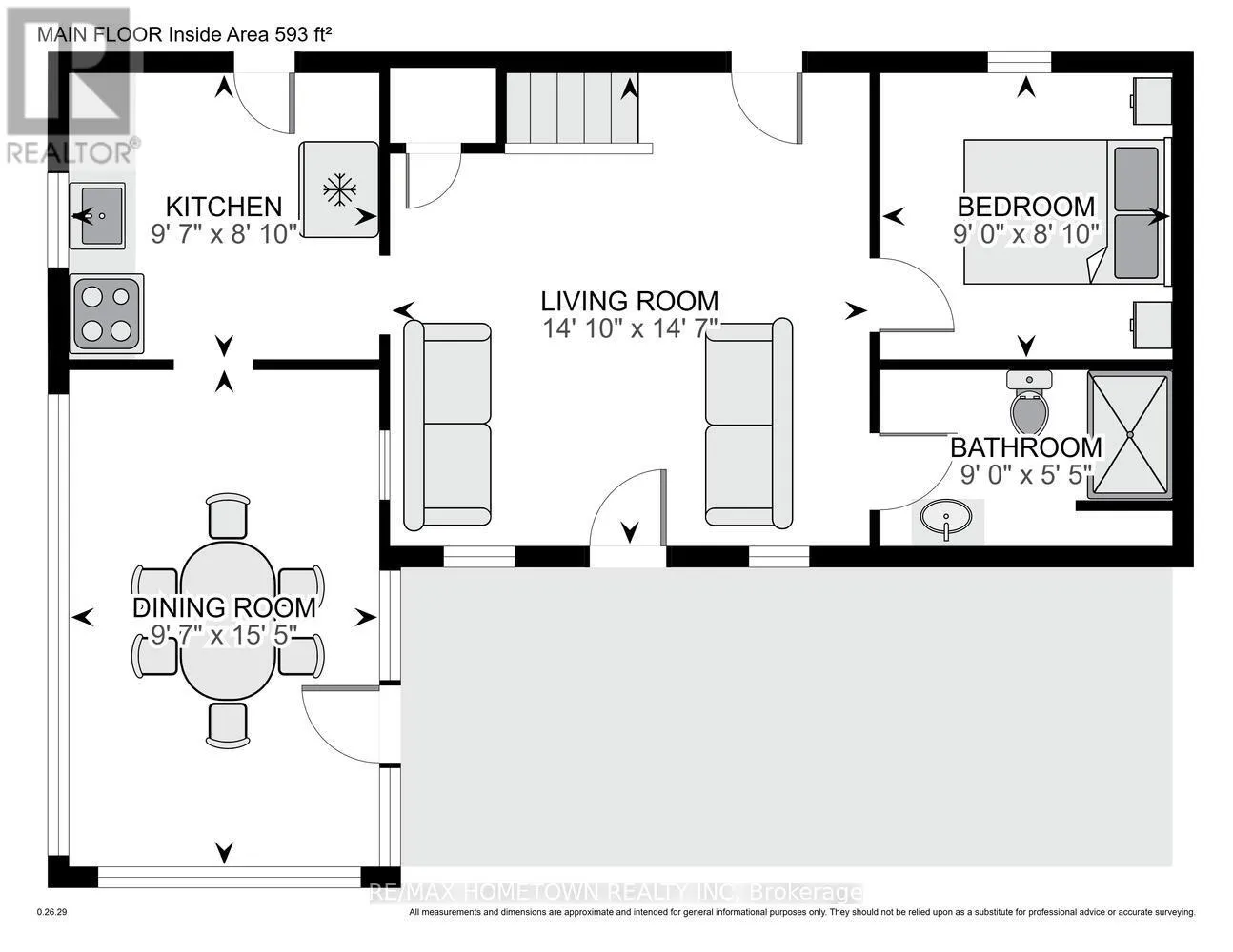
this property also makes it easy to plan day trips to Ottawa or Kingston. This cozy and inviting cottage features 3 bedrooms and a renovated 3-piece bathroom. The main level offers a comfortable bedroom, the updated bathroom, and a welcoming living room. Just beyond the living room is a functional kitchen, with an adjoining space currently used as a dining and sitting area, perfect for family dinners, board games, or card nights. For those who love spending time outdoors, the covered veranda is the ideal spot to enjoy your morning coffee or relax with afternoon drinks and dinner. The fire pit area is ready for roasting marshmallows and making s’mores with the kids. With excellent internet service, this cottage is also a fantastic option for working remotely while enjoying beautiful waterfront views all summer long. Enjoy it when you can, and rent it when you can’t. This property offers a wonderful opportunity to earn income during weeks or weekends you are away. Stop procrastinating and make summer 2026 the start of something special. (id:62650)

Read More
Basic Details
  • Property Type: Residential
  • Listing Type: For Sale
  • Listing ID: X12981454
  • Price: $800,000
  • Bedrooms: 3
  • Bathrooms: 1
  • View: View of water,Direct Water View
  • Square Footage: 700 - 1100 Sqft
  • Status: Active
  • Property Sub Type: Single Family
  • Office Key: 56033
Features & Appliances
Features
  • Heating System: Electric, Baseboard heaters
  • Cooling System: Window air conditioner
  • Parking: Detached Garage, Garage
  • Exterior Features: Wood
  • Sewer: Septic System
  • Waterfront Features: Waterfront on lake
Address Map
  • Location: CA, Ontario, Rideau Lakes, K0G1L0
  • Street: R3
  • Street Number: 16
  • Street Suffix: Road
  • Longitude: W77° 53' 35.6''
  • Latitude: N44° 51' 21.9''
Additional Information
  • Water Body Name: Lower Rideau Lake
  • Foundation Details:
  • Lot Features:
  • Lot Size Dimensions: 90 FT
  • Stories: 1.5
Financial
  • Tax Annual Amount: 3542
Powered by REALTOR.ca
Listing updated: 2026-04-20 14:49:55
List Your Property
Mortgage Calculator
Get Pre-Approved
$
$
%
%
years
Monthly Payment (Est.) $
Similar Properties
Listing Information
  • List Agent Key: 1825699
  • List Office Key: 56033
  • Modification Timestamp: 2026-04-10T18:35:39Z
  • Originating System Name: Rideau - St. Lawrence Real Estate Board
  • Status Change Timestamp: 2026-04-10T18:26:28Z
Powered by REALTOR.ca
Listing updated: 2026-04-20 14:49:55
REALTOR®, REALTORS®, and the REALTOR® logo are certification marks that are owned by REALTOR® Canada Inc. and licensed exclusively to The Canadian Real Estate Association (CREA). These certification marks identify real estate professionals who are members of CREA and who must abide by CREA’s By‐Laws, Rules, and the REALTOR® Code. The MLS® trademark and the MLS® logo are owned by CREA and identify the quality of services provided by real estate professionals who are members of CREA.

The information contained on this site is based in whole or in part on information that is provided by members of The Canadian Real Estate Association, who are responsible for its accuracy. CREA reproduces and distributes this information as a service for its members and assumes no responsibility for its accuracy.

Website is operated by a brokerage or salesperson who is a member of The Canadian Real Estate Association.

The listing content on this website is protected by copyright and other laws, and is intended solely for the private, non‐commercial use by individuals. Any other reproduction, distribution or use of the content, in whole or in part, is specifically forbidden. The prohibited uses include commercial use, “screen scraping”, “database scraping”, and any other activity intended to collect, store, reorganize or manipulate data on the pages produced by or displayed on this website.

By continuing to use this website and its services, you agree to these

These forms are provided to ComFree’s Unrepresented Sellers as a part of their Mere Posting ComFree Listing Contract.

I acknowledge I can only access these forms as a ComFree customer under contract.

These forms are provided to ComFree’s Unrepresented Sellers as a part of their Mere Posting ComFree Listing Contract and in partnership with Zubic Law.

I acknowledge I can only access these forms as a ComFree customer under contract.

These forms are provided to ComFree’s Unrepresented Sellers as a part of their Mere Posting ComFree Listing Contract and in partnership with Zubic Law.

I acknowledge I can only access these forms as a ComFree customer under contract.

How It Works

1. Purchase Your Package

2. We Ship Your ‘For Sale’ Sign

3. Book Your VR Tour

4. Complete Listing Input Forms

5. We Make Your Listing Live

6. Get Support 7 Days a Week

7. iSOLD!