Share
$1,055,000
British Columbia,Vancouver
For Sale Active
1604 1010 BURNABY STREET, Vancouver, British Columbia V6E4L8
  • 2
  • 2
  • 995 Sqft
Contact Seller
Basic Details
Description

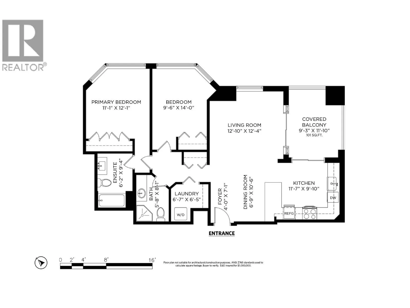
Beautifully renovated large 2-bed, 2-bath upper corner unit in the West End´s coveted building, The Ellington. Spanning just under 1,000 sq ft, this home offers a seamless balance of space, function & modern comfort. New flooring throughout, while large windows fill the home with natural light, set within one of the building´s most desirable floor plans. Fully reimagined kitchen features

bespoke cabinetry, refined countertops, farmhouse-style sink & high-end appliances, offering ample storage & flowing seamlessly to a spacious patio-perfect for entertaining. Separate from the living space are 2 generous bedrooms with updated built-in storage, with the primary featuring city & mountain views & a spa-like ensuite. Fully rainscreened building with extensive amenities. A must see! (id:62650)

Read More
Basic Details
  • Property Type: Residential
  • Listing Type: For Sale
  • Listing ID: R3110300
  • Price: $1,055,000
  • Bedrooms: 2
  • Bathrooms: 2
  • View: View
  • Square Footage: 995 Sqft
  • Year Built: 1990
  • Status: Active
  • Property Attached Yn: 1
  • Property Sub Type: Single Family
  • Office Key: 52030
Features & Appliances
Features
  • Swimming Pool: Outdoor pool
  • Heating System: Hot Water, Baseboard heaters
  • Parking: Underground
Address Map
  • Location: CA, British Columbia, Vancouver, V6E4L8
  • Street: BURNABY
  • Street Number: 1010
  • Street Suffix: Street
  • Longitude: W124° 52' 8.8''
  • Latitude: N49° 16' 42.3''
Additional Information
  • Community Features:
  • Lot Features:
Financial
  • Association Fee: 723.51
  • Association Fee Frequency: Monthly
  • Tax Annual Amount: 2871.92
Powered by REALTOR.ca
Listing updated: 2026-04-13 17:32:45
List Your Property
Mortgage Calculator
Get Pre-Approved
$
$
%
%
years
Monthly Payment (Est.) $
Listing Information
  • List Agent Key: 2093967
  • List Office Key: 52030
  • Modification Timestamp: 2026-04-13T22:06:08Z
  • Originating System Name: Greater Vancouver REALTORS®
  • Status Change Timestamp: 2026-04-13T21:59:24Z
Powered by REALTOR.ca
Listing updated: 2026-04-13 17:32:45
REALTOR®, REALTORS®, and the REALTOR® logo are certification marks that are owned by REALTOR® Canada Inc. and licensed exclusively to The Canadian Real Estate Association (CREA). These certification marks identify real estate professionals who are members of CREA and who must abide by CREA’s By‐Laws, Rules, and the REALTOR® Code. The MLS® trademark and the MLS® logo are owned by CREA and identify the quality of services provided by real estate professionals who are members of CREA.

The information contained on this site is based in whole or in part on information that is provided by members of The Canadian Real Estate Association, who are responsible for its accuracy. CREA reproduces and distributes this information as a service for its members and assumes no responsibility for its accuracy.

Website is operated by a brokerage or salesperson who is a member of The Canadian Real Estate Association.

The listing content on this website is protected by copyright and other laws, and is intended solely for the private, non‐commercial use by individuals. Any other reproduction, distribution or use of the content, in whole or in part, is specifically forbidden. The prohibited uses include commercial use, “screen scraping”, “database scraping”, and any other activity intended to collect, store, reorganize or manipulate data on the pages produced by or displayed on this website.

By continuing to use this website and its services, you agree to these

These forms are provided to ComFree’s Unrepresented Sellers as a part of their Mere Posting ComFree Listing Contract.

I acknowledge I can only access these forms as a ComFree customer under contract.

These forms are provided to ComFree’s Unrepresented Sellers as a part of their Mere Posting ComFree Listing Contract and in partnership with Zubic Law.

I acknowledge I can only access these forms as a ComFree customer under contract.

These forms are provided to ComFree’s Unrepresented Sellers as a part of their Mere Posting ComFree Listing Contract and in partnership with Zubic Law.

I acknowledge I can only access these forms as a ComFree customer under contract.

How It Works

1. Purchase Your Package

2. We Ship Your ‘For Sale’ Sign

3. Book Your VR Tour

4. Complete Listing Input Forms

5. We Make Your Listing Live

6. Get Support 7 Days a Week

7. iSOLD!