Share
$899,900
Ontario,London North (North S)
For Sale Active
2669 HEARDCREEK TRAIL, London North (North S), Ontario N6G0Z8
  • 4
  • 4
  • 2000 - 2500Square Feet
Contact Seller
Basic Details
Description

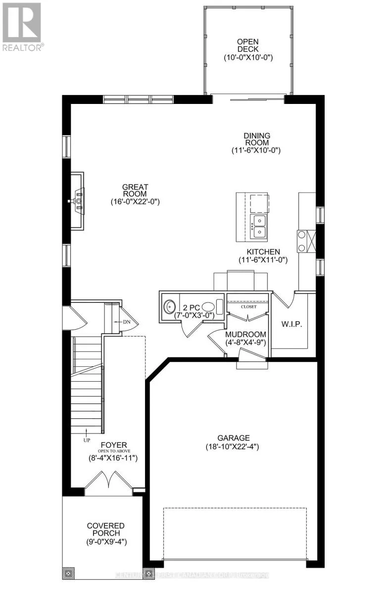
To Be Built, Price includes proposed 2026 HST rebates. Final rebate amount is subject to the passing of Provincial and Federal legislation and purchaser eligibility as per government guidelines, including primary residence or qualifying rental. Creekside Luxury Living – SHBUILDERS Inc is proud to present this stunning two-storey home – fully customizable to your own taste and will be built

on a premium lookout lot backing onto the creek, offering the perfect balance of modern design and natural beauty. The exterior showcases timeless curb appeal with a stone and stucco front, complemented by brick and vinyl siding on the sides and back, along with a 10×10 pressure-treated deck to enjoy the peaceful views. Inside, the main floor features 9 ft ceilings with 8 ft doors, hardwood flooring throughout the living areas, and tile in all wet zones and showers. Premium finishes throughout the home further elevate the style and comfort. A welcoming foyer with double doors and open-to-above ceiling leads into the spacious great room, bright dining room with deck access, and a modern kitchen complete with island and walk-in pantry. A mudroom with closet, 2-piece bath, and garage access complete this level. Upstairs, the primary suite impresses with a spa-inspired ensuite offering a tile shower, soaker tub, double vanity, and dual walk-in closets. A second bedroom enjoys its own ensuite, while two additional bedrooms share a Jack & Jill bath. Convenient upstairs laundry adds to the thoughtful layout. The lower level has a separate entrance and provides potential with a large unfinished rec room, rough-ins for a kitchenette and 3-piece bath, a future bedroom, and an additional laundry hook-up Making it perfect for an in-law suite or the potential for renting out for supplemental income. Basement can be finished through the builder for an additional cost. Designed for todays lifestyle, this home offers the perfect combination of comfort, elegance, and creekside living. (id:62650)

Read More
Basic Details
  • Property Type: Residential
  • Listing Type: For Sale
  • Listing ID: X12991438
  • Price: $899,900
  • Bedrooms: 4
  • Bathrooms: 4
  • Half Bathrooms: 1
  • Square Footage: 2000 - 2500 Sqft
  • Status: Active
  • Property Sub Type: Single Family
  • Office Key: 47128
Features & Appliances
Features
  • Heating System: Forced air, Natural gas
  • Cooling System: Central air conditioning, Air exchanger
  • Basement: Full, Unfinished
  • Parking: Garage, Attached Garage
  • Exterior Features: Stucco, Stone
  • Sewer: Sanitary sewer
  • Utilities: Electricity, Sewer, Cable
Address Map
  • Location: CA, Ontario, London North (North S), N6G0Z8
  • Street: Heardcreek
  • Street Number: 2669
  • Street Suffix: Trail
  • Longitude: W82° 40' 9.1''
  • Latitude: N43° 1' 10''
Additional Information
  • Water Source:
  • Foundation Details:
  • Lot Features:
  • Lot Size Dimensions: 39 x 122.6 FT
  • Stories: 2.0
Powered by REALTOR.ca
Listing updated: 2026-05-04 06:11:05
List Your Property
Mortgage Calculator
Get Pre-Approved
$
$
%
%
years
Monthly Payment (Est.) $
Listing Information
  • List Agent Key: 2076892
  • List Office Key: 47128
  • Modification Timestamp: 2026-04-13T17:41:02Z
  • Originating System Name: London and St. Thomas Association of REALTORS®
  • Status Change Timestamp: 2026-04-13T17:32:53Z
Powered by REALTOR.ca
Listing updated: 2026-05-04 06:11:05
REALTOR®, REALTORS®, and the REALTOR® logo are certification marks that are owned by REALTOR® Canada Inc. and licensed exclusively to The Canadian Real Estate Association (CREA). These certification marks identify real estate professionals who are members of CREA and who must abide by CREA’s By‐Laws, Rules, and the REALTOR® Code. The MLS® trademark and the MLS® logo are owned by CREA and identify the quality of services provided by real estate professionals who are members of CREA.

The information contained on this site is based in whole or in part on information that is provided by members of The Canadian Real Estate Association, who are responsible for its accuracy. CREA reproduces and distributes this information as a service for its members and assumes no responsibility for its accuracy.

Website is operated by a brokerage or salesperson who is a member of The Canadian Real Estate Association.

The listing content on this website is protected by copyright and other laws, and is intended solely for the private, non‐commercial use by individuals. Any other reproduction, distribution or use of the content, in whole or in part, is specifically forbidden. The prohibited uses include commercial use, “screen scraping”, “database scraping”, and any other activity intended to collect, store, reorganize or manipulate data on the pages produced by or displayed on this website.

By continuing to use this website and its services, you agree to these

These forms are provided to ComFree’s Unrepresented Sellers as a part of their Mere Posting ComFree Listing Contract.

I acknowledge I can only access these forms as a ComFree customer under contract.

These forms are provided to ComFree’s Unrepresented Sellers as a part of their Mere Posting ComFree Listing Contract and in partnership with Zubic Law.

I acknowledge I can only access these forms as a ComFree customer under contract.

These forms are provided to ComFree’s Unrepresented Sellers as a part of their Mere Posting ComFree Listing Contract and in partnership with Zubic Law.

I acknowledge I can only access these forms as a ComFree customer under contract.

How It Works

1. Purchase Your Package

2. We Ship Your ‘For Sale’ Sign

3. Book Your VR Tour

4. Complete Listing Input Forms

5. We Make Your Listing Live

6. Get Support 7 Days a Week

7. iSOLD!