Share
$22
British Columbia,Fort St. John
For Rent Active
11927 242 ROAD, Fort St. John, British Columbia V1J4M7
Contact Seller
Basic Details
Description

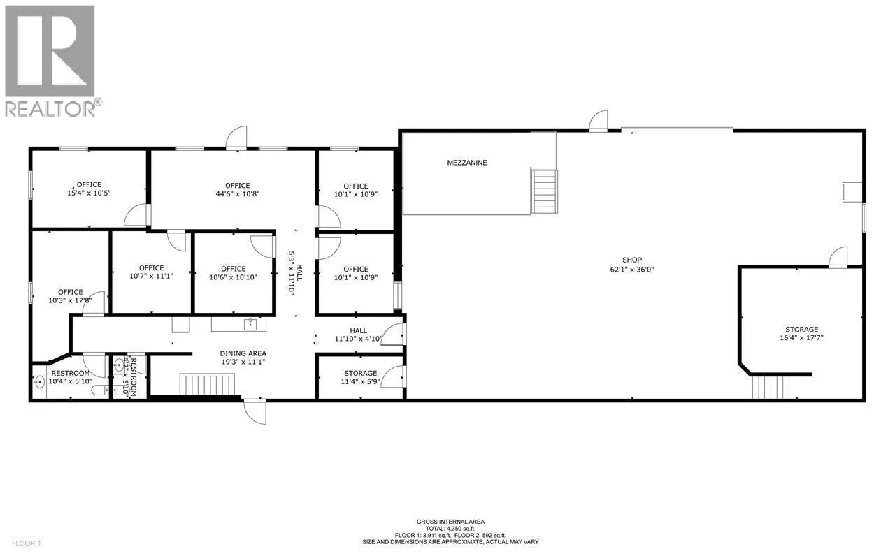
Position your business for success with this Light Industrial zoned shop & office building located right off the Alaska Highway, west of Rona & minutes from downtown. Offering 4,503 sq. ft. of interior space, this property features a balanced layout with six offices and a 62′ x 36′ shop equipped with 14’x 14′ overhead door, a mezzanine, & additional storage.

The 3-acre site includes a fully fenced, well-graveled yard w/ample parking & excellent turnaround space for trucks. A 20′ sea can & 20’x30′ Quonset provide extra storage. A security system is already in place for your peace of mind. This property supports a wide range of industrial uses & provides the space and infrastructure needed to operate and grow efficiently. A solid foundation for your next phase of business operations. (id:62650)

Read More
Basic Details
  • Property Type: Commercial Lease
  • Listing Type: For Rent
  • Listing ID: C8077813
  • Price: $22
  • Year Built: 9999
  • Status: Active
  • Property Sub Type: Industrial
  • Office Key: 88865
Address Map
  • Location: CA, British Columbia, Fort St. John, V1J4M7
  • Street: 242
  • Street Number: 11927
  • Street Suffix: Road
  • Longitude: W121° 7' 7.5''
  • Latitude: N56° 14' 46.5''
Additional Information
  • Lot Size Dimensions: 3
Powered by REALTOR.ca
Listing updated: 2026-04-21 05:05:40
List Your Property
Listing Information
  • List Agent Key: 1987209
  • List Office Key: 88865
  • Modification Timestamp: 2026-04-14T18:41:33Z
  • Originating System Name: BC Northern Real Estate Board
  • Status Change Timestamp: 2026-04-14T18:26:18Z
Powered by REALTOR.ca
Listing updated: 2026-04-21 05:05:40
REALTOR®, REALTORS®, and the REALTOR® logo are certification marks that are owned by REALTOR® Canada Inc. and licensed exclusively to The Canadian Real Estate Association (CREA). These certification marks identify real estate professionals who are members of CREA and who must abide by CREA’s By‐Laws, Rules, and the REALTOR® Code. The MLS® trademark and the MLS® logo are owned by CREA and identify the quality of services provided by real estate professionals who are members of CREA.

The information contained on this site is based in whole or in part on information that is provided by members of The Canadian Real Estate Association, who are responsible for its accuracy. CREA reproduces and distributes this information as a service for its members and assumes no responsibility for its accuracy.

Website is operated by a brokerage or salesperson who is a member of The Canadian Real Estate Association.

The listing content on this website is protected by copyright and other laws, and is intended solely for the private, non‐commercial use by individuals. Any other reproduction, distribution or use of the content, in whole or in part, is specifically forbidden. The prohibited uses include commercial use, “screen scraping”, “database scraping”, and any other activity intended to collect, store, reorganize or manipulate data on the pages produced by or displayed on this website.

By continuing to use this website and its services, you agree to these

These forms are provided to ComFree’s Unrepresented Sellers as a part of their Mere Posting ComFree Listing Contract.

I acknowledge I can only access these forms as a ComFree customer under contract.

These forms are provided to ComFree’s Unrepresented Sellers as a part of their Mere Posting ComFree Listing Contract and in partnership with Zubic Law.

I acknowledge I can only access these forms as a ComFree customer under contract.

These forms are provided to ComFree’s Unrepresented Sellers as a part of their Mere Posting ComFree Listing Contract and in partnership with Zubic Law.

I acknowledge I can only access these forms as a ComFree customer under contract.

How It Works

1. Purchase Your Package

2. We Ship Your ‘For Sale’ Sign

3. Book Your VR Tour

4. Complete Listing Input Forms

5. We Make Your Listing Live

6. Get Support 7 Days a Week

7. iSOLD!