Share
$3,000
Ontario,Orangeville
For Sale Active
LOWER CHURCH - 3 ZINA STREET, Orangeville, Ontario L9W1E2
  • 2,000 Sqft
Contact Seller
Basic Details
Description

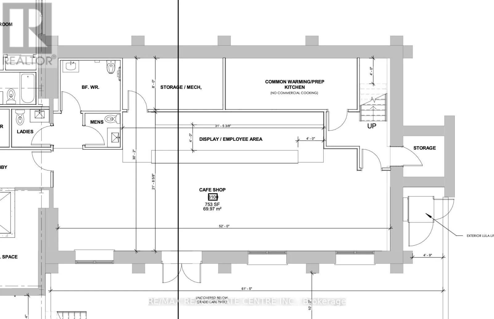
This is a great opportunity to make a historic space into a new great commercial offering. The basement particularly has a perfect setting for a nice cafe with 7 residences attached to it. Also an opportunity to make this work and live space, with the Church main floor area able to be converted into an epic residence with an

access to below work area. This building has all the zoning approvals within C5 OR special permissions for Cafe, Assembly hall, Club House, or Theatre. The building is being repositioned as a mixed use development. Work with the builder to customize the space. Just steps from Broadway, great location with great visibility. Tons of public and street parking in the area. Two floors available together or rent out the top or bottom separately …over 4,000 sqft together or over 2,000 per level. (id:62650)

Read More
Basic Details
  • Property Type: Commercial Sale
  • Listing Type: For Sale
  • Listing ID: W12993894
  • Price: $3,000
  • Square Footage: 2,000 Sqft
  • Status: Active
  • Property Sub Type: Retail
  • Office Key: 279256
Features & Appliances
Features
  • Heating System: Forced air, Natural gas
  • Cooling System: Fully air conditioned
Address Map
  • Location: CA, Ontario, Orangeville, L9W1E2
  • Street: Zina
  • Street Number: 3
  • Street Suffix: Street
  • Longitude: W81° 54' 7.3''
  • Latitude: N43° 55' 13.2''
Additional Information
  • Water Source:
  • Lot Features:
  • Lot Size Dimensions: 50 x 147 FT
Financial
  • Tax Annual Amount: 5.5
Powered by REALTOR.ca
Listing updated: 2026-04-20 06:15:14
List Your Property
Mortgage Calculator
Get Pre-Approved
$
$
%
%
years
Monthly Payment (Est.) $
Listing Information
  • List Agent Key: 2145074
  • List Office Key: 279256
  • Modification Timestamp: 2026-04-14T03:50:33Z
  • Originating System Name: Toronto Regional Real Estate Board
  • Status Change Timestamp: 2026-04-14T03:40:16Z
Powered by REALTOR.ca
Listing updated: 2026-04-20 06:15:14
REALTOR®, REALTORS®, and the REALTOR® logo are certification marks that are owned by REALTOR® Canada Inc. and licensed exclusively to The Canadian Real Estate Association (CREA). These certification marks identify real estate professionals who are members of CREA and who must abide by CREA’s By‐Laws, Rules, and the REALTOR® Code. The MLS® trademark and the MLS® logo are owned by CREA and identify the quality of services provided by real estate professionals who are members of CREA.

The information contained on this site is based in whole or in part on information that is provided by members of The Canadian Real Estate Association, who are responsible for its accuracy. CREA reproduces and distributes this information as a service for its members and assumes no responsibility for its accuracy.

Website is operated by a brokerage or salesperson who is a member of The Canadian Real Estate Association.

The listing content on this website is protected by copyright and other laws, and is intended solely for the private, non‐commercial use by individuals. Any other reproduction, distribution or use of the content, in whole or in part, is specifically forbidden. The prohibited uses include commercial use, “screen scraping”, “database scraping”, and any other activity intended to collect, store, reorganize or manipulate data on the pages produced by or displayed on this website.

By continuing to use this website and its services, you agree to these

These forms are provided to ComFree’s Unrepresented Sellers as a part of their Mere Posting ComFree Listing Contract.

I acknowledge I can only access these forms as a ComFree customer under contract.

These forms are provided to ComFree’s Unrepresented Sellers as a part of their Mere Posting ComFree Listing Contract and in partnership with Zubic Law.

I acknowledge I can only access these forms as a ComFree customer under contract.

These forms are provided to ComFree’s Unrepresented Sellers as a part of their Mere Posting ComFree Listing Contract and in partnership with Zubic Law.

I acknowledge I can only access these forms as a ComFree customer under contract.

How It Works

1. Purchase Your Package

2. We Ship Your ‘For Sale’ Sign

3. Book Your VR Tour

4. Complete Listing Input Forms

5. We Make Your Listing Live

6. Get Support 7 Days a Week

7. iSOLD!