Share
$9
Ontario,Aylmer
For Rent Active
11D - 516 JOHN STREET N, Aylmer, Ontario N5H2B8
  • 72,503 Sqft
Contact Seller
Basic Details
Description

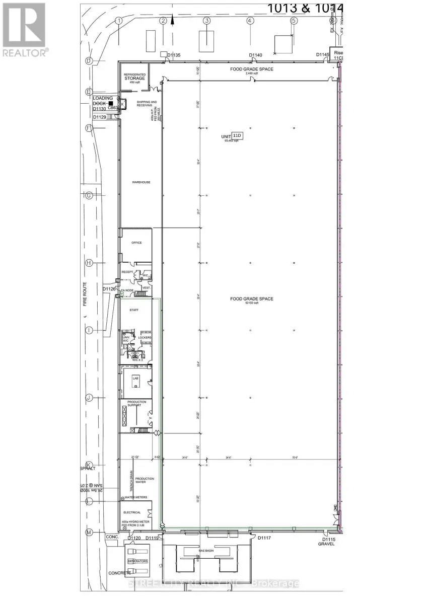
Purpose-built food-grade production and cold storage facility within the Elgin Innovation Centre.This fully improved space offers a rare opportunity to step into an existing, high-cost buildout-including refrigerated areas, freezer capacity, floor drains, epoxy flooring, and backup power-without the time and capital typically required. Ideal for: Food processing/Beverage production/Cold storage / Distribution/Nutraceutical / light pharma. Also suitable for: Manufacturing/Assembly/Logistics / Warehousing/R&D

/ Lab users. Avoid Millions in Build-Out Costs. Existing food-grade wall systems(IMP),integrated drainage + epoxy flooring (Landlord to repair existing).Refrigeration + freezer infrastructure. Backup power systems in place. Lab and production-ready layout. Food grade finishes throughout. Fully built out lab. 450 SF Freezer and refrigerated area on the north end. The whole space could be refrigerated. Huge backup battery system and 2 backup generators to provide redundancy to the upgradeable 380 amp 600 V power. (Upgradeable to at least 800 AMP, please contact us with your specific needs).Existing security system and door access system. Heavy Industrial Zoning. Large grade level and 1 truck level door with the potential to add several more. 5% office space could be easily expanded onto the structural mezzanine above. Landlord open to demising, additional loading, or tailored improvements for qualified users. Contact for more details or to arrange a tour. (id:62650)

Read More
Basic Details
  • Property Type: Commercial Lease
  • Listing Type: For Rent
  • Listing ID: X12992882
  • Price: $9
  • Square Footage: 72,503 Sqft
  • Status: Active
  • Property Sub Type: Industrial
  • Office Key: 168772
Features & Appliances
Features
  • Heating System: Forced air, Natural gas
  • Cooling System: Partially air conditioned
Address Map
  • Location: CA, Ontario, Aylmer, N5H2B8
  • Street: John
  • Street Number: 516
  • Street Suffix: Street
  • Longitude: W81° 0' 59''
  • Latitude: N42° 46' 51.6''
  • Street Dir Suffix: North
Additional Information
  • Water Source:
  • Lot Size Dimensions: Bldg=1438 x 1679 FT
Financial
  • Tax Annual Amount: 9998.04
Powered by REALTOR.ca
Listing updated: 2026-04-25 08:37:16
List Your Property
Similar Properties
Listing Information
  • List Agent Key: 2068195
  • List Office Key: 168772
  • Modification Timestamp: 2026-04-14T15:05:17Z
  • Originating System Name: London and St. Thomas Association of REALTORS®
  • Status Change Timestamp: 2026-04-14T14:58:13Z
Powered by REALTOR.ca
Listing updated: 2026-04-25 08:37:17
REALTOR®, REALTORS®, and the REALTOR® logo are certification marks that are owned by REALTOR® Canada Inc. and licensed exclusively to The Canadian Real Estate Association (CREA). These certification marks identify real estate professionals who are members of CREA and who must abide by CREA’s By‐Laws, Rules, and the REALTOR® Code. The MLS® trademark and the MLS® logo are owned by CREA and identify the quality of services provided by real estate professionals who are members of CREA.

The information contained on this site is based in whole or in part on information that is provided by members of The Canadian Real Estate Association, who are responsible for its accuracy. CREA reproduces and distributes this information as a service for its members and assumes no responsibility for its accuracy.

Website is operated by a brokerage or salesperson who is a member of The Canadian Real Estate Association.

The listing content on this website is protected by copyright and other laws, and is intended solely for the private, non‐commercial use by individuals. Any other reproduction, distribution or use of the content, in whole or in part, is specifically forbidden. The prohibited uses include commercial use, “screen scraping”, “database scraping”, and any other activity intended to collect, store, reorganize or manipulate data on the pages produced by or displayed on this website.

By continuing to use this website and its services, you agree to these

These forms are provided to ComFree’s Unrepresented Sellers as a part of their Mere Posting ComFree Listing Contract.

I acknowledge I can only access these forms as a ComFree customer under contract.

These forms are provided to ComFree’s Unrepresented Sellers as a part of their Mere Posting ComFree Listing Contract and in partnership with Zubic Law.

I acknowledge I can only access these forms as a ComFree customer under contract.

These forms are provided to ComFree’s Unrepresented Sellers as a part of their Mere Posting ComFree Listing Contract and in partnership with Zubic Law.

I acknowledge I can only access these forms as a ComFree customer under contract.

How It Works

1. Purchase Your Package

2. We Ship Your ‘For Sale’ Sign

3. Book Your VR Tour

4. Complete Listing Input Forms

5. We Make Your Listing Live

6. Get Support 7 Days a Week

7. iSOLD!