Share
$349,900
Ontario,St. Catharines
For Sale Active
228 QUEENSTON Street, St. Catharines, Ontario L2P2X1
Contact Seller
Basic Details
Description

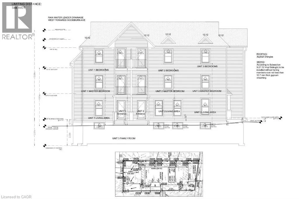
Vacant building lot with approved plans for a 3-unit residential development in a growing area of St. Catharines. The property is zoned M1 and benefits from an Official Plan designation supporting mixed-use, including residential, offering strong flexibility for redevelopment . Significant upfront work has already been completed, including minor variance approval and full building permit issuance for a purpose-built triplex.

Plans allow for a 3-storey residential building with three self-contained units, designed in compliance with current building code requirements . The current owner has invested over $55,000 in pre-development costs, including permits, development charges, servicing upgrades, and site preparation. This represents a major time and cost savings for a buyer looking to move forward quickly with construction. The lot is approximately 38 ft frontage with good depth and is located along Queenston Street with convenient access to downtown St. Catharines, transit, and nearby commercial amenities. The surrounding area continues to see ongoing redevelopment and intensification, making this an attractive opportunity for investors and builders alike. (id:62650)

Read More
Basic Details
  • Property Type: Residential
  • Listing Type: For Sale
  • Listing ID: 40817293
  • Price: $349,900
  • Status: Active
  • Property Sub Type: Vacant Land
  • Office Key: 55069
Features & Appliances
Features
  • Basement: None
  • Sewer: Municipal sewage system
  • Utilities: Natural Gas
Address Map
  • Location: CA, Ontario, St. Catharines, 446 - Fairview, L2P2X1
  • Street: QUEENSTON
  • Street Number: 228
  • Street Suffix: Street
  • Longitude: W80° 46' 34.7''
  • Latitude: N43° 9' 40.5''
Additional Information
  • Water Source:
  • Community Features:
Financial
  • Tax Annual Amount: 977
Powered by REALTOR.ca
Listing updated: 2026-04-16 00:24:33
List Your Property
Mortgage Calculator
Get Pre-Approved
$
$
%
%
years
Monthly Payment (Est.) $
Listing Information
  • List Agent Key: 1642764
  • List Office Key: 55069
  • Modification Timestamp: 2026-04-14T17:45:27Z
  • Originating System Name: Cornerstone Association of REALTORS®
  • Status Change Timestamp: 2026-04-14T17:33:03Z
Powered by REALTOR.ca
Listing updated: 2026-04-16 00:24:33
REALTOR®, REALTORS®, and the REALTOR® logo are certification marks that are owned by REALTOR® Canada Inc. and licensed exclusively to The Canadian Real Estate Association (CREA). These certification marks identify real estate professionals who are members of CREA and who must abide by CREA’s By‐Laws, Rules, and the REALTOR® Code. The MLS® trademark and the MLS® logo are owned by CREA and identify the quality of services provided by real estate professionals who are members of CREA.

The information contained on this site is based in whole or in part on information that is provided by members of The Canadian Real Estate Association, who are responsible for its accuracy. CREA reproduces and distributes this information as a service for its members and assumes no responsibility for its accuracy.

Website is operated by a brokerage or salesperson who is a member of The Canadian Real Estate Association.

The listing content on this website is protected by copyright and other laws, and is intended solely for the private, non‐commercial use by individuals. Any other reproduction, distribution or use of the content, in whole or in part, is specifically forbidden. The prohibited uses include commercial use, “screen scraping”, “database scraping”, and any other activity intended to collect, store, reorganize or manipulate data on the pages produced by or displayed on this website.

By continuing to use this website and its services, you agree to these

These forms are provided to ComFree’s Unrepresented Sellers as a part of their Mere Posting ComFree Listing Contract.

I acknowledge I can only access these forms as a ComFree customer under contract.

These forms are provided to ComFree’s Unrepresented Sellers as a part of their Mere Posting ComFree Listing Contract and in partnership with Zubic Law.

I acknowledge I can only access these forms as a ComFree customer under contract.

These forms are provided to ComFree’s Unrepresented Sellers as a part of their Mere Posting ComFree Listing Contract and in partnership with Zubic Law.

I acknowledge I can only access these forms as a ComFree customer under contract.

How It Works

1. Purchase Your Package

2. We Ship Your ‘For Sale’ Sign

3. Book Your VR Tour

4. Complete Listing Input Forms

5. We Make Your Listing Live

6. Get Support 7 Days a Week

7. iSOLD!