Share
$999,999
British Columbia,Sooke
For Sale Active
2270 Henlyn Dr, Sooke, British Columbia V9Z0N5
  • 3
  • 2
  • 1,733 Sqft
Next Open House
  • Apr 19 14:30 - 16:00
Basic Details
Description

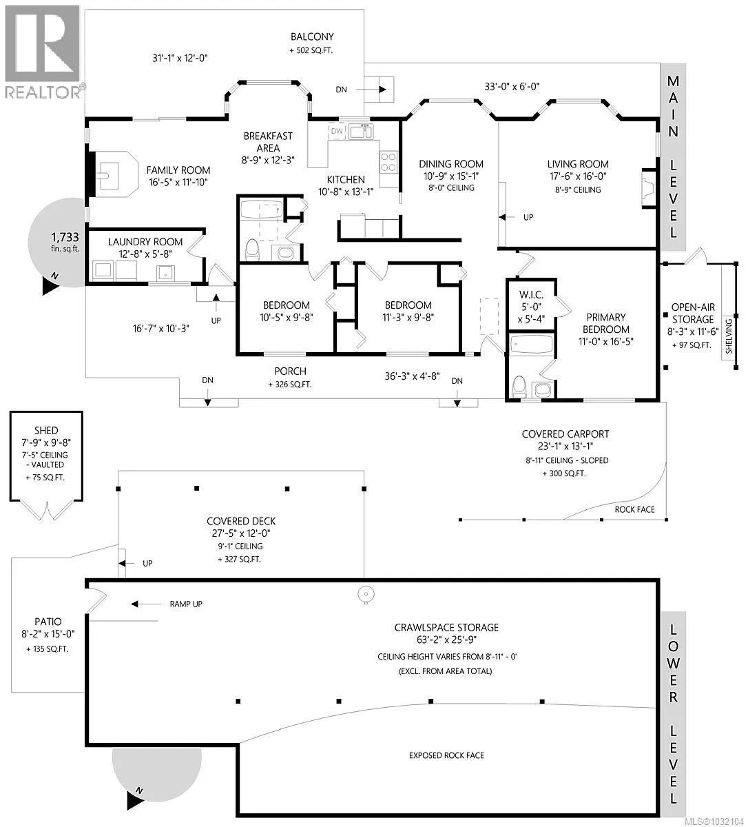
OPEN HOUSE SUN APR 19 2:30-4PM. $999,999. Charming Rancher on Over an Acre with Panoramic Ocean Views! New flooring throughout this well-kept 1,700+ sq ft, 3+ bedroom, 2-bath rancher offers stunning southern exposure and breathtaking ocean vistas, all set on a private, rustic 1+ acre lot in an established, desirable neighbourhood just minutes from Sooke’s town core. Arrive via a

long, private driveway and be immediately impressed by the manicured grounds, ample parking (perfect for RVs and boats), and the inviting sense of space and privacy. The existing carport could easily be converted into a garage for added convenience. Inside, the thoughtfully designed layout welcomes you with a spacious living room featuring a classy fireplace, a formal dining area with room for a hutch, and a centrally located kitchen with a breakfast nook. A large family room with a cozy woodstove completes the living space, each of these rooms positioned on the ocean-view side of the home and opening onto a full-length sundeck, ideal for entertaining or soaking in the views. The home offers three generously sized bedrooms, including a primary suite with a walk-in closet and ensuite. A functional laundry room with sink provides easy access to the secondary entrance—perfect for busy households or outdoor living. Down, a walk-in crawlspace with its own deck (approximately 60’ x 24’ with 11–12’ ceilings) offers endless potential ideal for a workshop, hobby space or storage. This is a rare opportunity to enjoy peaceful acreage living without sacrificing proximity to town amenities—complete with ocean views, privacy, and room to grow. (id:62650)

Read More
Basic Details
  • Property Type: Residential
  • Listing Type: For Sale
  • Listing ID: 1032104
  • Price: $999,999
  • Bedrooms: 3
  • Bathrooms: 2
  • View: Mountain view,Ocean view
  • Square Footage: 1,733 Sqft
  • Year Built: 1988
  • Status: Active
  • Property Sub Type: Single Family
  • Office Key: 280182
Features & Appliances
Features
  • Heating System: Heat Pump, Electric, Wood, Baseboard heaters
  • Cooling System: Air Conditioned
  • Fireplaces Total: 2
Address Map
  • Location: CA, British Columbia, Sooke, V9Z0N5
  • Street: Henlyn
  • Street Number: 2270
  • Street Suffix: Drive
  • Longitude: W124° 14' 54''
  • Latitude: N48° 22' 36.6''
  • Zoning: Unknown
Additional Information
  • Lot Features:
  • Lot Size Dimensions: 1.04
Financial
  • Tax Annual Amount: 5202.18
Powered by REALTOR.ca
Listing updated: 2026-04-14 23:15:45
List Your Property
Mortgage Calculator
Get Pre-Approved
$
$
%
%
years
Monthly Payment (Est.) $
Listing Information
  • List Agent Key: 1597079
  • List Office Key: 280182
  • Modification Timestamp: 2026-04-14T18:35:42Z
  • Originating System Name: Victoria Real Estate Board
  • Status Change Timestamp: 2026-04-14T18:29:19Z
Powered by REALTOR.ca
Listing updated: 2026-04-14 23:15:46
REALTOR®, REALTORS®, and the REALTOR® logo are certification marks that are owned by REALTOR® Canada Inc. and licensed exclusively to The Canadian Real Estate Association (CREA). These certification marks identify real estate professionals who are members of CREA and who must abide by CREA’s By‐Laws, Rules, and the REALTOR® Code. The MLS® trademark and the MLS® logo are owned by CREA and identify the quality of services provided by real estate professionals who are members of CREA.

The information contained on this site is based in whole or in part on information that is provided by members of The Canadian Real Estate Association, who are responsible for its accuracy. CREA reproduces and distributes this information as a service for its members and assumes no responsibility for its accuracy.

Website is operated by a brokerage or salesperson who is a member of The Canadian Real Estate Association.

The listing content on this website is protected by copyright and other laws, and is intended solely for the private, non‐commercial use by individuals. Any other reproduction, distribution or use of the content, in whole or in part, is specifically forbidden. The prohibited uses include commercial use, “screen scraping”, “database scraping”, and any other activity intended to collect, store, reorganize or manipulate data on the pages produced by or displayed on this website.

By continuing to use this website and its services, you agree to these

These forms are provided to ComFree’s Unrepresented Sellers as a part of their Mere Posting ComFree Listing Contract.

I acknowledge I can only access these forms as a ComFree customer under contract.

These forms are provided to ComFree’s Unrepresented Sellers as a part of their Mere Posting ComFree Listing Contract and in partnership with Zubic Law.

I acknowledge I can only access these forms as a ComFree customer under contract.

These forms are provided to ComFree’s Unrepresented Sellers as a part of their Mere Posting ComFree Listing Contract and in partnership with Zubic Law.

I acknowledge I can only access these forms as a ComFree customer under contract.

How It Works

1. Purchase Your Package

2. We Ship Your ‘For Sale’ Sign

3. Book Your VR Tour

4. Complete Listing Input Forms

5. We Make Your Listing Live

6. Get Support 7 Days a Week

7. iSOLD!