Share
$629,900
Ontario,Hamilton (Normanhurst)
For Sale Active
229 PARKDALE AVENUE N, Hamilton (Normanhurst), Ontario L8H5X4
  • 1,513 Sqft
Contact Seller
Basic Details
Description

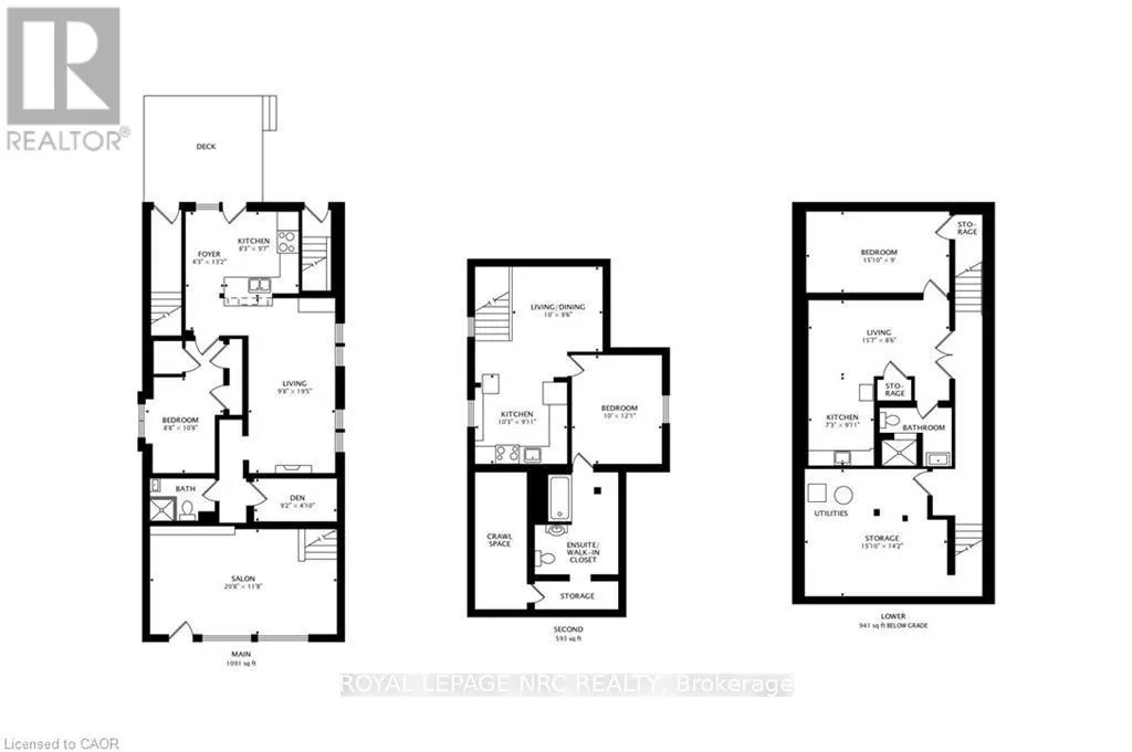
Excellent mixed-use investment opportunity in a high-visibility location at 229 Parkdale Ave N in Hamilton. This versatile property features a commercial storefront at the front along with three 1-bedroom residential units, offering multiple income streams and strong upside potential for investors or owner-operators. The property benefits from convenient on-site parking located at the side and rear of the building, a

rare and valuable feature in this area. Positioned along a busy corridor, the commercial unit enjoys excellent exposure and accessibility, making it ideal for a variety of business uses. Currently, one of the residential units is tenanted at $1,400 per month, with hydro and gas shared among the units. The tenant is actively seeking alternative accommodations, presenting a near-term opportunity for the buyer to set new market rents or occupy the unit. The remaining units and commercial space offer significant potential for lease-up or repositioning to maximize income. The building is serviced by one hydro meter and one gas meter, providing an opportunity for future optimization. Ideal for investors looking to add value through renovations, improved management, or full occupancy. Located close to major routes, public transit, and amenities, this is a rare opportunity to acquire a mixed-use property in a growing area with long-term potential. (id:62650)

Read More
Basic Details
  • Property Type: Commercial Sale
  • Listing Type: For Sale
  • Listing ID: X12995370
  • Price: $629,900
  • Square Footage: 1,513 Sqft
  • Status: Active
  • Property Sub Type: Retail
  • Office Key: 280549
Features & Appliances
Features
  • Heating System: Forced air, Natural gas
  • Cooling System: Fully air conditioned
Address Map
  • Location: CA, Ontario, Hamilton (Normanhurst), L8H5X4
  • Street: Parkdale
  • Street Number: 229
  • Street Suffix: Avenue
  • Longitude: W80° 12' 37.3''
  • Latitude: N43° 14' 34.1''
  • Street Dir Suffix: North
Additional Information
  • Water Source:
  • Lot Size Dimensions: 1513
Financial
  • Tax Annual Amount: 4100.05
Powered by REALTOR.ca
Listing updated: 2026-04-20 10:34:19
List Your Property
Mortgage Calculator
Get Pre-Approved
$
$
%
%
years
Monthly Payment (Est.) $
Listing Information
  • List Agent Key: 2042761
  • List Office Key: 280549
  • Modification Timestamp: 2026-04-14T15:30:44Z
  • Originating System Name: Toronto Regional Real Estate Board
  • Status Change Timestamp: 2026-04-14T15:21:32Z
Powered by REALTOR.ca
Listing updated: 2026-04-20 10:34:20
REALTOR®, REALTORS®, and the REALTOR® logo are certification marks that are owned by REALTOR® Canada Inc. and licensed exclusively to The Canadian Real Estate Association (CREA). These certification marks identify real estate professionals who are members of CREA and who must abide by CREA’s By‐Laws, Rules, and the REALTOR® Code. The MLS® trademark and the MLS® logo are owned by CREA and identify the quality of services provided by real estate professionals who are members of CREA.

The information contained on this site is based in whole or in part on information that is provided by members of The Canadian Real Estate Association, who are responsible for its accuracy. CREA reproduces and distributes this information as a service for its members and assumes no responsibility for its accuracy.

Website is operated by a brokerage or salesperson who is a member of The Canadian Real Estate Association.

The listing content on this website is protected by copyright and other laws, and is intended solely for the private, non‐commercial use by individuals. Any other reproduction, distribution or use of the content, in whole or in part, is specifically forbidden. The prohibited uses include commercial use, “screen scraping”, “database scraping”, and any other activity intended to collect, store, reorganize or manipulate data on the pages produced by or displayed on this website.

By continuing to use this website and its services, you agree to these

These forms are provided to ComFree’s Unrepresented Sellers as a part of their Mere Posting ComFree Listing Contract.

I acknowledge I can only access these forms as a ComFree customer under contract.

These forms are provided to ComFree’s Unrepresented Sellers as a part of their Mere Posting ComFree Listing Contract and in partnership with Zubic Law.

I acknowledge I can only access these forms as a ComFree customer under contract.

These forms are provided to ComFree’s Unrepresented Sellers as a part of their Mere Posting ComFree Listing Contract and in partnership with Zubic Law.

I acknowledge I can only access these forms as a ComFree customer under contract.

How It Works

1. Purchase Your Package

2. We Ship Your ‘For Sale’ Sign

3. Book Your VR Tour

4. Complete Listing Input Forms

5. We Make Your Listing Live

6. Get Support 7 Days a Week

7. iSOLD!