Share
$255,000
Ontario,Greater Napanee (Greater Napanee)
For Sale Active
0 PALACE ROAD, Greater Napanee (Greater Napanee), Ontario K7R1A7
Contact Seller
Basic Details
Description

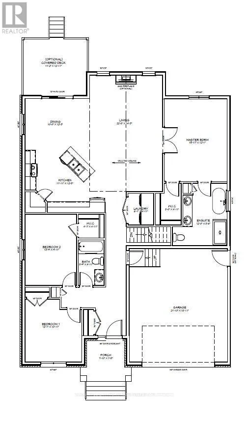
Put your building cap on and explore the possibilities with this exceptional residential building lot located within town limits on sought after Palace Road in Greater Napanee. Offering approximately half an acre of cleared elevated land with beautiful hilltop views, this property combines space, scenery, and full municipal services including water, sewer, natural gas, and hydro. This property is ideally

suited for a custom bungalow build, with multiple thoughtfully designed concept home options available through North Peak Homes, including layouts ranging from approximately 954 to 1,570 square feet with attached garages, open concept living spaces, vaulted ceiling options, and future lower level finishing potential. Buyers may customize a design or explore alternative layouts to suit their needs. Located just minutes from Highway 401 access, this property provides an easy commute to Kingston or Belleville while remaining within walking distance to downtown Greater Napanee amenities including the waterfront boardwalk, shops, restaurants, grocery stores, schools, and everyday conveniences. Enjoy the rare opportunity to build a modern custom home on a spacious serviced in town lot that offers the feel of country living with the convenience of municipal infrastructure already available. This is just a Vacant Land listing. (id:62650)

Read More
Basic Details
  • Property Type: Residential
  • Listing Type: For Sale
  • Listing ID: X12994220
  • Price: $255,000
  • View: River view,Valley view
  • Status: Active
  • Property Sub Type: Vacant Land
  • Office Key: 52589
Features & Appliances
Features
  • Utilities: Electricity Available, Water Available, Natural Gas Available, Electricity, Sewer, Cable, Wireless, Telephone
Address Map
  • Location: CA, Ontario, Greater Napanee (Greater Napanee), K7R1A7
  • Street: Palace
  • Street Suffix: Road
  • Longitude: W77° 4' 8.9''
  • Latitude: N44° 15' 53.6''
Additional Information
  • Lot Features:
  • Lot Size Dimensions: 87.43 x 262.48 FT
Financial
  • Tax Annual Amount: 762
Powered by REALTOR.ca
Listing updated: 2026-05-18 21:08:40
List Your Property
Mortgage Calculator
Get Pre-Approved
$
$
%
%
years
Monthly Payment (Est.) $
Listing Information
  • List Agent Key: 2078499
  • List Office Key: 52589
  • Modification Timestamp: 2026-04-28T14:25:56Z
  • Originating System Name: Central Lakes Association of REALTORS®
  • Status Change Timestamp: 2026-04-28T14:21:54Z
Powered by REALTOR.ca
Listing updated: 2026-05-18 21:08:40
REALTOR®, REALTORS®, and the REALTOR® logo are certification marks that are owned by REALTOR® Canada Inc. and licensed exclusively to The Canadian Real Estate Association (CREA). These certification marks identify real estate professionals who are members of CREA and who must abide by CREA’s By‐Laws, Rules, and the REALTOR® Code. The MLS® trademark and the MLS® logo are owned by CREA and identify the quality of services provided by real estate professionals who are members of CREA.

The information contained on this site is based in whole or in part on information that is provided by members of The Canadian Real Estate Association, who are responsible for its accuracy. CREA reproduces and distributes this information as a service for its members and assumes no responsibility for its accuracy.

Website is operated by a brokerage or salesperson who is a member of The Canadian Real Estate Association.

The listing content on this website is protected by copyright and other laws, and is intended solely for the private, non‐commercial use by individuals. Any other reproduction, distribution or use of the content, in whole or in part, is specifically forbidden. The prohibited uses include commercial use, “screen scraping”, “database scraping”, and any other activity intended to collect, store, reorganize or manipulate data on the pages produced by or displayed on this website.

By continuing to use this website and its services, you agree to these

These forms are provided to ComFree’s Unrepresented Sellers as a part of their Mere Posting ComFree Listing Contract.

I acknowledge I can only access these forms as a ComFree customer under contract.

These forms are provided to ComFree’s Unrepresented Sellers as a part of their Mere Posting ComFree Listing Contract and in partnership with Zubic Law.

I acknowledge I can only access these forms as a ComFree customer under contract.

These forms are provided to ComFree’s Unrepresented Sellers as a part of their Mere Posting ComFree Listing Contract and in partnership with Zubic Law.

I acknowledge I can only access these forms as a ComFree customer under contract.

How It Works

1. Purchase Your Package

2. We Ship Your ‘For Sale’ Sign

3. Book Your VR Tour

4. Complete Listing Input Forms

5. We Make Your Listing Live

6. Get Support 7 Days a Week

7. iSOLD!