Share
$649,777
Ontario,Haldimand
For Sale Active
86 PIKE CREEK DRIVE, Haldimand, Ontario N0E1E0
  • 2
  • 2
  • 1100 - 1500Square Feet
Contact Seller
Basic Details
Description

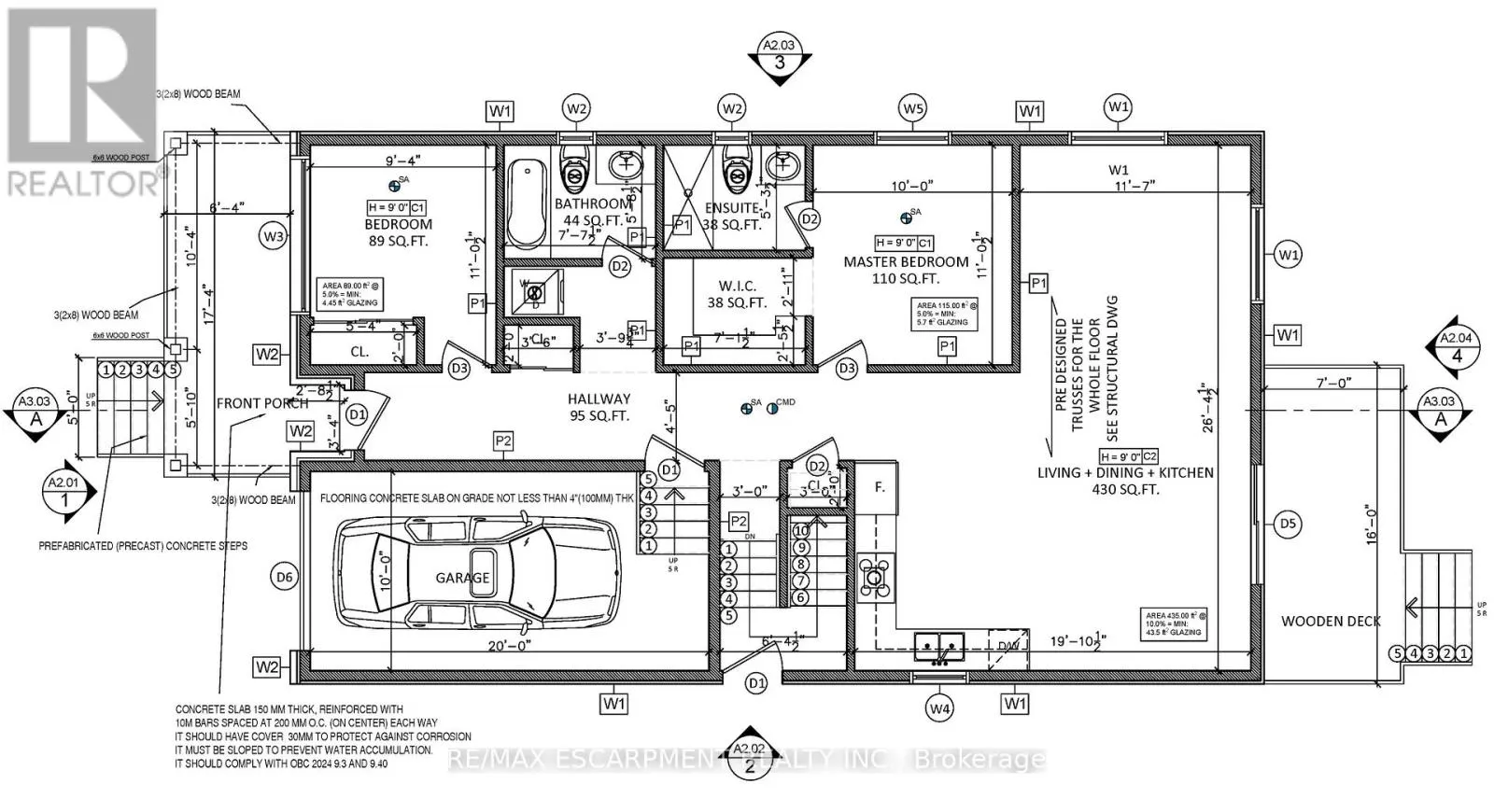
Welcome to this stunning brand new bungalow, thoughtfully designed with modern living in mind. Featuring 2 spacious bedrooms and 2 full bathrooms, this home offers a functional and stylish layout perfect for downsizers, first-time buyers, or anyone seeking the ease of single-level living. Step inside to discover a bright, open-concept space finished with durable vinyl flooring throughout and complemented by

elegant quartz countertops in the kitchen. The contemporary design continues outside with a striking blend of stone and stucco, accented by clean, modern architectural details that create exceptional curb appeal. Enjoy the convenience of a 1-car garage and the added value of a full appliance package included. Buyers will also appreciate the opportunity to personalize their home with available upgrade options, allowing you to tailor finishes and features to your taste. A perfect blend of quality craftsmanship and modern design-this is an incredible opportunity to own a brand new home built for comfort and style. (id:62650)

Read More
Basic Details
  • Property Type: Residential
  • Listing Type: For Sale
  • Listing ID: X12995048
  • Price: $649,777
  • Bedrooms: 2
  • Bathrooms: 2
  • Square Footage: 1100 - 1500 Sqft
  • Status: Active
  • Property Sub Type: Single Family
  • Office Key: 284792
Features & Appliances
Features
  • Heating System: Forced air, Natural gas
  • Cooling System: None
  • Basement: Full, Unfinished
  • Parking: Garage, Attached Garage, Inside Entry
  • Architectural Style: Bungalow
  • Exterior Features: Stucco, Stone
  • Sewer: Sanitary sewer
  • Utilities: Electricity, Sewer, Cable
Address Map
  • Location: CA, Ontario, Haldimand, N0E1E0
  • Street: PIKE CREEK
  • Street Number: 86
  • Street Suffix: Drive
  • Longitude: W80° 9' 10.9''
  • Latitude: N42° 56' 42.8''
Additional Information
  • Water Source:
  • Foundation Details:
  • Lot Size Dimensions: 36 x 141 FT
  • Stories: 1.0
Powered by REALTOR.ca
Listing updated: 2026-04-24 07:11:06
List Your Property
Mortgage Calculator
Get Pre-Approved
$
$
%
%
years
Monthly Payment (Est.) $
Listing Information
  • List Agent Key: 2093886
  • List Office Key: 284792
  • Modification Timestamp: 2026-04-14T19:56:05Z
  • Originating System Name: Toronto Regional Real Estate Board
  • Status Change Timestamp: 2026-04-14T19:46:46Z
Powered by REALTOR.ca
Listing updated: 2026-04-24 07:11:06
REALTOR®, REALTORS®, and the REALTOR® logo are certification marks that are owned by REALTOR® Canada Inc. and licensed exclusively to The Canadian Real Estate Association (CREA). These certification marks identify real estate professionals who are members of CREA and who must abide by CREA’s By‐Laws, Rules, and the REALTOR® Code. The MLS® trademark and the MLS® logo are owned by CREA and identify the quality of services provided by real estate professionals who are members of CREA.

The information contained on this site is based in whole or in part on information that is provided by members of The Canadian Real Estate Association, who are responsible for its accuracy. CREA reproduces and distributes this information as a service for its members and assumes no responsibility for its accuracy.

Website is operated by a brokerage or salesperson who is a member of The Canadian Real Estate Association.

The listing content on this website is protected by copyright and other laws, and is intended solely for the private, non‐commercial use by individuals. Any other reproduction, distribution or use of the content, in whole or in part, is specifically forbidden. The prohibited uses include commercial use, “screen scraping”, “database scraping”, and any other activity intended to collect, store, reorganize or manipulate data on the pages produced by or displayed on this website.

By continuing to use this website and its services, you agree to these

These forms are provided to ComFree’s Unrepresented Sellers as a part of their Mere Posting ComFree Listing Contract.

I acknowledge I can only access these forms as a ComFree customer under contract.

These forms are provided to ComFree’s Unrepresented Sellers as a part of their Mere Posting ComFree Listing Contract and in partnership with Zubic Law.

I acknowledge I can only access these forms as a ComFree customer under contract.

These forms are provided to ComFree’s Unrepresented Sellers as a part of their Mere Posting ComFree Listing Contract and in partnership with Zubic Law.

I acknowledge I can only access these forms as a ComFree customer under contract.

How It Works

1. Purchase Your Package

2. We Ship Your ‘For Sale’ Sign

3. Book Your VR Tour

4. Complete Listing Input Forms

5. We Make Your Listing Live

6. Get Support 7 Days a Week

7. iSOLD!