Share
$829,900
Ontario,London South (South V)
For Sale Active
4371 GREEN BEND ROAD, London South (South V), Ontario N6P0K9
  • 3
  • 3
  • 1500 - 2000Square Feet
Contact Seller
Basic Details
Description

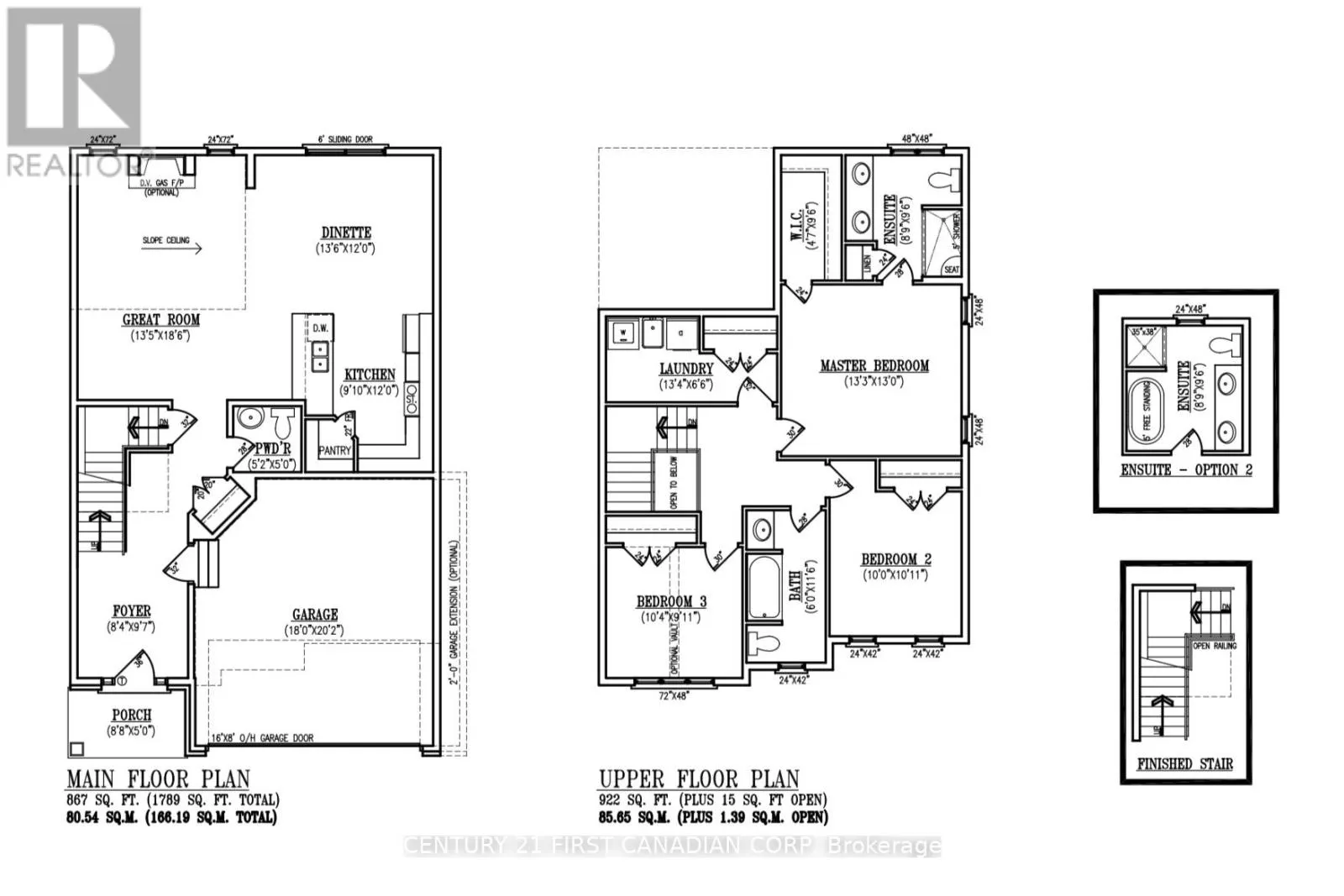
Welcome to your future home in the highly sought after Liberty Crossing community in Lambeth. This to-be-built two storey home by Castell Homes, The Cole model, offers 3 bedrooms and 2.5 bathrooms on a premium lot backing onto green space. Built with quality craftsmanship and a functional layout, this home is designed for comfortable, modern living. The main floor features

a bright, open-concept kitchen, dining area, and great room, ideal for both everyday life and entertaining. The kitchen includes a convenient pantry for added storage. A 2-piece powder room and inside access to the double-car garage complete the main level. Upstairs, the primary bedroom includes a walk-in closet and private 4-piece ensuite, with the option to upgrade to a 5-piece ensuite featuring a soaker tub. Two additional well-sized bedrooms, a full 4-piece bathroom, and a second-floor laundry room add to the home’s practical layout. Located in a family friendly neighbourhood, Liberty Crossing offers a quiet suburban setting with easy access to everyday amenities. Close to shopping, schools, parks, and recreational facilities in Lambeth, with convenient connections to Highways 402 and 401 for commuting across London and Southwestern Ontario. Price reflects the proposed 2026 HST rebates. Final rebate amount is subject to the passing of Provincial and Federal legislation and Buyer’s eligibility as per government guidelines, including primary residence or qualifying rental. (id:62650)

Read More
Basic Details
  • Property Type: Residential
  • Listing Type: For Sale
  • Listing ID: X13001120
  • Price: $829,900
  • Bedrooms: 3
  • Bathrooms: 3
  • Half Bathrooms: 1
  • Square Footage: 1500 - 2000 Sqft
  • Status: Active
  • Property Sub Type: Single Family
  • Office Key: 47128
Features & Appliances
Features
  • Heating System: Forced air, Natural gas
  • Cooling System: Central air conditioning
  • Basement: Full, Unfinished
  • Parking: Garage, Attached Garage
  • Exterior Features: Stone, Hardboard
  • Sewer: Sanitary sewer
Address Map
  • Location: CA, Ontario, London South (South V), N6P0K9
  • Street: GREEN BEND
  • Street Number: 4371
  • Street Suffix: Road
  • Longitude: W82° 43' 18.3''
  • Latitude: N42° 54' 42.9''
Additional Information
  • Water Source:
  • Foundation Details:
  • Lot Features:
  • Lot Size Dimensions: 42.1 x 107.6 FT
  • Stories: 2.0
Powered by REALTOR.ca
Listing updated: 2026-04-15 18:03:59
List Your Property
Mortgage Calculator
Get Pre-Approved
$
$
%
%
years
Monthly Payment (Est.) $
Listing Information
  • List Agent Key: 1985435
  • List Office Key: 47128
  • Modification Timestamp: 2026-04-15T19:01:00Z
  • Originating System Name: London and St. Thomas Association of REALTORS®
  • Status Change Timestamp: 2026-04-15T18:52:54Z
Powered by REALTOR.ca
Listing updated: 2026-04-15 18:04:00
REALTOR®, REALTORS®, and the REALTOR® logo are certification marks that are owned by REALTOR® Canada Inc. and licensed exclusively to The Canadian Real Estate Association (CREA). These certification marks identify real estate professionals who are members of CREA and who must abide by CREA’s By‐Laws, Rules, and the REALTOR® Code. The MLS® trademark and the MLS® logo are owned by CREA and identify the quality of services provided by real estate professionals who are members of CREA.

The information contained on this site is based in whole or in part on information that is provided by members of The Canadian Real Estate Association, who are responsible for its accuracy. CREA reproduces and distributes this information as a service for its members and assumes no responsibility for its accuracy.

Website is operated by a brokerage or salesperson who is a member of The Canadian Real Estate Association.

The listing content on this website is protected by copyright and other laws, and is intended solely for the private, non‐commercial use by individuals. Any other reproduction, distribution or use of the content, in whole or in part, is specifically forbidden. The prohibited uses include commercial use, “screen scraping”, “database scraping”, and any other activity intended to collect, store, reorganize or manipulate data on the pages produced by or displayed on this website.

By continuing to use this website and its services, you agree to these

These forms are provided to ComFree’s Unrepresented Sellers as a part of their Mere Posting ComFree Listing Contract.

I acknowledge I can only access these forms as a ComFree customer under contract.

These forms are provided to ComFree’s Unrepresented Sellers as a part of their Mere Posting ComFree Listing Contract and in partnership with Zubic Law.

I acknowledge I can only access these forms as a ComFree customer under contract.

These forms are provided to ComFree’s Unrepresented Sellers as a part of their Mere Posting ComFree Listing Contract and in partnership with Zubic Law.

I acknowledge I can only access these forms as a ComFree customer under contract.

How It Works

1. Purchase Your Package

2. We Ship Your ‘For Sale’ Sign

3. Book Your VR Tour

4. Complete Listing Input Forms

5. We Make Your Listing Live

6. Get Support 7 Days a Week

7. iSOLD!