Share
$3,288,000
Ontario,Waterloo
For Sale Active
282 ERB STREET W, Waterloo, Ontario N2L1W3
Contact Seller
Basic Details
Description

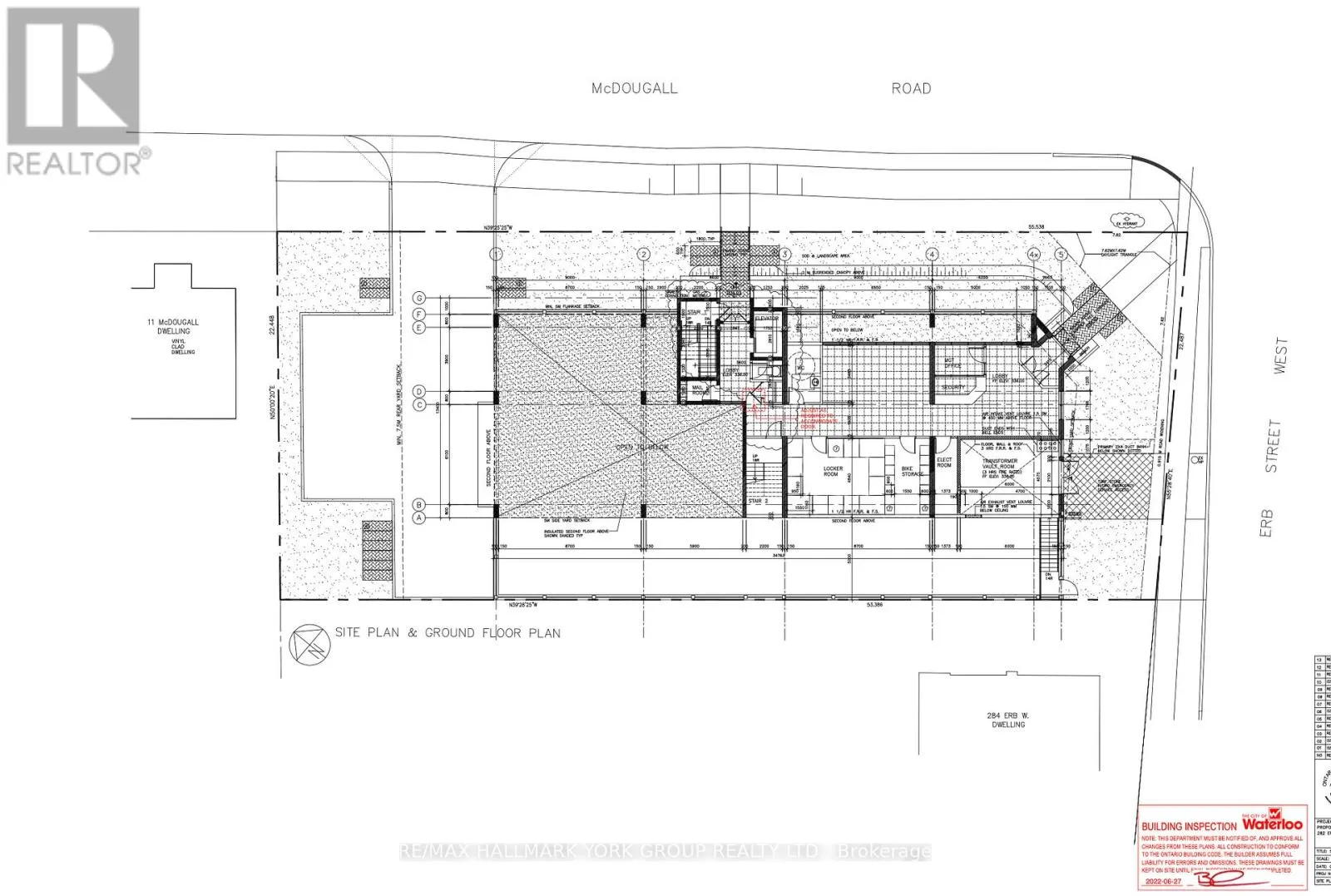
Previously approved site plan for a 35-unit rental/condominium development, zoned RMU-20 (Residential Mixed Use)-a compelling opportunity tailored for small to mid-sized developers targeting a proven, high-demand rental corridor.Positioned just steps from the University of Waterloo and Wilfrid Laurier University, the property is ideally suited for student housing as well as potential senior/retirement-oriented rental concepts. The location offers consistent, year-round rental

demand driven by a strong academic and local community base. Walking distance to both campuses, combined with a direct bus stop at the doorstep, ensures exceptional accessibility and enduring tenant appeal.Offered at land value with existing building permits in place (subject to amendment for updated plans), this is a rare, near shovel-ready development opportunity-allowing investors to accelerate timelines and unlock value with minimal upfront entitlement risk. (id:62650)

Read More
Basic Details
  • Property Type: Residential
  • Listing Type: For Sale
  • Listing ID: X13007430
  • Price: $3,288,000
  • Status: Active
  • Property Sub Type: Vacant Land
  • Office Key: 51515
Features & Appliances
Features
  • Utilities: Electricity, Sewer, Cable
Address Map
  • Location: CA, Ontario, Waterloo, N2L1W3
  • Street: Erb
  • Street Number: 282
  • Street Suffix: Street
  • Longitude: W81° 27' 32.3''
  • Latitude: N43° 27' 26.9''
  • Street Dir Suffix: West
Additional Information
  • Water Source:
  • Lot Size Dimensions: 73.77 x 172.49 FT
Financial
  • Tax Annual Amount: 30385.3
Powered by REALTOR.ca
Listing updated: 2026-05-19 03:07:54
List Your Property
Mortgage Calculator
Get Pre-Approved
$
$
%
%
years
Monthly Payment (Est.) $
Listing Information
  • List Agent Key: 2198072
  • List Office Key: 51515
  • Modification Timestamp: 2026-04-16T17:30:31Z
  • Originating System Name: Toronto Regional Real Estate Board
  • Status Change Timestamp: 2026-04-16T17:16:04Z
Powered by REALTOR.ca
Listing updated: 2026-05-19 03:07:54
REALTOR®, REALTORS®, and the REALTOR® logo are certification marks that are owned by REALTOR® Canada Inc. and licensed exclusively to The Canadian Real Estate Association (CREA). These certification marks identify real estate professionals who are members of CREA and who must abide by CREA’s By‐Laws, Rules, and the REALTOR® Code. The MLS® trademark and the MLS® logo are owned by CREA and identify the quality of services provided by real estate professionals who are members of CREA.

The information contained on this site is based in whole or in part on information that is provided by members of The Canadian Real Estate Association, who are responsible for its accuracy. CREA reproduces and distributes this information as a service for its members and assumes no responsibility for its accuracy.

Website is operated by a brokerage or salesperson who is a member of The Canadian Real Estate Association.

The listing content on this website is protected by copyright and other laws, and is intended solely for the private, non‐commercial use by individuals. Any other reproduction, distribution or use of the content, in whole or in part, is specifically forbidden. The prohibited uses include commercial use, “screen scraping”, “database scraping”, and any other activity intended to collect, store, reorganize or manipulate data on the pages produced by or displayed on this website.

By continuing to use this website and its services, you agree to these

These forms are provided to ComFree’s Unrepresented Sellers as a part of their Mere Posting ComFree Listing Contract.

I acknowledge I can only access these forms as a ComFree customer under contract.

These forms are provided to ComFree’s Unrepresented Sellers as a part of their Mere Posting ComFree Listing Contract and in partnership with Zubic Law.

I acknowledge I can only access these forms as a ComFree customer under contract.

These forms are provided to ComFree’s Unrepresented Sellers as a part of their Mere Posting ComFree Listing Contract and in partnership with Zubic Law.

I acknowledge I can only access these forms as a ComFree customer under contract.

How It Works

1. Purchase Your Package

2. We Ship Your ‘For Sale’ Sign

3. Book Your VR Tour

4. Complete Listing Input Forms

5. We Make Your Listing Live

6. Get Support 7 Days a Week

7. iSOLD!