Share
$1,580,000
British Columbia,Victoria
For Sale Active
2920 Shakespeare St, Victoria, British Columbia V8R4H4
  • 7
  • 4
  • 3,704 Sqft
Contact Seller
Basic Details
Description

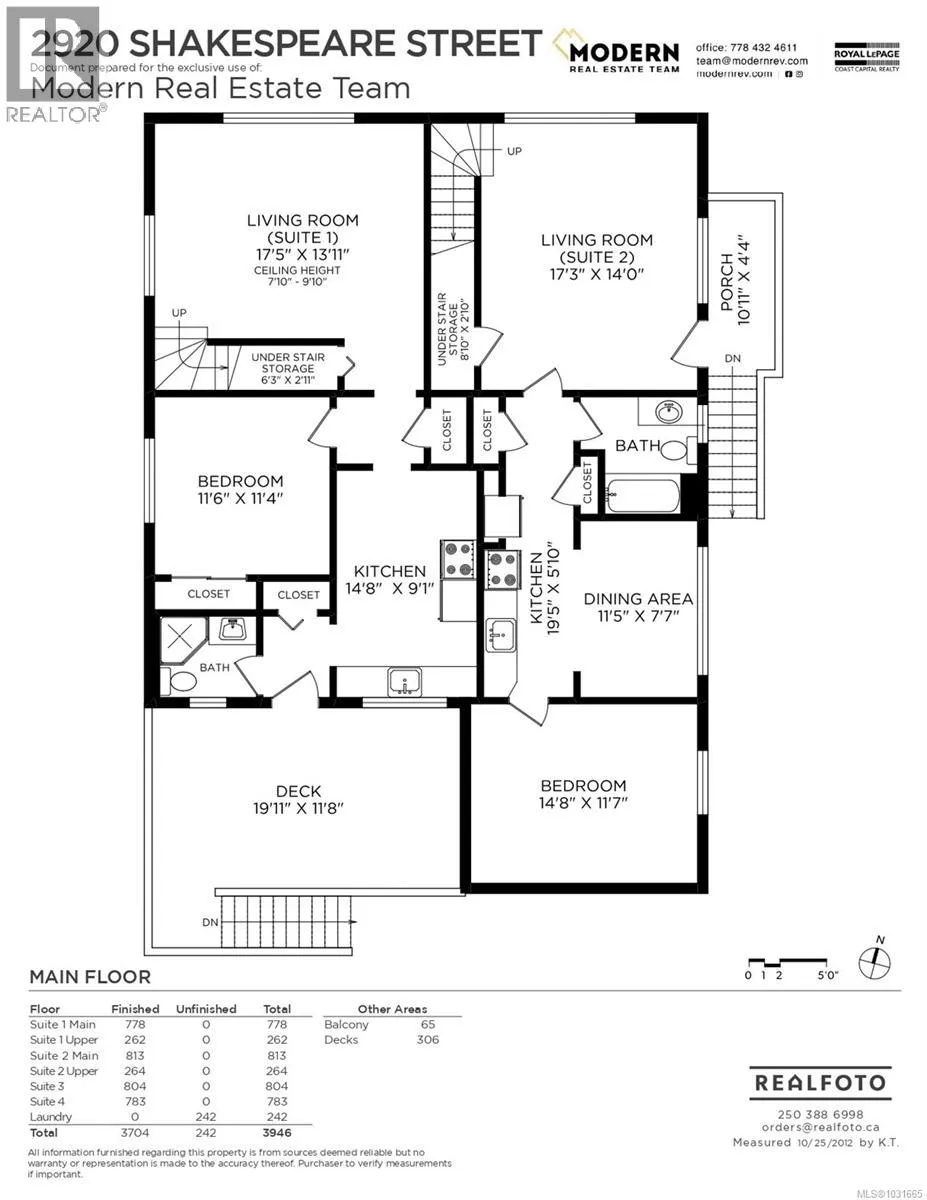
Nestled in a quiet pocket of Oaklands just two blocks from Hillside Mall, this meticulously maintained LEGAL 4-plex is a rare opportunity to secure a strong, income-producing investment. Originally built in the 1920s, the home was moved to its current location and converted to a 4-plex with permits in 1989. Set on a private 13,000+ sq ft panhandle lot, the

property offers three bright 2-bedroom suites and one spacious 1-bedroom + den, each with separate entrances, individual meters, hot water tanks, and outdoor space. Character details include 10-foot ceilings and loft-style bedrooms in the upper units, while the garden suites provide generous layouts filled with natural light. Practical features include 300-amp service, common laundry, updated windows, and a double garage (one side converted to storage). With direct transit to UVIC, Camosun, and downtown, this property offers both immediate rental income and excellent long-term holding value. This property is fully tenanted with a showing schedule, and a minimum of 24 hours is required for viewings. (id:62650)

Read More
Basic Details
  • Property Type: Residential
  • Listing Type: For Sale
  • Listing ID: 1031665
  • Price: $1,580,000
  • Bedrooms: 7
  • Bathrooms: 4
  • Square Footage: 3,704 Sqft
  • Year Built: 1969
  • Status: Active
  • Property Attached Yn: 1
  • Property Sub Type: Single Family
  • Office Key: 53052
Features & Appliances
Features
  • Heating System: Electric, Baseboard heaters
  • Cooling System: None
Address Map
  • Location: CA, British Columbia, Victoria, V8R4H4
  • Street: Shakespeare
  • Street Number: 2920
  • Street Suffix: Street
  • Longitude: W124° 39' 48.9''
  • Latitude: N48° 26' 33.8''
  • Zoning: Residential
Additional Information
  • Lot Features:
  • Lot Size Dimensions: 13035
  • Number Of Units Total: 4
Financial
  • Tax Annual Amount: 8461.28
Powered by REALTOR.ca
Listing updated: 2026-05-13 16:29:11
List Your Property
Mortgage Calculator
Get Pre-Approved
$
$
%
%
years
Monthly Payment (Est.) $
Listing Information
  • List Agent Key: 2220817
  • List Office Key: 53052
  • Modification Timestamp: 2026-04-16T15:36:10Z
  • Originating System Name: Victoria Real Estate Board
  • Status Change Timestamp: 2026-04-16T15:31:30Z
Powered by REALTOR.ca
Listing updated: 2026-05-13 16:29:12
REALTOR®, REALTORS®, and the REALTOR® logo are certification marks that are owned by REALTOR® Canada Inc. and licensed exclusively to The Canadian Real Estate Association (CREA). These certification marks identify real estate professionals who are members of CREA and who must abide by CREA’s By‐Laws, Rules, and the REALTOR® Code. The MLS® trademark and the MLS® logo are owned by CREA and identify the quality of services provided by real estate professionals who are members of CREA.

The information contained on this site is based in whole or in part on information that is provided by members of The Canadian Real Estate Association, who are responsible for its accuracy. CREA reproduces and distributes this information as a service for its members and assumes no responsibility for its accuracy.

Website is operated by a brokerage or salesperson who is a member of The Canadian Real Estate Association.

The listing content on this website is protected by copyright and other laws, and is intended solely for the private, non‐commercial use by individuals. Any other reproduction, distribution or use of the content, in whole or in part, is specifically forbidden. The prohibited uses include commercial use, “screen scraping”, “database scraping”, and any other activity intended to collect, store, reorganize or manipulate data on the pages produced by or displayed on this website.

By continuing to use this website and its services, you agree to these

These forms are provided to ComFree’s Unrepresented Sellers as a part of their Mere Posting ComFree Listing Contract.

I acknowledge I can only access these forms as a ComFree customer under contract.

These forms are provided to ComFree’s Unrepresented Sellers as a part of their Mere Posting ComFree Listing Contract and in partnership with Zubic Law.

I acknowledge I can only access these forms as a ComFree customer under contract.

These forms are provided to ComFree’s Unrepresented Sellers as a part of their Mere Posting ComFree Listing Contract and in partnership with Zubic Law.

I acknowledge I can only access these forms as a ComFree customer under contract.

How It Works

1. Purchase Your Package

2. We Ship Your ‘For Sale’ Sign

3. Book Your VR Tour

4. Complete Listing Input Forms

5. We Make Your Listing Live

6. Get Support 7 Days a Week

7. iSOLD!