Share
$2,199,000
British Columbia,Vancouver
For Sale Active
707 E 63RD AVENUE, Vancouver, British Columbia V5X2K6
  • 8
  • 5
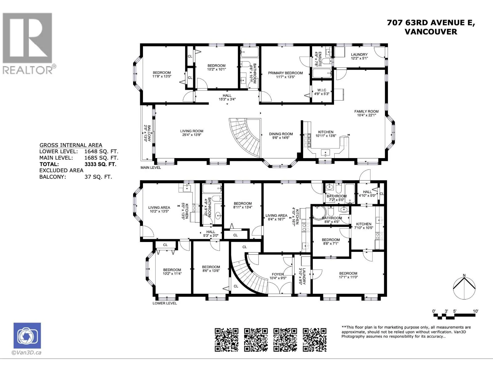
  • 3,333 Sqft
Contact Seller
Basic Details
Description

Great Investment opportunity with an upgraded corner-lot home in East Van! This spacious 8-bed 5-bath house sits on a 4,395 sqft lot, features 3 self-contained rental suites & Airbnb upstairs, offering excellent mortgage helpers with great rental income. In 2024, the home was upgraded with over $100k with new stainless steel appliances, laminated flooring, a high-efficiency on-demand hot water system,

radiant heating ensuring comfort thru out the house. Ideal for families and investors, this house is rezoned for 4-plex, this 3-sided property with back lane access, provides flexibility, modern living and high income potential in one of Vancouver East best neighbourhood. Centrally located, near amenities, transit, and mins from YVR , it’s a move-in-ready investment you don´t want to miss! (id:62650)

Read More
Basic Details
  • Property Type: Residential
  • Listing Type: For Sale
  • Listing ID: R3112489
  • Price: $2,199,000
  • Bedrooms: 8
  • Bathrooms: 5
  • View: View
  • Square Footage: 3,333 Sqft
  • Year Built: 1995
  • Status: Active
  • Property Sub Type: Single Family
  • Office Key: 52494
Features & Appliances
Features
  • Heating System: Baseboard heaters, Radiant heat
  • Basement: Finished, Separate entrance, Unknown
  • Architectural Style: 2 Level
Address Map
  • Location: CA, British Columbia, Vancouver, V5X2K6
  • Street: 63RD
  • Street Number: 707
  • Street Suffix: Avenue
  • Longitude: W124° 54' 33.4''
  • Latitude: N49° 12' 47.4''
  • Street Dir Prefix: East
Additional Information
  • Lot Features:
  • Lot Size Dimensions: 4395
Financial
  • Tax Annual Amount: 9231.21
Powered by REALTOR.ca
Listing updated: 2026-04-17 00:01:04
List Your Property
Mortgage Calculator
Get Pre-Approved
$
$
%
%
years
Monthly Payment (Est.) $
Listing Information
  • List Agent Key: 1566595
  • List Office Key: 52494
  • Modification Timestamp: 2026-04-17T01:11:04Z
  • Originating System Name: Greater Vancouver REALTORS®
  • Status Change Timestamp: 2026-04-17T01:00:38Z
Powered by REALTOR.ca
Listing updated: 2026-04-17 00:01:04
REALTOR®, REALTORS®, and the REALTOR® logo are certification marks that are owned by REALTOR® Canada Inc. and licensed exclusively to The Canadian Real Estate Association (CREA). These certification marks identify real estate professionals who are members of CREA and who must abide by CREA’s By‐Laws, Rules, and the REALTOR® Code. The MLS® trademark and the MLS® logo are owned by CREA and identify the quality of services provided by real estate professionals who are members of CREA.

The information contained on this site is based in whole or in part on information that is provided by members of The Canadian Real Estate Association, who are responsible for its accuracy. CREA reproduces and distributes this information as a service for its members and assumes no responsibility for its accuracy.

Website is operated by a brokerage or salesperson who is a member of The Canadian Real Estate Association.

The listing content on this website is protected by copyright and other laws, and is intended solely for the private, non‐commercial use by individuals. Any other reproduction, distribution or use of the content, in whole or in part, is specifically forbidden. The prohibited uses include commercial use, “screen scraping”, “database scraping”, and any other activity intended to collect, store, reorganize or manipulate data on the pages produced by or displayed on this website.

By continuing to use this website and its services, you agree to these

These forms are provided to ComFree’s Unrepresented Sellers as a part of their Mere Posting ComFree Listing Contract.

I acknowledge I can only access these forms as a ComFree customer under contract.

These forms are provided to ComFree’s Unrepresented Sellers as a part of their Mere Posting ComFree Listing Contract and in partnership with Zubic Law.

I acknowledge I can only access these forms as a ComFree customer under contract.

These forms are provided to ComFree’s Unrepresented Sellers as a part of their Mere Posting ComFree Listing Contract and in partnership with Zubic Law.

I acknowledge I can only access these forms as a ComFree customer under contract.

How It Works

1. Purchase Your Package

2. We Ship Your ‘For Sale’ Sign

3. Book Your VR Tour

4. Complete Listing Input Forms

5. We Make Your Listing Live

6. Get Support 7 Days a Week

7. iSOLD!