Share
$2,099,000
Alberta,Calgary
For Sale Active
120 8 Avenue NW, Calgary, Alberta T2M0A4
  • 5
  • 4
  • 2,771 Sqft
Contact Seller
Basic Details
Description

The Ultimate Inner-City Location – Steps from Crescent Park! Enjoy life just moments from tennis and basketball courts, a skating rink, playground, curling rink, and two baseball diamonds. Tucked away behind Crescent Road in a quiet setting, this home is within walking distance to downtown, Prince’s Island, St. Patrick’s Island, and the Bow River pathways. Bordering Rosedale, it offers stunning

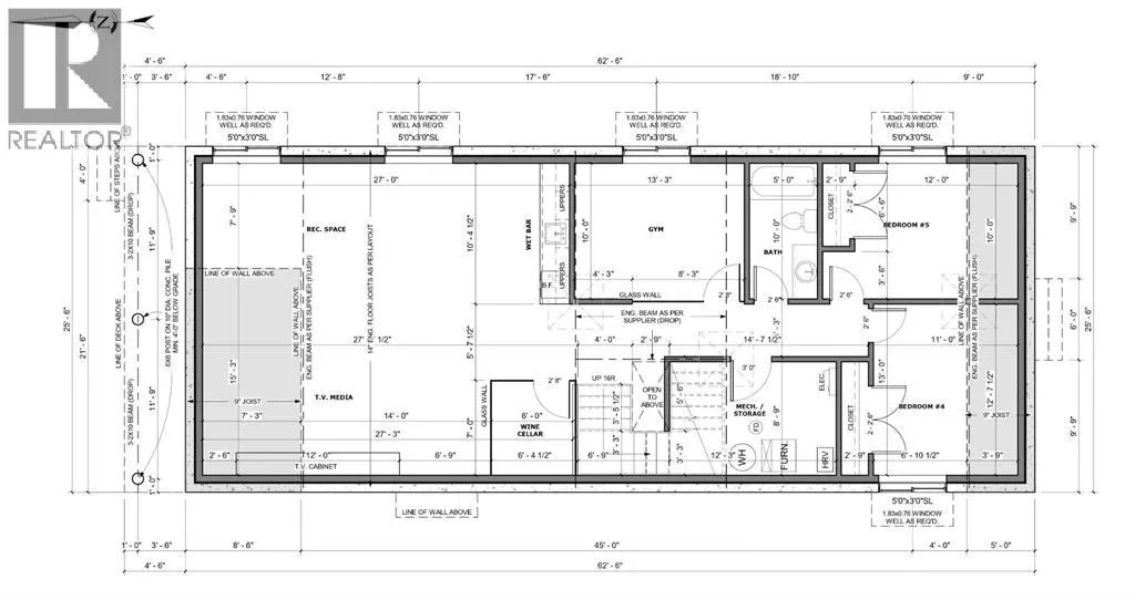
city, river, and mountain views.This custom-built 5-bedroom home boasts over 4,200 sq. ft. of luxurious living space, blending timeless design with modern comfort. Featuring 10’ceilings in basement and main floor and 9’ ceilings on upper floor with all rooms having tray ceilings, a massive chef’s kitchen with quartz counters and a butler’s pantry, high end JENN AIR appliances, black triple pane high efficiency windows, the open-concept layout flows seamlessly into the elegant living room with fireplace and French doors leading to a beautiful backyard oasis. The main floor also includes a spacious office and a formal dining room with city views. Upstairs, enjoy a bonus room, two additional bedrooms, and a private master retreat with barrel ceilings, fireplace, city views, a spa-like 5-piece en-suite, and a walk-in closet. The upstairs laundry adds extra convenience. The fully finished lower level features a media room, bar, gym, wine cellar, two more bedrooms, and a custom 4-piece bath—perfect for family or guests. This is truly a rare find in one of Calgary’s most desirable inner-city locations. (id:62650)

Read More
Basic Details
  • Property Type: Residential
  • Listing Type: For Sale
  • Listing ID: A2301008
  • Price: $2,099,000
  • Bedrooms: 5
  • Bathrooms: 4
  • Half Bathrooms: 1
  • View: View
  • Square Footage: 2,771 Sqft
  • Year Built: 2026
  • Status: Active
  • Property Sub Type: Single Family
  • Office Key: 296851
Features & Appliances
Features
  • Heating System: Forced air, Natural gas
  • Cooling System: Central air conditioning
  • Basement: Finished, Full
  • Fence: Fence
  • Parking: Detached Garage, Other
  • Exterior Features: Brick, Stucco
  • Flooring: Ceramic Tile, Hardwood, Carpeted
  • Fireplaces Total: 1
Address Map
  • Location: CA, Alberta, Calgary, Crescent Heights, T2M0A4
  • Street: 8
  • Street Number: 120
  • Street Suffix: Avenue
  • Longitude: W115° 56' 9.7''
  • Latitude: N51° 3' 36.1''
  • Street Dir Suffix: Northwest
Additional Information
  • Construction Materials:
  • Foundation Details:
  • Lot Features:
  • Lot Size Dimensions: 373.00
  • Stories: 2.0
Powered by REALTOR.ca
Listing updated: 2026-04-20 00:28:06
List Your Property
Mortgage Calculator
Get Pre-Approved
$
$
%
%
years
Monthly Payment (Est.) $
Listing Information
  • List Agent Key: 2248701
  • List Office Key: 296851
  • Modification Timestamp: 2026-04-19T14:40:20Z
  • Originating System Name: Calgary Real Estate Board
  • Status Change Timestamp: 2026-04-19T14:30:26Z
Powered by REALTOR.ca
Listing updated: 2026-04-20 00:28:07
REALTOR®, REALTORS®, and the REALTOR® logo are certification marks that are owned by REALTOR® Canada Inc. and licensed exclusively to The Canadian Real Estate Association (CREA). These certification marks identify real estate professionals who are members of CREA and who must abide by CREA’s By‐Laws, Rules, and the REALTOR® Code. The MLS® trademark and the MLS® logo are owned by CREA and identify the quality of services provided by real estate professionals who are members of CREA.

The information contained on this site is based in whole or in part on information that is provided by members of The Canadian Real Estate Association, who are responsible for its accuracy. CREA reproduces and distributes this information as a service for its members and assumes no responsibility for its accuracy.

Website is operated by a brokerage or salesperson who is a member of The Canadian Real Estate Association.

The listing content on this website is protected by copyright and other laws, and is intended solely for the private, non‐commercial use by individuals. Any other reproduction, distribution or use of the content, in whole or in part, is specifically forbidden. The prohibited uses include commercial use, “screen scraping”, “database scraping”, and any other activity intended to collect, store, reorganize or manipulate data on the pages produced by or displayed on this website.

By continuing to use this website and its services, you agree to these

These forms are provided to ComFree’s Unrepresented Sellers as a part of their Mere Posting ComFree Listing Contract.

I acknowledge I can only access these forms as a ComFree customer under contract.

These forms are provided to ComFree’s Unrepresented Sellers as a part of their Mere Posting ComFree Listing Contract and in partnership with Zubic Law.

I acknowledge I can only access these forms as a ComFree customer under contract.

These forms are provided to ComFree’s Unrepresented Sellers as a part of their Mere Posting ComFree Listing Contract and in partnership with Zubic Law.

I acknowledge I can only access these forms as a ComFree customer under contract.

How It Works

1. Purchase Your Package

2. We Ship Your ‘For Sale’ Sign

3. Book Your VR Tour

4. Complete Listing Input Forms

5. We Make Your Listing Live

6. Get Support 7 Days a Week

7. iSOLD!