Share
$489,900
Newfoundland & Labrador,Bay Bulls
For Sale Active
4-6 Scott Drive, Bay Bulls, Newfoundland & Labrador A0A1C0
  • 3
  • 2
  • 1,290 Sqft
Contact Seller
Basic Details
Description

Welcome to 4-6 Scott Drive, Escape the city without leaving convenience behind. Nestled in the charming coastal community of Bay Bulls, just a 20-minute drive from St. John’s, this stunning new build offers the best of “”around the bay”” living with breathtaking ocean views right from your own property. Sitting on a generous half-acre lot, enjoy the peace and

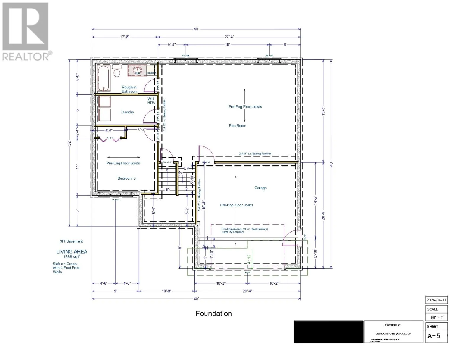
quiet of a true coastal setting while still being minutes from all amenities. Thoughtfully designed, this spacious two-storey home offers an open-concept main level featuring a bright living room, dining area, and a functional open kitchen, all flowing seamlessly to the rear deck. Three generous bedrooms grace the upper level, including a private primary suite with walk-in closet and ensuite, plus a full main bathroom. The attached garage with basement-level access and a full 9-foot basement will be roughed in for a bathroom, recreation room, laundry, and a potential 4th bedroom, offering incredible flexibility for extended family, a home office, or future equity. Whether you’re drawn by the ocean air, the tight-knit community, or the incredible value of owning a brand new home on a half-acre lot with an ocean view, 4-6 Scott Drive is an opportunity not to be missed. Contact today to learn more or to customize your build. (id:62650)

Read More
Basic Details
  • Property Type: Residential
  • Listing Type: For Sale
  • Listing ID: 1296260
  • Price: $489,900
  • Bedrooms: 3
  • Bathrooms: 2
  • View: Ocean view
  • Square Footage: 1,290 Sqft
  • Year Built: 2026
  • Status: Active
  • Property Sub Type: Single Family
  • Office Key: 282247
Features & Appliances
Features
  • Heating System: Electric, Baseboard heaters
  • Parking: Attached Garage
  • Exterior Features: Wood shingles
  • Flooring: Mixed Flooring
  • Sewer: Septic tank
Address Map
  • Location: CA, Newfoundland & Labrador, Bay Bulls, A0A1C0
  • Street: Scott
  • Street Number: 4-6
  • Street Suffix: Drive
  • Longitude: W53° 10' 31.5''
  • Latitude: N47° 19' 29.2''
Additional Information
  • Water Source:
  • Foundation Details:
  • Lot Size Dimensions: 94 x 155 x 130 x 51
  • Stories: 1.0
Powered by REALTOR.ca
Listing updated: 2026-04-22 22:23:15
List Your Property
Mortgage Calculator
Get Pre-Approved
$
$
%
%
years
Monthly Payment (Est.) $
Listing Information
  • List Agent Key: 2102573
  • List Office Key: 282247
  • Modification Timestamp: 2026-04-17T14:30:47Z
  • Originating System Name: Newfoundland & Labrador Association of REALTORS®
  • Status Change Timestamp: 2026-04-17T14:22:50Z
Powered by REALTOR.ca
Listing updated: 2026-04-22 22:23:15
REALTOR®, REALTORS®, and the REALTOR® logo are certification marks that are owned by REALTOR® Canada Inc. and licensed exclusively to The Canadian Real Estate Association (CREA). These certification marks identify real estate professionals who are members of CREA and who must abide by CREA’s By‐Laws, Rules, and the REALTOR® Code. The MLS® trademark and the MLS® logo are owned by CREA and identify the quality of services provided by real estate professionals who are members of CREA.

The information contained on this site is based in whole or in part on information that is provided by members of The Canadian Real Estate Association, who are responsible for its accuracy. CREA reproduces and distributes this information as a service for its members and assumes no responsibility for its accuracy.

Website is operated by a brokerage or salesperson who is a member of The Canadian Real Estate Association.

The listing content on this website is protected by copyright and other laws, and is intended solely for the private, non‐commercial use by individuals. Any other reproduction, distribution or use of the content, in whole or in part, is specifically forbidden. The prohibited uses include commercial use, “screen scraping”, “database scraping”, and any other activity intended to collect, store, reorganize or manipulate data on the pages produced by or displayed on this website.

By continuing to use this website and its services, you agree to these

These forms are provided to ComFree’s Unrepresented Sellers as a part of their Mere Posting ComFree Listing Contract.

I acknowledge I can only access these forms as a ComFree customer under contract.

These forms are provided to ComFree’s Unrepresented Sellers as a part of their Mere Posting ComFree Listing Contract and in partnership with Zubic Law.

I acknowledge I can only access these forms as a ComFree customer under contract.

These forms are provided to ComFree’s Unrepresented Sellers as a part of their Mere Posting ComFree Listing Contract and in partnership with Zubic Law.

I acknowledge I can only access these forms as a ComFree customer under contract.

How It Works

1. Purchase Your Package

2. We Ship Your ‘For Sale’ Sign

3. Book Your VR Tour

4. Complete Listing Input Forms

5. We Make Your Listing Live

6. Get Support 7 Days a Week

7. iSOLD!