Share
$559,900
New Brunswick,Dieppe
For Sale Active
406 Belliveau, Dieppe, New Brunswick E1A6W6
  • 3
  • 3
  • 1,970 Sqft
Contact Seller
Basic Details
Description

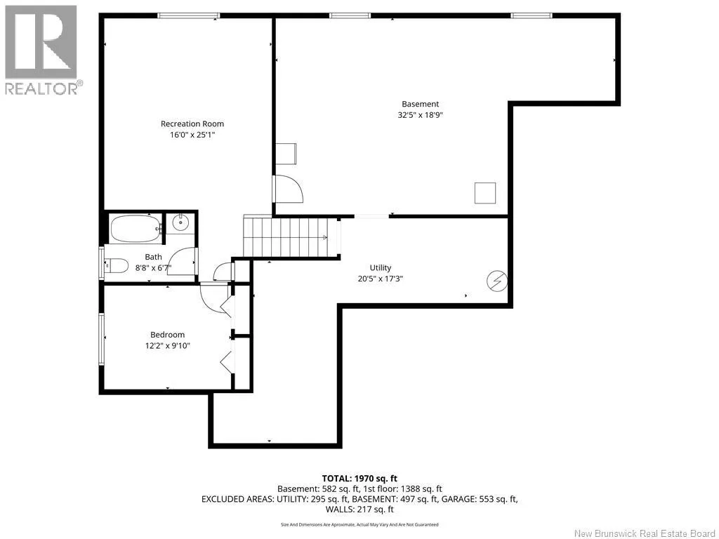
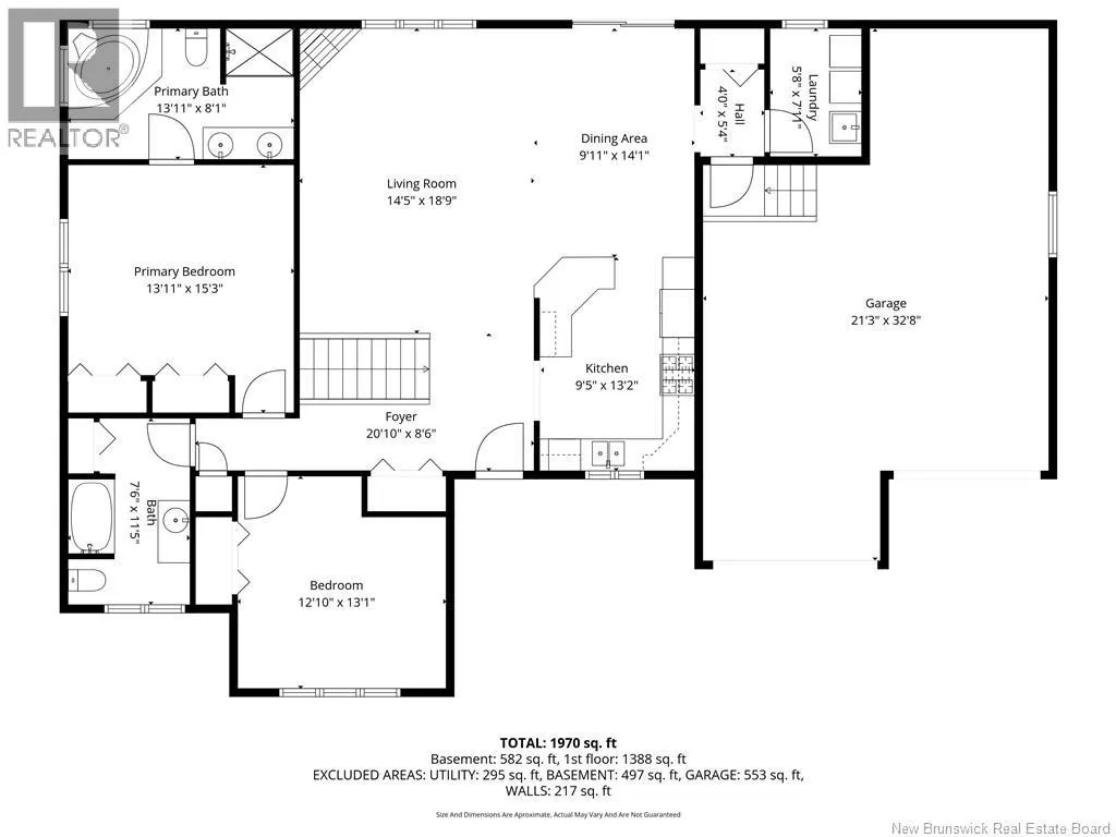
Stunning bungalow located in a sought-after neighbourhood in Dieppe! From the moment you arrive, youll be impressed by the beautiful curb appeal and welcoming front seating area. Step inside through the main entrance and be greeted by a spacious foyer with a double closet. The main floor offers 1,388 sq ft of living space with a bright open-concept layout. The

living and dining areas feature tray ceilings, large windows, and a cozy natural gas fireplace. Patio doors lead to the back deck, perfect for relaxing or entertaining. The kitchen is sure to impress with its bar-top counter, dark cabinetry, and stainless steel appliances. The spacious primary bedroom offers two double closets and a gorgeous ensuite bathroom. A second bedroom, full main bathroom, and convenient laundry room complete this level. The fully finished basement includes a large family room, a third bedroom, a four-piece bathroom, and an unfinished utility/storage area. Outside, youll find a double attached garage, a large backyard, and a spacious deck with storage underneathperfect for enjoying the outdoors. Call for more details! (id:62650)

Read More
Basic Details
  • Property Type: Residential
  • Listing Type: For Sale
  • Listing ID: NB137376
  • Price: $559,900
  • Bedrooms: 3
  • Bathrooms: 3
  • Half Bathrooms: 1
  • Square Footage: 1,970 Sqft
  • Year Built: 2011
  • Status: Active
  • Property Sub Type: Single Family
  • Office Key: 77079
Features & Appliances
Features
  • Heating System: Heat Pump, Natural gas, Stove
  • Cooling System: Heat Pump
  • Fireplace: Gas, Unknown
  • Parking: Garage, Attached Garage
  • Architectural Style: Bungalow
  • Exterior Features: Stone, Vinyl
  • Flooring: Hardwood, Ceramic
  • Sewer: Municipal sewage system
  • Fireplaces Total: 1
Address Map
  • Location: CA, New Brunswick, Dieppe, E1A6W6
  • Longitude: W65° 15' 52''
  • Latitude: N46° 6' 13''
Additional Information
  • Water Source:
  • Foundation Details:
  • Lot Size Dimensions: 0.2
Financial
  • Tax Annual Amount: 9139.72
Powered by REALTOR.ca
Listing updated: 2026-04-21 02:18:28
List Your Property
Mortgage Calculator
Get Pre-Approved
$
$
%
%
years
Monthly Payment (Est.) $
Listing Information
  • List Agent Key: 1718141
  • List Office Key: 77079
  • Modification Timestamp: 2026-04-17T13:30:54Z
  • Originating System Name: New Brunswick REALTORS®
  • Status Change Timestamp: 2026-04-17T13:22:14Z
Powered by REALTOR.ca
Listing updated: 2026-04-21 02:18:29
REALTOR®, REALTORS®, and the REALTOR® logo are certification marks that are owned by REALTOR® Canada Inc. and licensed exclusively to The Canadian Real Estate Association (CREA). These certification marks identify real estate professionals who are members of CREA and who must abide by CREA’s By‐Laws, Rules, and the REALTOR® Code. The MLS® trademark and the MLS® logo are owned by CREA and identify the quality of services provided by real estate professionals who are members of CREA.

The information contained on this site is based in whole or in part on information that is provided by members of The Canadian Real Estate Association, who are responsible for its accuracy. CREA reproduces and distributes this information as a service for its members and assumes no responsibility for its accuracy.

Website is operated by a brokerage or salesperson who is a member of The Canadian Real Estate Association.

The listing content on this website is protected by copyright and other laws, and is intended solely for the private, non‐commercial use by individuals. Any other reproduction, distribution or use of the content, in whole or in part, is specifically forbidden. The prohibited uses include commercial use, “screen scraping”, “database scraping”, and any other activity intended to collect, store, reorganize or manipulate data on the pages produced by or displayed on this website.

By continuing to use this website and its services, you agree to these

These forms are provided to ComFree’s Unrepresented Sellers as a part of their Mere Posting ComFree Listing Contract.

I acknowledge I can only access these forms as a ComFree customer under contract.

These forms are provided to ComFree’s Unrepresented Sellers as a part of their Mere Posting ComFree Listing Contract and in partnership with Zubic Law.

I acknowledge I can only access these forms as a ComFree customer under contract.

These forms are provided to ComFree’s Unrepresented Sellers as a part of their Mere Posting ComFree Listing Contract and in partnership with Zubic Law.

I acknowledge I can only access these forms as a ComFree customer under contract.

How It Works

1. Purchase Your Package

2. We Ship Your ‘For Sale’ Sign

3. Book Your VR Tour

4. Complete Listing Input Forms

5. We Make Your Listing Live

6. Get Support 7 Days a Week

7. iSOLD!