Share
$1,158,000
British Columbia,Vancouver
For Sale Active
72 3180 58TH AVENUE, Vancouver, British Columbia V5S3S8
  • 4
  • 4
  • 2,039 Sqft
Basic Details
Description

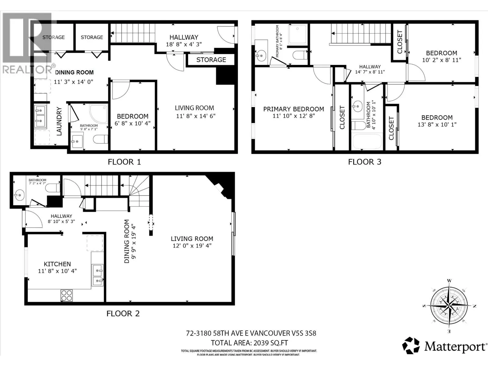
Over 2,000 sq.ft., SOUTH-NORTH Facing! Beautifully updated 3-level, 4-bedroom, 3.5-bathroom townhome offering exceptional space and comfort. Recent upgrades include kitchen, bathrooms, flooring, windows, and appliances. Bright living/dining areas feature quality flooring and a cozy gas fireplace. The kitchen with eating area overlooks a private greenbelt. Generous-sized bedrooms including a primary with updated ensuite. The lower level offers excellent flexibility-large rec

room,1 bedroom, new full bathroom, ideal for extended family or RENT to a student as a MORTGAGE HELPER. A rare townhome that truly lives like a single detached home. Move-in ready and shown with pride. Open April 18 & 19, 2-4 PM (id:62650)

Read More
Basic Details
  • Property Type: Residential
  • Listing Type: For Sale
  • Listing ID: R3112911
  • Price: $1,158,000
  • Bedrooms: 4
  • Bathrooms: 4
  • Square Footage: 2,039 Sqft
  • Year Built: 1973
  • Status: Active
  • Property Attached Yn: 1
  • Property Sub Type: Single Family
  • Office Key: 277518
Features & Appliances
Features
  • Heating System: Forced air, Natural gas
  • Basement: Unknown, Partially finished
  • Parking: Visitor Parking
Address Map
  • Location: CA, British Columbia, Vancouver, V5S3S8
  • Street: 3180 58TH
  • Street Number: 72
  • Street Suffix: Avenue
  • Longitude: W124° 57' 37.9''
  • Latitude: N49° 13' 0.8''
Additional Information
  • Lot Features:
Financial
  • Association Fee: 667
  • Association Fee Frequency: Monthly
  • Tax Annual Amount: 3423
Powered by REALTOR.ca
Listing updated: 2026-04-21 10:29:54
List Your Property
Mortgage Calculator
Get Pre-Approved
$
$
%
%
years
Monthly Payment (Est.) $
Listing Information
  • List Agent Key: 1909156
  • List Office Key: 277518
  • Modification Timestamp: 2026-04-20T15:16:34Z
  • Originating System Name: Greater Vancouver REALTORS®
  • Status Change Timestamp: 2026-04-20T15:07:02Z
Powered by REALTOR.ca
Listing updated: 2026-04-21 10:29:54
REALTOR®, REALTORS®, and the REALTOR® logo are certification marks that are owned by REALTOR® Canada Inc. and licensed exclusively to The Canadian Real Estate Association (CREA). These certification marks identify real estate professionals who are members of CREA and who must abide by CREA’s By‐Laws, Rules, and the REALTOR® Code. The MLS® trademark and the MLS® logo are owned by CREA and identify the quality of services provided by real estate professionals who are members of CREA.

The information contained on this site is based in whole or in part on information that is provided by members of The Canadian Real Estate Association, who are responsible for its accuracy. CREA reproduces and distributes this information as a service for its members and assumes no responsibility for its accuracy.

Website is operated by a brokerage or salesperson who is a member of The Canadian Real Estate Association.

The listing content on this website is protected by copyright and other laws, and is intended solely for the private, non‐commercial use by individuals. Any other reproduction, distribution or use of the content, in whole or in part, is specifically forbidden. The prohibited uses include commercial use, “screen scraping”, “database scraping”, and any other activity intended to collect, store, reorganize or manipulate data on the pages produced by or displayed on this website.

By continuing to use this website and its services, you agree to these

These forms are provided to ComFree’s Unrepresented Sellers as a part of their Mere Posting ComFree Listing Contract.

I acknowledge I can only access these forms as a ComFree customer under contract.

These forms are provided to ComFree’s Unrepresented Sellers as a part of their Mere Posting ComFree Listing Contract and in partnership with Zubic Law.

I acknowledge I can only access these forms as a ComFree customer under contract.

These forms are provided to ComFree’s Unrepresented Sellers as a part of their Mere Posting ComFree Listing Contract and in partnership with Zubic Law.

I acknowledge I can only access these forms as a ComFree customer under contract.

How It Works

1. Purchase Your Package

2. We Ship Your ‘For Sale’ Sign

3. Book Your VR Tour

4. Complete Listing Input Forms

5. We Make Your Listing Live

6. Get Support 7 Days a Week

7. iSOLD!