Share
$510,000
Ontario,Clarence-Rockland
For Sale Active
2416 GRAY CRESCENT, Clarence-Rockland, Ontario K4K0H3
  • 3
  • 2
  • 1500 - 2000Square Feet
Contact Seller
Basic Details
Description

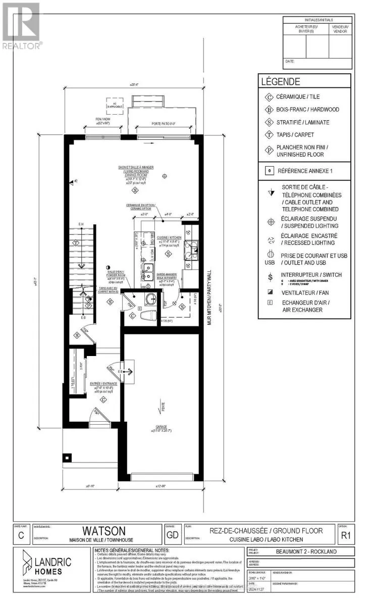
**OPEN HOUSE SUNDAY FROM 2 – 4 PM @ 235 BOURDEAU BD, LIMOGES**Welcome to Beaumont, Morris Village – Townhouses! Discover a higher standard of living with these to-be-built luxury townhomes by Landric Homes (aka: the multi-award-winning ‘Construction LaVérendrye’ in QC). Renowned for high-quality builds, thoughtful designs, and attention to detail – Landric Homes delivers homes that truly stand apart. This

end-unit townhome offer an immense 1,687 sq. ft. above ground, tall 9′ ceilings, oversized 8′ patio doors, concrete block party wall (superior sound proofing), and abundant natural light throughout. The main floor features an open-concept layout with a spacious living / dining area, and a chef-inspired kitchen, complete with walk-in pantry and designer-selected high-end finishes. The 2nd level hosts 3 generous bedrooms, 1 full bathroom (added ensuite optional), and a convenient laundry room. The primary bedroom impresses with an oversized walk-in closet, and cheater access to the luxurious 4-piece bathroom (featuring a standalone bathtub, and glass shower). The unfinished basement awaits your personal touch (fully finished basement optional). Model home tours available in Limoges. Price, specs & details may be subject to change without notice. 3D renderings & photos are of previously built townhouses (exact specs, layout & finishes may differ). *Price shown is net of New Rebates, such New Rebates are subject to the enactment of federal and provincial legislation and the purchase price is at all times subject to the terms of any APS between the builder and the buyer.* (id:62650)

Read More
Basic Details
  • Property Type: Residential
  • Listing Type: For Sale
  • Listing ID: X13013476
  • Price: $510,000
  • Bedrooms: 3
  • Bathrooms: 2
  • Half Bathrooms: 1
  • Square Footage: 1500 - 2000 Sqft
  • Status: Active
  • Property Attached Yn: 1
  • Property Sub Type: Single Family
  • Office Key: 291884
Features & Appliances
Features
  • Heating System: Forced air, Natural gas
  • Cooling System: None, Air exchanger
  • Basement: Full, Unfinished
  • Parking: Garage, Attached Garage
  • Exterior Features: Brick, Vinyl siding
  • Sewer: Sanitary sewer
  • Utilities: Electricity, Sewer, Cable
Address Map
  • Location: CA, Ontario, Clarence-Rockland, K4K0H3
  • Street: Gray
  • Street Number: 2416
  • Street Suffix: Crescent
  • Longitude: W76° 44' 21.3''
  • Latitude: N45° 31' 29.3''
Additional Information
  • Water Source:
  • Foundation Details:
  • Stories: 2.0
Powered by REALTOR.ca
Listing updated: 2026-04-17 23:23:39
List Your Property
Mortgage Calculator
Get Pre-Approved
$
$
%
%
years
Monthly Payment (Est.) $
Listing Information
  • List Agent Key: 2216068
  • List Office Key: 291884
  • Modification Timestamp: 2026-04-17T19:16:08Z
  • Originating System Name: Ottawa Real Estate Board
  • Status Change Timestamp: 2026-04-17T19:05:25Z
Powered by REALTOR.ca
Listing updated: 2026-04-17 23:23:40
REALTOR®, REALTORS®, and the REALTOR® logo are certification marks that are owned by REALTOR® Canada Inc. and licensed exclusively to The Canadian Real Estate Association (CREA). These certification marks identify real estate professionals who are members of CREA and who must abide by CREA’s By‐Laws, Rules, and the REALTOR® Code. The MLS® trademark and the MLS® logo are owned by CREA and identify the quality of services provided by real estate professionals who are members of CREA.

The information contained on this site is based in whole or in part on information that is provided by members of The Canadian Real Estate Association, who are responsible for its accuracy. CREA reproduces and distributes this information as a service for its members and assumes no responsibility for its accuracy.

Website is operated by a brokerage or salesperson who is a member of The Canadian Real Estate Association.

The listing content on this website is protected by copyright and other laws, and is intended solely for the private, non‐commercial use by individuals. Any other reproduction, distribution or use of the content, in whole or in part, is specifically forbidden. The prohibited uses include commercial use, “screen scraping”, “database scraping”, and any other activity intended to collect, store, reorganize or manipulate data on the pages produced by or displayed on this website.

By continuing to use this website and its services, you agree to these

These forms are provided to ComFree’s Unrepresented Sellers as a part of their Mere Posting ComFree Listing Contract.

I acknowledge I can only access these forms as a ComFree customer under contract.

These forms are provided to ComFree’s Unrepresented Sellers as a part of their Mere Posting ComFree Listing Contract and in partnership with Zubic Law.

I acknowledge I can only access these forms as a ComFree customer under contract.

These forms are provided to ComFree’s Unrepresented Sellers as a part of their Mere Posting ComFree Listing Contract and in partnership with Zubic Law.

I acknowledge I can only access these forms as a ComFree customer under contract.

How It Works

1. Purchase Your Package

2. We Ship Your ‘For Sale’ Sign

3. Book Your VR Tour

4. Complete Listing Input Forms

5. We Make Your Listing Live

6. Get Support 7 Days a Week

7. iSOLD!