Share
$149,000
New Brunswick,Saint John
For Sale Active
109 Topeka Street, Saint John, New Brunswick E2J1J5
  • 2
  • 1
  • 1,250 Sqft
Contact Seller
Basic Details
Description

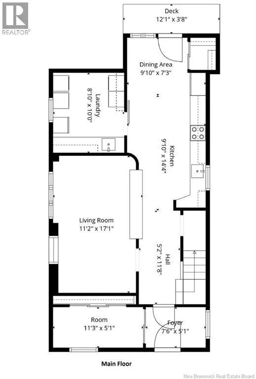
This property presents a fantastic investment opportunity for those looking to add value and customize a home to their vision. Situated in a desirable location, this 2-bedroom, 1-bathroom residence offers strong potential with some TLC. The layout features a unique setup with a vanity in the primary bedroom, adding convenience and flexibility. The home sits on a generously sized lot

comprised of four separate PIDs, providing ample space and future development possibilities. Whether youre an investor, renovator, or first-time buyer looking to build equity, this property offers endless potential. With its great location and sizable land parcel, its an excellent chance to create something special. Dont miss this opportunity to transform this property into a valuable asset. (id:62650)

Read More
Basic Details
  • Property Type: Residential
  • Listing Type: For Sale
  • Listing ID: NB136644
  • Price: $149,000
  • Bedrooms: 2
  • Bathrooms: 1
  • Square Footage: 1,250 Sqft
  • Status: Active
  • Property Sub Type: Single Family
  • Office Key: 51409
Features & Appliances
Features
  • Heating System: Electric
  • Architectural Style: 2 Level
  • Exterior Features: Wood
  • Flooring: Laminate, Hardwood, Carpeted, Ceramic
  • Sewer: Municipal sewage system
Address Map
  • Location: CA, New Brunswick, Saint John, E2J1J5
  • Longitude: W67° 58' 1.5''
  • Latitude: N45° 17' 2.6''
Additional Information
  • Water Source:
  • Foundation Details:
  • Lot Size Dimensions: 232
Financial
  • Tax Annual Amount: 1278
Powered by REALTOR.ca
Listing updated: 2026-04-21 01:50:26
List Your Property
Mortgage Calculator
Get Pre-Approved
$
$
%
%
years
Monthly Payment (Est.) $
Listing Information
  • List Agent Key: 1976359
  • List Office Key: 51409
  • Modification Timestamp: 2026-04-17T13:30:54Z
  • Originating System Name: New Brunswick REALTORS®
  • Status Change Timestamp: 2026-04-17T13:22:22Z
Powered by REALTOR.ca
Listing updated: 2026-04-21 01:50:27
REALTOR®, REALTORS®, and the REALTOR® logo are certification marks that are owned by REALTOR® Canada Inc. and licensed exclusively to The Canadian Real Estate Association (CREA). These certification marks identify real estate professionals who are members of CREA and who must abide by CREA’s By‐Laws, Rules, and the REALTOR® Code. The MLS® trademark and the MLS® logo are owned by CREA and identify the quality of services provided by real estate professionals who are members of CREA.

The information contained on this site is based in whole or in part on information that is provided by members of The Canadian Real Estate Association, who are responsible for its accuracy. CREA reproduces and distributes this information as a service for its members and assumes no responsibility for its accuracy.

Website is operated by a brokerage or salesperson who is a member of The Canadian Real Estate Association.

The listing content on this website is protected by copyright and other laws, and is intended solely for the private, non‐commercial use by individuals. Any other reproduction, distribution or use of the content, in whole or in part, is specifically forbidden. The prohibited uses include commercial use, “screen scraping”, “database scraping”, and any other activity intended to collect, store, reorganize or manipulate data on the pages produced by or displayed on this website.

By continuing to use this website and its services, you agree to these

These forms are provided to ComFree’s Unrepresented Sellers as a part of their Mere Posting ComFree Listing Contract.

I acknowledge I can only access these forms as a ComFree customer under contract.

These forms are provided to ComFree’s Unrepresented Sellers as a part of their Mere Posting ComFree Listing Contract and in partnership with Zubic Law.

I acknowledge I can only access these forms as a ComFree customer under contract.

These forms are provided to ComFree’s Unrepresented Sellers as a part of their Mere Posting ComFree Listing Contract and in partnership with Zubic Law.

I acknowledge I can only access these forms as a ComFree customer under contract.

How It Works

1. Purchase Your Package

2. We Ship Your ‘For Sale’ Sign

3. Book Your VR Tour

4. Complete Listing Input Forms

5. We Make Your Listing Live

6. Get Support 7 Days a Week

7. iSOLD!