Share
$599,999
Nova Scotia,Labelle
For Sale Active
178 Tri Lake Drive, Labelle, Nova Scotia B0T1E0
  • 3
  • 2
  • 1,500 Sqft
Contact Seller
Basic Details
Description

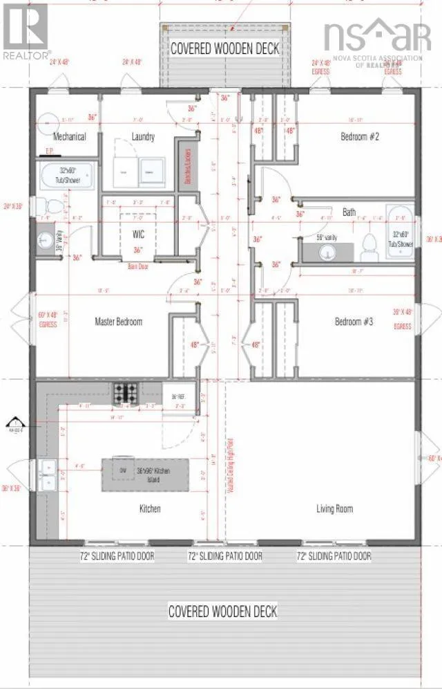
Be the first to enjoy this brand-new lakefront home, currently under construction to be completed by the end of June, perfectly timed to make the most of summer. With 3 bedrooms, 2 full bathrooms, and 1,500 sq. ft. of thoughtfully designed living space, this home blends comfort, efficiency, and outdoor lifestyle. Set on a 0.85 acre lot with 89

of lake frontage on Beaver Dam Lake suitable for swimming, kayaking, fishing or motorized boats. The main living area is a showstopper, featuring soaring 18 cathedral ceilings and a large wall of patio doors (5, 10, 5) with windows above that flood the space with natural light and frame beautiful lake views. Step outside to your 12 x 36 covered deckperfect for relaxing, entertaining, soaking in the peaceful waterfront setting and watching stunning sunsets over the lake. Built for low-maintenance, worry-free living, the exterior features vinyl siding, a metal roof, and sits on an energy-efficient ICF frost wall with concrete slab. Inside, youll find year-round comfort with an 18,000 BTU ductless heat pump, complemented by a WETT-certified wood stove. Appliances included. Constructed by an Atlantic Home Warranty registered builder this home comes with a 10 year warranty for peace of mind. Step outside and immerse yourself in everything this area has to offer. With over 52 km of gravel roads, its a dream setting for walking, biking, or ATV adventures. Whether its long summer days on the water or quiet fall rides through the trees, every season brings something special. This sought-after, well established cottage country community offers year-round access and is quickly becoming home to more full-time residents looking to embrace a relaxed, nature-filled lifestyle. Dont miss your chance to own a brand-new lakefront retreatready just in time to enjoy the very best of summer. (id:62650)

Read More
Basic Details
  • Property Type: Residential
  • Listing Type: For Sale
  • Listing ID: 202607819
  • Price: $599,999
  • Bedrooms: 3
  • Bathrooms: 2
  • View: Lake view
  • Square Footage: 1,500 Sqft
  • Status: Active
  • Property Sub Type: Single Family
  • Office Key: 56193
Features & Appliances
Features
  • Cooling System: Heat Pump
  • Basement: None
  • Parking: Gravel
  • Architectural Style: Bungalow
  • Exterior Features: Vinyl
  • Flooring: Laminate, Ceramic Tile, Tile
  • Sewer: Septic System
  • Waterfront Features: Waterfront on lake
Address Map
  • Location: CA, Nova Scotia, Labelle, B0T1E0
  • Street: Tri Lake
  • Street Number: 178
  • Street Suffix: Drive
  • Longitude: W65° 10' 59.6''
  • Latitude: N44° 19' 57.3''
Additional Information
  • Water Source:
  • Accessibility Features:
  • Lot Features:
  • Lot Size Dimensions: 0.854
  • Stories: 1.0
Powered by REALTOR.ca
Listing updated: 2026-04-27 03:23:22
List Your Property
Mortgage Calculator
Get Pre-Approved
$
$
%
%
years
Monthly Payment (Est.) $
Listing Information
  • List Agent Key: 2212046
  • List Office Key: 56193
  • Modification Timestamp: 2026-04-21T14:20:45Z
  • Originating System Name: Nova Scotia Association of REALTORS®
  • Status Change Timestamp: 2026-04-21T14:18:31Z
Powered by REALTOR.ca
Listing updated: 2026-04-27 03:23:22
REALTOR®, REALTORS®, and the REALTOR® logo are certification marks that are owned by REALTOR® Canada Inc. and licensed exclusively to The Canadian Real Estate Association (CREA). These certification marks identify real estate professionals who are members of CREA and who must abide by CREA’s By‐Laws, Rules, and the REALTOR® Code. The MLS® trademark and the MLS® logo are owned by CREA and identify the quality of services provided by real estate professionals who are members of CREA.

The information contained on this site is based in whole or in part on information that is provided by members of The Canadian Real Estate Association, who are responsible for its accuracy. CREA reproduces and distributes this information as a service for its members and assumes no responsibility for its accuracy.

Website is operated by a brokerage or salesperson who is a member of The Canadian Real Estate Association.

The listing content on this website is protected by copyright and other laws, and is intended solely for the private, non‐commercial use by individuals. Any other reproduction, distribution or use of the content, in whole or in part, is specifically forbidden. The prohibited uses include commercial use, “screen scraping”, “database scraping”, and any other activity intended to collect, store, reorganize or manipulate data on the pages produced by or displayed on this website.

By continuing to use this website and its services, you agree to these

These forms are provided to ComFree’s Unrepresented Sellers as a part of their Mere Posting ComFree Listing Contract.

I acknowledge I can only access these forms as a ComFree customer under contract.

These forms are provided to ComFree’s Unrepresented Sellers as a part of their Mere Posting ComFree Listing Contract and in partnership with Zubic Law.

I acknowledge I can only access these forms as a ComFree customer under contract.

These forms are provided to ComFree’s Unrepresented Sellers as a part of their Mere Posting ComFree Listing Contract and in partnership with Zubic Law.

I acknowledge I can only access these forms as a ComFree customer under contract.

How It Works

1. Purchase Your Package

2. We Ship Your ‘For Sale’ Sign

3. Book Your VR Tour

4. Complete Listing Input Forms

5. We Make Your Listing Live

6. Get Support 7 Days a Week

7. iSOLD!