Share
$1,600
Ontario,Hamilton (Central)
For Sale Active
1306 - 206 KING STREET W, Hamilton (Central), Ontario L8P1A5
  • 1
  • 1
  • 500 - 599Square Feet
Contact Seller
Basic Details
Description

Experience elevated urban living in this stunning top-floor residence at Radio Arts in the heart of Hamilton. Positioned on the highest level of the building, this 1-bedroom, 1-bathroom suite offers an exclusive penthouse feel with impressive views and an abundance of natural light.Thoughtfully designed with a modern open-concept layout, the unit features sleek finishes, a contemporary kitchen with stainless steel

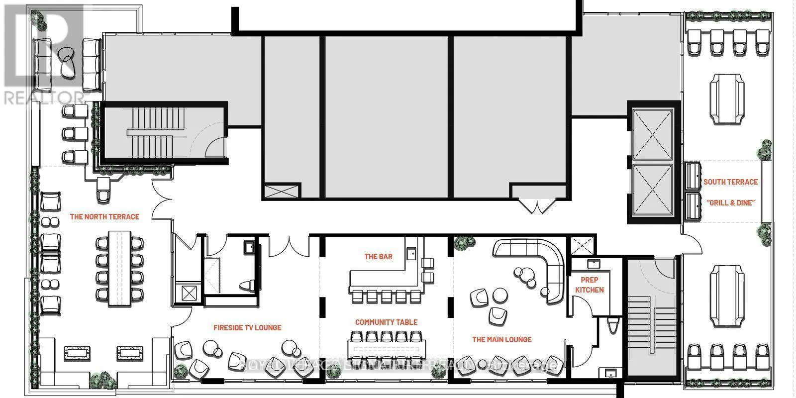
appliances, and a spacious bedroom retreat. The elegant Juliet balcony allows you to enjoy fresh air and city views while maintaining a seamless indoor-outdoor connection.Residents enjoy access to premium amenities including a co-work & Wi-Fi lounge, a penthouse social lounge complete with fireplace, and beautifully designed rooftop terraces with BBQ areas-perfect for entertaining or unwinding.Ideal for professionals or investors, this unit offers a low-maintenance lifestyle in a brand new, highly anticipated development. Located just steps from vibrant dining, shopping, transit, and downtown amenities, Radio Arts combines convenience with contemporary design.A rare opportunity to live in a top-floor unit in one of Hamilton’s most exciting new buildings! (id:62650)

Read More
Basic Details
  • Property Type: Residential
  • Listing Type: For Sale
  • Listing ID: X13014074
  • Price: $1,600
  • Bedrooms: 1
  • Bathrooms: 1
  • Square Footage: 500 - 599 Sqft
  • Status: Active
  • Property Attached Yn: 1
  • Property Sub Type: Single Family
  • Office Key: 51317
Features & Appliances
Features
  • Heating System: Forced air, Natural gas
  • Cooling System: Central air conditioning
  • Basement: None
  • Parking: Garage, Underground
  • Exterior Features: Brick
Address Map
  • Location: CA, Ontario, Hamilton (Central), L8P1A5
  • Street: King
  • Street Number: 206
  • Street Suffix: Street
  • Longitude: W80° 7' 28.6''
  • Latitude: N43° 15' 31''
  • Street Dir Suffix: West
Additional Information
  • Community Features:
  • Lot Features:
Powered by REALTOR.ca
Listing updated: 2026-04-19 10:21:50
List Your Property
Mortgage Calculator
Get Pre-Approved
$
$
%
%
years
Monthly Payment (Est.) $
Listing Information
  • List Agent Key: 2162282
  • List Office Key: 51317
  • Modification Timestamp: 2026-04-17T20:50:18Z
  • Originating System Name: Toronto Regional Real Estate Board
  • Status Change Timestamp: 2026-04-17T20:42:29Z
Powered by REALTOR.ca
Listing updated: 2026-04-19 10:21:51
REALTOR®, REALTORS®, and the REALTOR® logo are certification marks that are owned by REALTOR® Canada Inc. and licensed exclusively to The Canadian Real Estate Association (CREA). These certification marks identify real estate professionals who are members of CREA and who must abide by CREA’s By‐Laws, Rules, and the REALTOR® Code. The MLS® trademark and the MLS® logo are owned by CREA and identify the quality of services provided by real estate professionals who are members of CREA.

The information contained on this site is based in whole or in part on information that is provided by members of The Canadian Real Estate Association, who are responsible for its accuracy. CREA reproduces and distributes this information as a service for its members and assumes no responsibility for its accuracy.

Website is operated by a brokerage or salesperson who is a member of The Canadian Real Estate Association.

The listing content on this website is protected by copyright and other laws, and is intended solely for the private, non‐commercial use by individuals. Any other reproduction, distribution or use of the content, in whole or in part, is specifically forbidden. The prohibited uses include commercial use, “screen scraping”, “database scraping”, and any other activity intended to collect, store, reorganize or manipulate data on the pages produced by or displayed on this website.

By continuing to use this website and its services, you agree to these

These forms are provided to ComFree’s Unrepresented Sellers as a part of their Mere Posting ComFree Listing Contract.

I acknowledge I can only access these forms as a ComFree customer under contract.

These forms are provided to ComFree’s Unrepresented Sellers as a part of their Mere Posting ComFree Listing Contract and in partnership with Zubic Law.

I acknowledge I can only access these forms as a ComFree customer under contract.

These forms are provided to ComFree’s Unrepresented Sellers as a part of their Mere Posting ComFree Listing Contract and in partnership with Zubic Law.

I acknowledge I can only access these forms as a ComFree customer under contract.

How It Works

1. Purchase Your Package

2. We Ship Your ‘For Sale’ Sign

3. Book Your VR Tour

4. Complete Listing Input Forms

5. We Make Your Listing Live

6. Get Support 7 Days a Week

7. iSOLD!