Share
$229,900
British Columbia,Kamloops
For Sale Active
2805 Westsyde Road Unit# 1, Kamloops, British Columbia V2B7E1
  • 2
  • 1
  • 924 Sqft
Contact Seller
Basic Details
Description

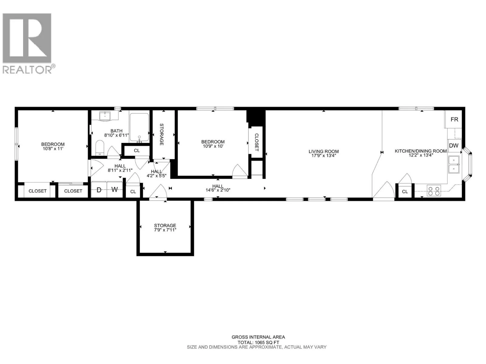
Great floor plan! Spacious over 900 sq.ft. home featuring an open-concept layout with a bright kitchen. Generous living room is perfect for everyday living and entertaining. This well-designed home offers 2 bedrooms and a large, functional bathroom with great overall flow. Recent updates include new wide-plank flooring in the living room, hallway, and a primary bedroom. Situated on the largest

lot in the park. Enjoy ample parking, a spacious yard, and a raised garden area at the back. Ideally positioned as the first lot with added privacy on one side next to open space. The fully fenced yard is perfect for children or your dogs. Relax year-round on the large, covered sundeck – rain or shine! This is a fantastic opportunity & must see! Measurements to be verified by buyer. (id:62650)

Read More
Basic Details
  • Property Type: Residential
  • Listing Type: For Sale
  • Listing ID: 10383924
  • Price: $229,900
  • Bedrooms: 2
  • Bathrooms: 1
  • Square Footage: 924 Sqft
  • Year Built: 1980
  • Status: Active
  • Property Sub Type: Single Family
  • Roof:
  • Office Key: 54763
Features & Appliances
Features
  • Heating System: Forced air
  • Cooling System: Central air conditioning
  • Sewer: Municipal sewage system
Address Map
  • Location: CA, British Columbia, Kamloops, V2B7E1
  • Street: Westsyde
  • Street Number: 2805
  • Street Suffix: Road
  • Longitude: W121° 39' 4.8''
  • Latitude: N50° 45' 12.9''
Additional Information
  • Water Source:
  • Stories: 1.0
Financial
  • Association Fee: 675
  • Association Fee Frequency: Monthly
  • Association Fee Includes:
  • Tax Annual Amount: 1288.76
Powered by REALTOR.ca
Listing updated: 2026-04-21 22:05:52
List Your Property
Mortgage Calculator
Get Pre-Approved
$
$
%
%
years
Monthly Payment (Est.) $
Listing Information
  • List Agent Key: 1535257
  • List Office Key: 54763
  • Modification Timestamp: 2026-04-20T16:56:01Z
  • Originating System Name: Association of Interior REALTORS®
  • Status Change Timestamp: 2026-04-20T16:49:11Z
Powered by REALTOR.ca
Listing updated: 2026-04-21 22:05:52
REALTOR®, REALTORS®, and the REALTOR® logo are certification marks that are owned by REALTOR® Canada Inc. and licensed exclusively to The Canadian Real Estate Association (CREA). These certification marks identify real estate professionals who are members of CREA and who must abide by CREA’s By‐Laws, Rules, and the REALTOR® Code. The MLS® trademark and the MLS® logo are owned by CREA and identify the quality of services provided by real estate professionals who are members of CREA.

The information contained on this site is based in whole or in part on information that is provided by members of The Canadian Real Estate Association, who are responsible for its accuracy. CREA reproduces and distributes this information as a service for its members and assumes no responsibility for its accuracy.

Website is operated by a brokerage or salesperson who is a member of The Canadian Real Estate Association.

The listing content on this website is protected by copyright and other laws, and is intended solely for the private, non‐commercial use by individuals. Any other reproduction, distribution or use of the content, in whole or in part, is specifically forbidden. The prohibited uses include commercial use, “screen scraping”, “database scraping”, and any other activity intended to collect, store, reorganize or manipulate data on the pages produced by or displayed on this website.

By continuing to use this website and its services, you agree to these

These forms are provided to ComFree’s Unrepresented Sellers as a part of their Mere Posting ComFree Listing Contract.

I acknowledge I can only access these forms as a ComFree customer under contract.

These forms are provided to ComFree’s Unrepresented Sellers as a part of their Mere Posting ComFree Listing Contract and in partnership with Zubic Law.

I acknowledge I can only access these forms as a ComFree customer under contract.

These forms are provided to ComFree’s Unrepresented Sellers as a part of their Mere Posting ComFree Listing Contract and in partnership with Zubic Law.

I acknowledge I can only access these forms as a ComFree customer under contract.

How It Works

1. Purchase Your Package

2. We Ship Your ‘For Sale’ Sign

3. Book Your VR Tour

4. Complete Listing Input Forms

5. We Make Your Listing Live

6. Get Support 7 Days a Week

7. iSOLD!