Share
$2,188,000
Ontario,Richmond Hill (Oak Ridges)
For Sale Active
86,88,90 CARMELA AVENUE, Richmond Hill (Oak Ridges), Ontario L4E2V6
  • 15,180 Sqft
Contact Seller
Basic Details
Description

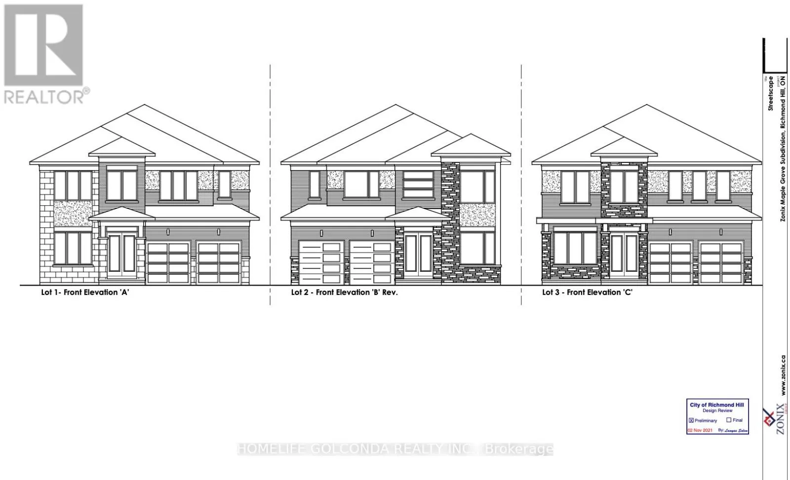
ATTN BUILDERS AND INVESTORS** These fully-serviced residential 3 lots in the prestigious Oak Ridges community are perfect for builders and homeowners alike, with approved plans for a 3,700 SF detached house on every Lot. The lots have paid servicing and pre-approved architectural plans, including a separate basement entrance. Just apply for your building permit to get started! This premier location

offers luxury living with convenient access to top-rated schools, parks, shopping, dining, and major transit routes. The serene neighbourhood, surrounded by mature trees and upscale residences, is ideal for your vision (id:62650)

Read More
Basic Details
  • Property Type: Residential
  • Listing Type: For Sale
  • Listing ID: N13012248
  • Price: $2,188,000
  • Square Footage: 15,180 Sqft
  • Status: Active
  • Property Sub Type: Vacant Land
  • Office Key: 279420
Address Map
  • Location: CA, Ontario, Richmond Hill (Oak Ridges), L4E2V6
  • Street: Carmela
  • Street Number: 86,88,90
  • Street Suffix: Avenue
  • Longitude: W80° 32' 20.4''
  • Latitude: N43° 56' 54.5''
Additional Information
  • Water Source:
  • Lot Size Dimensions: 138 x 120 FT ; West 108, East 121
Financial
  • Tax Annual Amount: 11128
Powered by REALTOR.ca
Listing updated: 2026-04-19 15:41:03
List Your Property
Mortgage Calculator
Get Pre-Approved
$
$
%
%
years
Monthly Payment (Est.) $
Listing Information
  • List Agent Key: 1937991
  • List Office Key: 279420
  • Modification Timestamp: 2026-04-17T16:50:17Z
  • Originating System Name: Toronto Regional Real Estate Board
  • Status Change Timestamp: 2026-04-17T16:40:52Z
Powered by REALTOR.ca
Listing updated: 2026-04-19 15:41:03
REALTOR®, REALTORS®, and the REALTOR® logo are certification marks that are owned by REALTOR® Canada Inc. and licensed exclusively to The Canadian Real Estate Association (CREA). These certification marks identify real estate professionals who are members of CREA and who must abide by CREA’s By‐Laws, Rules, and the REALTOR® Code. The MLS® trademark and the MLS® logo are owned by CREA and identify the quality of services provided by real estate professionals who are members of CREA.

The information contained on this site is based in whole or in part on information that is provided by members of The Canadian Real Estate Association, who are responsible for its accuracy. CREA reproduces and distributes this information as a service for its members and assumes no responsibility for its accuracy.

Website is operated by a brokerage or salesperson who is a member of The Canadian Real Estate Association.

The listing content on this website is protected by copyright and other laws, and is intended solely for the private, non‐commercial use by individuals. Any other reproduction, distribution or use of the content, in whole or in part, is specifically forbidden. The prohibited uses include commercial use, “screen scraping”, “database scraping”, and any other activity intended to collect, store, reorganize or manipulate data on the pages produced by or displayed on this website.

By continuing to use this website and its services, you agree to these

These forms are provided to ComFree’s Unrepresented Sellers as a part of their Mere Posting ComFree Listing Contract.

I acknowledge I can only access these forms as a ComFree customer under contract.

These forms are provided to ComFree’s Unrepresented Sellers as a part of their Mere Posting ComFree Listing Contract and in partnership with Zubic Law.

I acknowledge I can only access these forms as a ComFree customer under contract.

These forms are provided to ComFree’s Unrepresented Sellers as a part of their Mere Posting ComFree Listing Contract and in partnership with Zubic Law.

I acknowledge I can only access these forms as a ComFree customer under contract.

How It Works

1. Purchase Your Package

2. We Ship Your ‘For Sale’ Sign

3. Book Your VR Tour

4. Complete Listing Input Forms

5. We Make Your Listing Live

6. Get Support 7 Days a Week

7. iSOLD!