Share
$1,890,000
British Columbia,Grand Forks
For Sale Active
8810 North Fork Road, Grand Forks, British Columbia V0H1H2
  • 7
  • 3
  • 4,552 Sqft
Contact Seller
Basic Details
Description

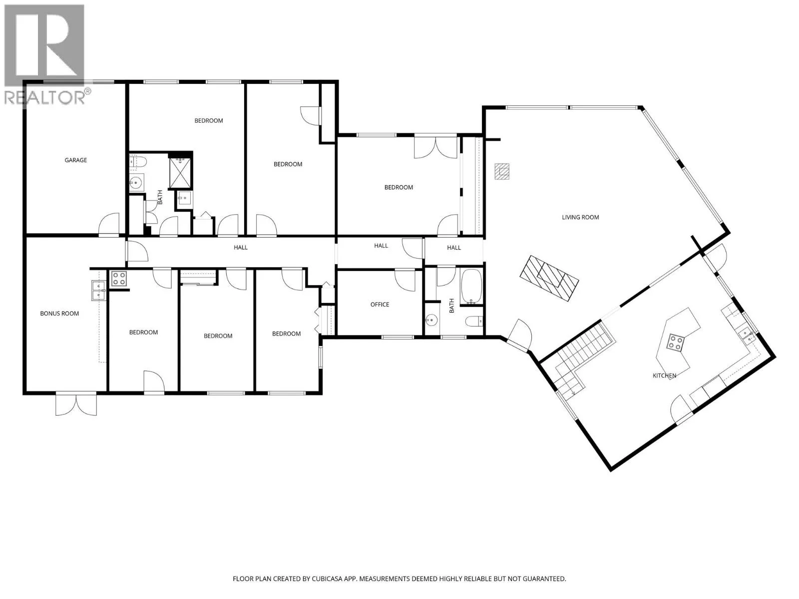
A rare opportunity to own 200 acres in an unbeatable location just a couple of minutes from town, with nearly 2 km of Granby River frontage and all the infrastructure in place for country living, a horse enthusiast or a cattle operation. This one-of-a-kind property is well set up for ranch use, featuring 2 hay barns, equipment sheds, a workshop,

and a wheel line move with pump house for irrigation (the pump house has not been used since 2018). The impressive main log home offers 3035 sq ft on the main floor alone, with a vaulted-ceiling living room, kitchen, dining area, entryway, primary bedroom, 5 additional bedrooms, 2 bathrooms, an office, storage room, and attached single garage. The covered deck takes in beautiful mountain and valley views overlooking the property. The lower level adds even more functional space with a rec room, office, laundry, wood storage, 2 bedrooms, and another storage room. A second log home adds excellent potential for extended family, guests, or ranch help, with living, kitchen, dining, and a half bath upstairs, plus 3 bedrooms, a bathroom, and an attached double garage downstairs. With its incredible location, river frontage, and setup for livestock or hay production, this is a truly special rural property with endless potential. Call your agent to view today! (id:62650)

Read More
Basic Details
  • Property Type: Residential
  • Listing Type: For Sale
  • Listing ID: 10383347
  • Price: $1,890,000
  • Bedrooms: 7
  • Bathrooms: 3
  • View: Mountain view,River view,Valley view
  • Square Footage: 4,552 Sqft
  • Year Built: 1991
  • Status: Active
  • Property Sub Type: Single Family
  • Roof:
  • Office Key: 94560
Features & Appliances
Features
  • Heating System: Forced air
  • Parking: Covered, Additional Parking, Attached Garage, See Remarks
  • Architectural Style: Log house/cabin
  • Flooring: Ceramic Tile, Hardwood
  • Sewer: Septic tank
  • Waterfront Features: Waterfront on river
Address Map
  • Location: CA, British Columbia, Grand Forks, V0H1H2
  • Street: North Fork
  • Street Number: 8810
  • Street Suffix: Road
  • Longitude: W119° 31' 22.1''
  • Latitude: N49° 3' 26.9''
Additional Information
  • Water Source:
  • Lot Size Dimensions: 200
  • Stories: 1.0
Financial
  • Tax Annual Amount: 6672
Powered by REALTOR.ca
Listing updated: 2026-04-23 06:47:20
List Your Property
Mortgage Calculator
Get Pre-Approved
$
$
%
%
years
Monthly Payment (Est.) $
Listing Information
  • List Agent Key: 1986506
  • List Office Key: 94560
  • Modification Timestamp: 2026-04-22T03:30:22Z
  • Originating System Name: Association of Interior REALTORS®
  • Status Change Timestamp: 2026-04-22T03:21:37Z
Powered by REALTOR.ca
Listing updated: 2026-04-23 06:47:21
REALTOR®, REALTORS®, and the REALTOR® logo are certification marks that are owned by REALTOR® Canada Inc. and licensed exclusively to The Canadian Real Estate Association (CREA). These certification marks identify real estate professionals who are members of CREA and who must abide by CREA’s By‐Laws, Rules, and the REALTOR® Code. The MLS® trademark and the MLS® logo are owned by CREA and identify the quality of services provided by real estate professionals who are members of CREA.

The information contained on this site is based in whole or in part on information that is provided by members of The Canadian Real Estate Association, who are responsible for its accuracy. CREA reproduces and distributes this information as a service for its members and assumes no responsibility for its accuracy.

Website is operated by a brokerage or salesperson who is a member of The Canadian Real Estate Association.

The listing content on this website is protected by copyright and other laws, and is intended solely for the private, non‐commercial use by individuals. Any other reproduction, distribution or use of the content, in whole or in part, is specifically forbidden. The prohibited uses include commercial use, “screen scraping”, “database scraping”, and any other activity intended to collect, store, reorganize or manipulate data on the pages produced by or displayed on this website.

By continuing to use this website and its services, you agree to these

These forms are provided to ComFree’s Unrepresented Sellers as a part of their Mere Posting ComFree Listing Contract.

I acknowledge I can only access these forms as a ComFree customer under contract.

These forms are provided to ComFree’s Unrepresented Sellers as a part of their Mere Posting ComFree Listing Contract and in partnership with Zubic Law.

I acknowledge I can only access these forms as a ComFree customer under contract.

These forms are provided to ComFree’s Unrepresented Sellers as a part of their Mere Posting ComFree Listing Contract and in partnership with Zubic Law.

I acknowledge I can only access these forms as a ComFree customer under contract.

How It Works

1. Purchase Your Package

2. We Ship Your ‘For Sale’ Sign

3. Book Your VR Tour

4. Complete Listing Input Forms

5. We Make Your Listing Live

6. Get Support 7 Days a Week

7. iSOLD!